

Шеффилд
Каркасная баня с современным дизайном,
подходит для сезонного и круглогодичного использования.
Размеры
6х6Площадь помещений
19 м²Пятно застройки
36 м²Этажность
1Технология
КаркаснаяСтиль
СкандинавияСтоимость
от 2 083 000 руб.Размеры
6х6Площадь помещений
19 м²Пятно застройки
36 м²Этажность
1Технология
КаркаснаяСтиль
СкандинавияПо вашему запросу мы бесплатно доработаем планировку, чтобы вы получили максимальное удовольствие от загородного отдыха
Предложим планировку, в которой каждый квадратный метр будет использован с максимальной эффективностью
Увеличим или уменьшим площадь здания. Изменим расположение окон и дверей. Добавим санузел, ещё одну спальню для гостей, террасу и так далее
Изменить проектШеффилд: Финская баня – 6х6
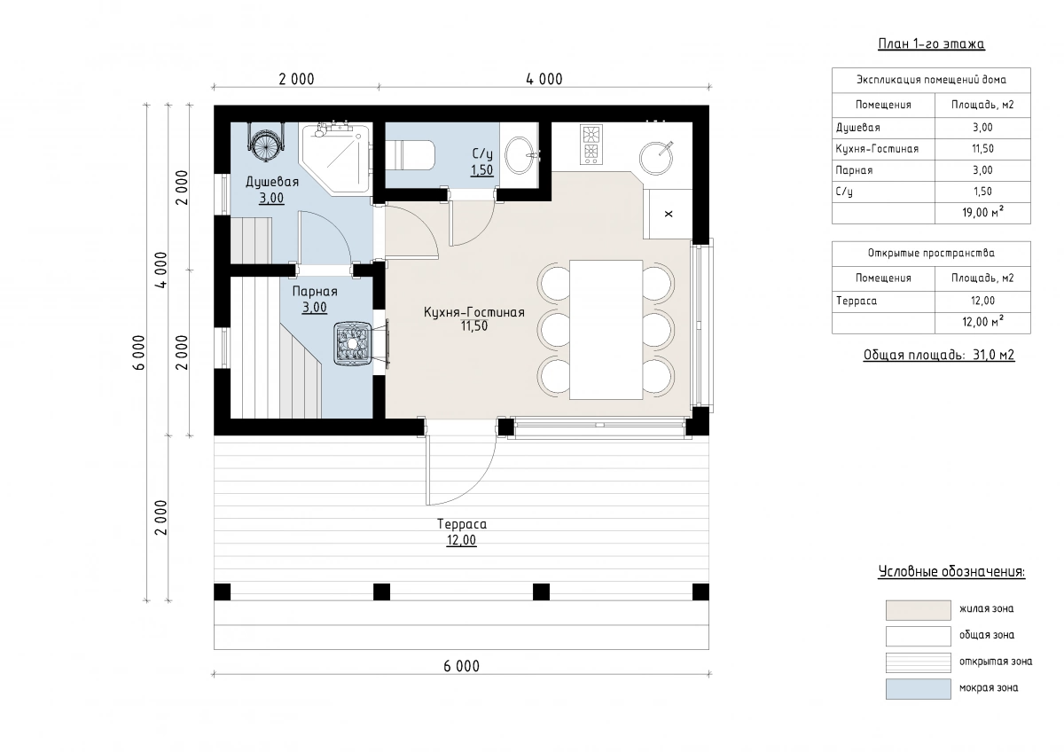
Финская баня 6×6 м «Шеффилд» общей площадью 31 м² выполнена по каркасной технологии, что обеспечивает быструю сборку, возможность самостоятельной перепланировки и устойчивость конструкции.
Проект сочетает современный стиль с минимализмом, а терраса служит идеальным местом для отдыха на свежем воздухе. Компактная и продуманная планировка делает проект удобным для использования.
Общая площадь внутренних помещений составляет 19 м², включая кухню-гостиную 12 м², парную, душевую и санузел. Открытая терраса площадью 12 м² гармонично дополняет проект.
«Шеффилд» идеально подходит для семейного отдыха или встреч с друзьями. Простота архитектуры и стильное оформление делают его универсальным для любых участков.
| Описание | |
|---|---|
| 1. Фундамент |
|
| 2. Стеновой комплект |
|
| 3. Кровля |
|
| 4. Окна и двери |
|
| 5. Сопровождение строительства |
|
-
Заказать бесплатные изменения в проекте
или планировке
-
Получить фото и планировку этого проекта в WhatsApp или Telegram
Отправим
в течение
5 минут -
Получить расчет
стоимости в 3 вариантах комплектации
Остались вопросы?
Свяжитесь с нами или оставьте заявку — мы проконсультируем вас по всем вопросам.
Артем Ефремов
Эксперт по строительству
Похожие проекты
Другие- 6х6
- Размеры
- 19 м²
- Площадь помещений
Заполните форму и получите бесплатно: