





Баня в стиле Сеньо
A-frame баня с панорамными окнами,
наполняющими пространство светом.
Размеры
7х10Площадь помещений
54 м²Пятно застройки
70 м²Этажность
2Технология
КаркаснаяСтиль
A-frameСтоимость
По запросуРазмеры
7х10Площадь помещений
54 м²Пятно застройки
70 м²Этажность
2Технология
КаркаснаяСтиль
A-frameПо вашему запросу мы бесплатно доработаем планировку, чтобы вы получили максимальное удовольствие от загородного отдыха
Предложим планировку, в которой каждый квадратный метр будет использован с максимальной эффективностью
Увеличим или уменьшим площадь здания. Изменим расположение окон и дверей. Добавим санузел, ещё одну спальню для гостей, террасу и так далее
Изменить проектСеньо: Баня в стиле A-frame – 7х10
Каркасная баня "Сеньо" – это стильное и уютное пространство для комфортного отдыха, выполненное в современном формате A-frame.
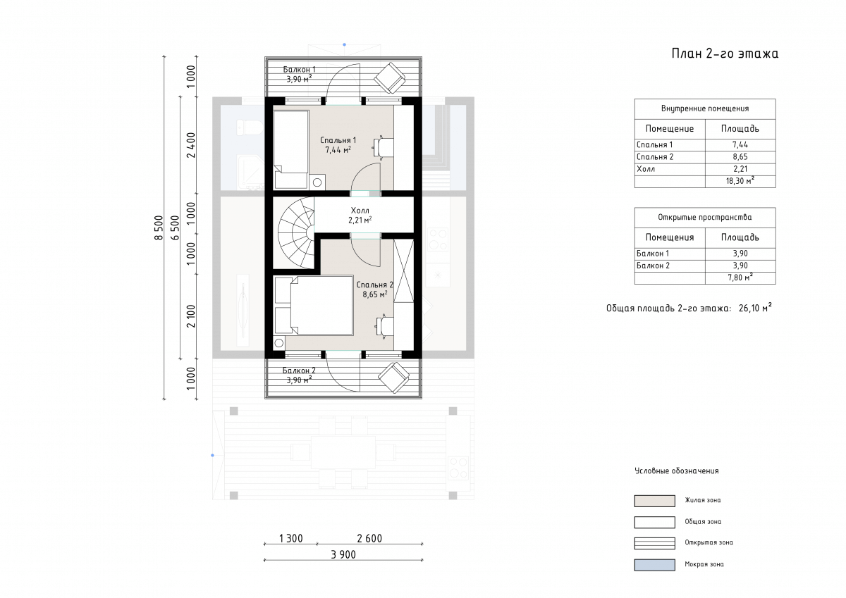
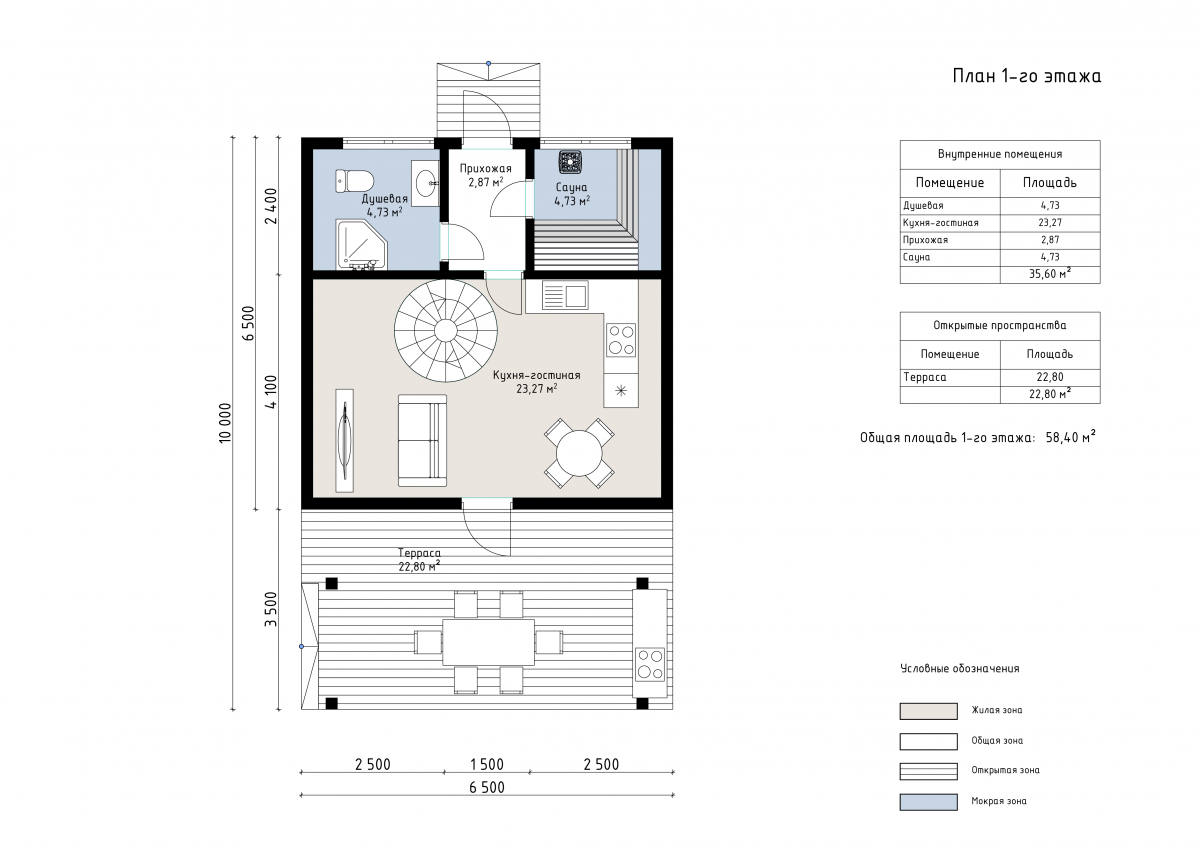
Дом выполнен в стиле A-frame с фасадной обшивкой из дерева и фальцевой кровлей, спускающейся до земли. Такой тип постройки отличается высокой энергоэффективностью и быстрым монтажом. Площадь первого этажа составляет 58 м², где расположены кухня-гостиная (23 м²), душевая, прихожая и парная. На втором этаже размещены две небольшие спальни и холл общей площадью 18 м². Из каждой спальни есть выход на собственный балкон. Дополнительным акцентом служит терраса площадью 23 м², украшенная деревянной перголой, что делает зону отдыха особенно уютной. Проект идеально подойдет для пары или семьи с детьми, ценящих стиль, комфорт и компактность. Это отличный выбор как для дачи, так и для аренды в глэмпинг-поселке.
- Бани под ключ
- Бани с террасой в стиле A-frame
- Дачные
- Двухэтажные бани в стиле A-frame
- Двухэтажные бани в стиле Шалаш
- Двухэтажные бани с зоной барбекю
- Деревянные
- Каркасные бани
- Недорогие
- Одноэтажные бани в стиле A-frame
- Одноэтажные бани в стиле Шалаш
- Типовые проекты бань
- Треугольная баня с треугольной крышей
- Треугольные бани в стиле Шалаш
- Треугольные двухэтажные бани
- Треугольные одноэтажные бани
- Треугольный дом с баней
| Описание | |
|---|---|
| 1. Фундамент |
|
| 2. Стеновой комплект |
|
| 3. Кровля |
|
| 4. Окна и двери |
|
| 5. Сопровождение строительства |
|
-
Заказать бесплатные изменения в проекте
или планировке
-
Получить фото и планировку этого проекта в WhatsApp или Telegram
Отправим
в течение
5 минут -
Получить расчет
стоимости в 3 вариантах комплектации
Остались вопросы?
Свяжитесь с нами или оставьте заявку — мы проконсультируем вас по всем вопросам.
Артем Ефремов
Эксперт по строительству
Похожие проекты
Другие- 7х10
- Размеры
- 54 м²
- Площадь помещений
Заполните форму и получите бесплатно: