



Дрим
Фахверковая баня с просторной террасой
и панорамными окнами для отдыха на природе.
Размеры
10х12Площадь помещений
132 м²Пятно застройки
120 м²Этажность
2Технология
КаркаснаяСтиль
ФахверкСтоимость
от 8 879 000 руб.Размеры
10х12Площадь помещений
132 м²Пятно застройки
120 м²Этажность
2Технология
КаркаснаяСтиль
ФахверкПо вашему запросу мы бесплатно доработаем планировку, чтобы вы получили максимальное удовольствие от загородного отдыха
Предложим планировку, в которой каждый квадратный метр будет использован с максимальной эффективностью
Увеличим или уменьшим площадь здания. Изменим расположение окон и дверей. Добавим санузел, ещё одну спальню для гостей, террасу и так далее
Изменить проектДрим: Фахверковая баня – 10х12
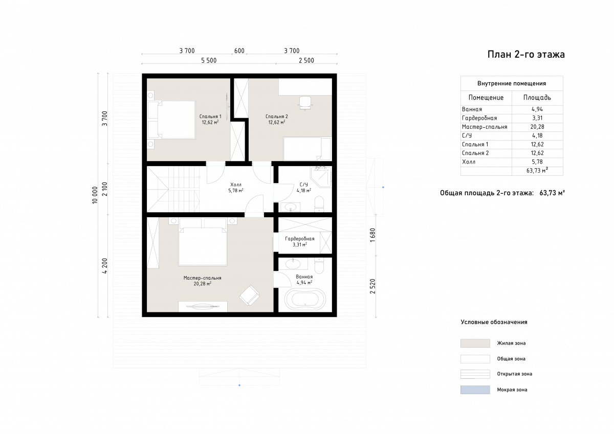
Фахверковая баня размером 8х12 м «Дрим» общей площадью 114 м² выполнена по каркасной технологии с элементами стиля фахверк.
Этот проект выделяется просторной террасой 46 м² и стильным современным дизайном с панорамными окнами, создающими эффект единения с природой. Внутренние помещения занимают 68 м² и включают гостиную площадью 21 м², кухню 10 м², сауну 5 м², комнату отдыха 6 м², душевую 3 м² и компактную котельную. Большие окна обеспечивают естественное освещение и ощущение простора, а гармоничные линии фасада подчеркивают современный архитектурный стиль. Проект «Дрим» станет идеальным выбором для тех, кто ищет гармоничное сочетание функциональности, эстетики и уюта в загородном отдыхе.
- Бани под ключ
- Дачные
- Двухэтажные бани в стиле Фахверк
- Двухэтажные бани в стиле Шале
- Двухэтажные бани с барбекю
- Двухэтажные бани с зоной барбекю
- Двухэтажные бани с зоной для мангала
- Двухэтажные бани с мангалом
- Двухэтажные бани с мансардой
- Двухэтажные бани с панорамными окнами
- Двухэтажные дом бани с панорамными окнами
- Двухэтажные зимние бани
- Двухэтажный гостевой дом-баня
- Деревянные
- Деревянные двухэтажные бани
- Дом бани в стиле Фахверк
- Дом баня в финском стиле
- Дом баня для гостей
- Дом с баней
- Дом с баней для дачи
- дом-баня
- Каркасные бани
- Каркасные двухэтажные бани
- Типовые проекты бань
| Описание | |
|---|---|
| 1. Фундамент |
|
| 2. Стеновой комплект |
|
| 3. Кровля |
|
| 4. Окна и двери |
|
| 5. Сопровождение строительства |
|
-
Заказать бесплатные изменения в проекте
или планировке
-
Получить фото и планировку этого проекта в WhatsApp или Telegram
Отправим
в течение
5 минут -
Получить расчет
стоимости в 3 вариантах комплектации
Остались вопросы?
Свяжитесь с нами или оставьте заявку — мы проконсультируем вас по всем вопросам.
Артем Ефремов
Эксперт по строительству
Похожие проекты
Другие- 10х12
- Размеры
- 132 м²
- Площадь помещений
Заполните форму и получите бесплатно: