

Флоренция
Функциональный и стильный проект,
идеально вписывающийся в загородный ландшафт.
Размеры
8х8Площадь помещений
51 м²Пятно застройки
64 м²Этажность
2Технология
КаркаснаяСтиль
A-frameСтоимость
от 3 628 000 руб.Размеры
8х8Площадь помещений
51 м²Пятно застройки
64 м²Этажность
2Технология
КаркаснаяСтиль
A-frameПо вашему запросу мы бесплатно доработаем планировку, чтобы вы получили максимальное удовольствие от загородного отдыха
Предложим планировку, в которой каждый квадратный метр будет использован с максимальной эффективностью
Увеличим или уменьшим площадь здания. Изменим расположение окон и дверей. Добавим санузел, ещё одну спальню для гостей, террасу и так далее
Изменить проектФлоренция: Каркасная баня в стиле A-frame – 8х8
Каркасная баня «Флоренция» — это стильное и функциональное решение для загородного отдыха.
Компактная постройка с двускатной крышей и панорамными окнами создает ощущение простора и уюта. Благодаря эргономичной планировке, баня сочетает в себе все необходимые зоны для полноценного отдыха.
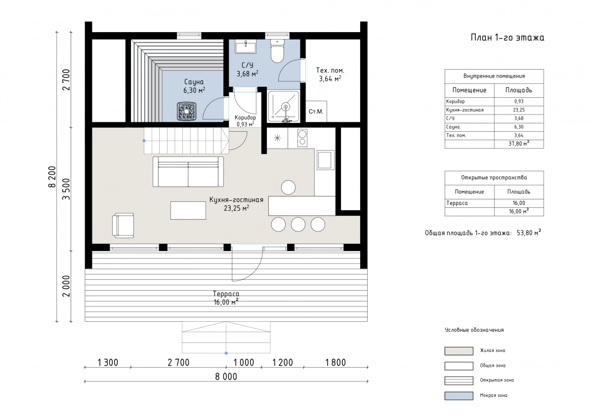
На первом этаже расположена просторная кухня-гостиная площадью 23 м², объединяющая в себе зону для приготовления пищи и зону отдыха. Рядом находится сауна (6 м²), обеспечивающая комфортные условия для парения. Также на этом уровне предусмотрен санузел (4 м²), техническое помещение (4 м²) и небольшой коридор (1 м²), соединяющий помещения. Дополняет пространство уютная терраса площадью 16 м², на которой можно установить шезлонги или стол для отдыха на свежем воздухе.
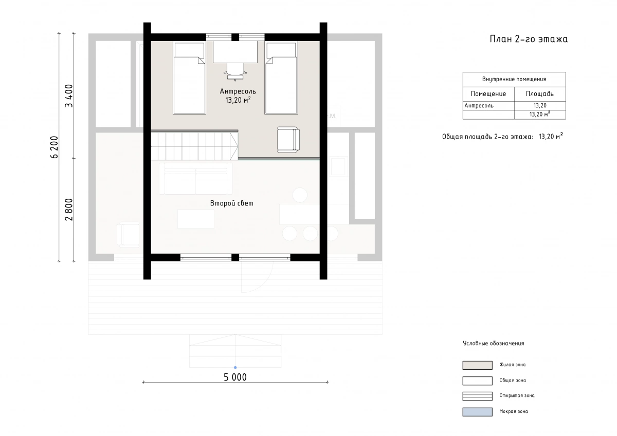
Второй этаж выполнен в формате антресоли (13 м²), что делает пространство максимально удобным для размещения зоны отдыха или спального места. Благодаря концепции второго света, баня наполнена естественным светом и визуально кажется еще просторнее.
Общая площадь постройки составляет 67 м², из которых 54 м² занимает внутреннее пространство. Проект сочетает в себе современный минималистичный дизайн и традиционные элементы, создавая идеальные условия для релаксации.
| Описание | |
|---|---|
| 1. Фундамент |
|
| 2. Стеновой комплект |
|
| 3. Кровля |
|
| 4. Окна и двери |
|
| 5. Сопровождение строительства |
|
-
Заказать бесплатные изменения в проекте
или планировке
-
Получить фото и планировку этого проекта в WhatsApp или Telegram
Отправим
в течение
5 минут -
Получить расчет
стоимости в 3 вариантах комплектации
Остались вопросы?
Свяжитесь с нами или оставьте заявку — мы проконсультируем вас по всем вопросам.
Артем Ефремов
Эксперт по строительству
Похожие проекты
Другие- 8х8
- Размеры
- 51 м²
- Площадь помещений
Заполните форму и получите бесплатно: