

Гавана
Лаконичный и стильный дизайн,
вдохновленный архитектурой фахверковых домов.
Размеры
9х9Площадь помещений
123 м²Пятно застройки
81 м²Этажность
2Технология
КаркаснаяСтиль
ФахверкСтоимость
от 7 114 000 руб.Размеры
9х9Площадь помещений
123 м²Пятно застройки
81 м²Этажность
2Технология
КаркаснаяСтиль
ФахверкПо вашему запросу мы бесплатно доработаем планировку, чтобы вы получили максимальное удовольствие от загородного отдыха
Предложим планировку, в которой каждый квадратный метр будет использован с максимальной эффективностью
Увеличим или уменьшим площадь здания. Изменим расположение окон и дверей. Добавим санузел, ещё одну спальню для гостей, террасу и так далее
Изменить проектГавана: Фахверковая баня – 9х9
Фахверковая баня 9×9 м «Гавана» общей площадью 123 м² выполнена по каркасной технологии, которая обеспечивает прочность, долговечность и короткие сроки строительства.
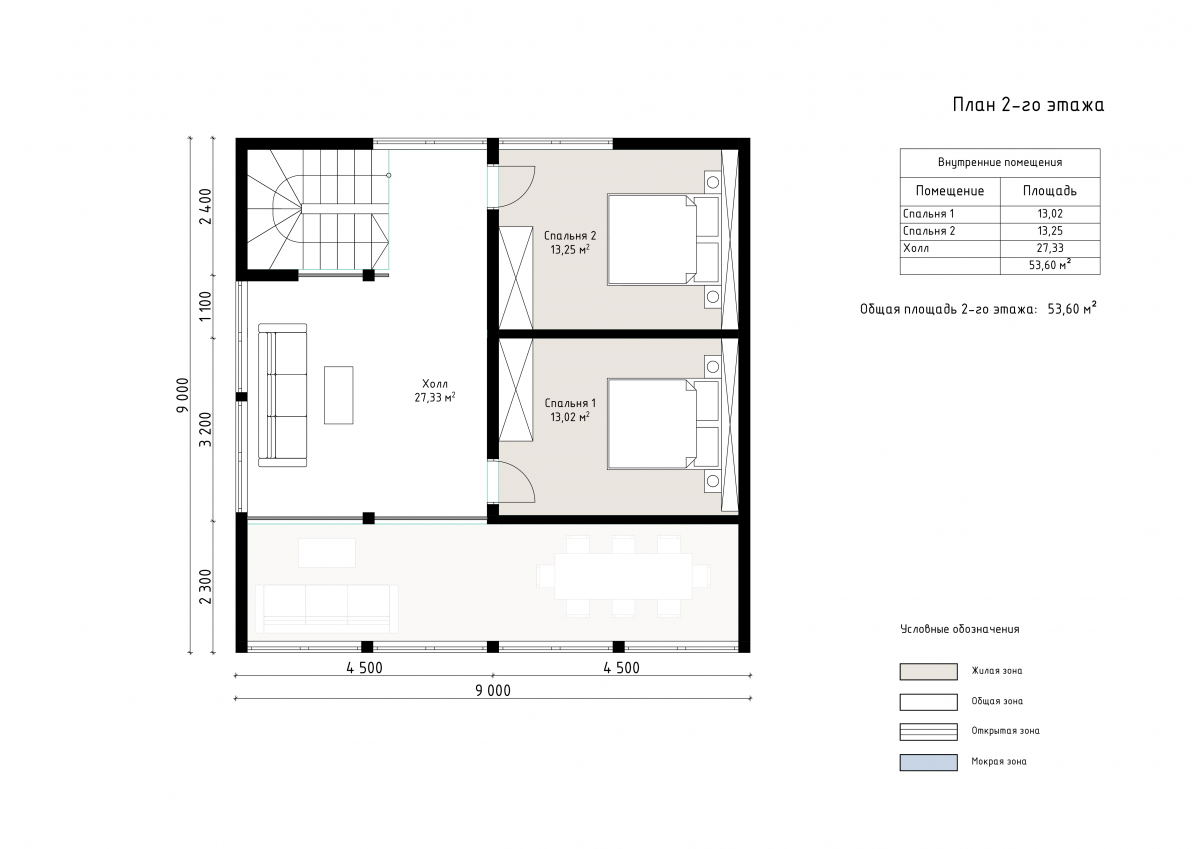
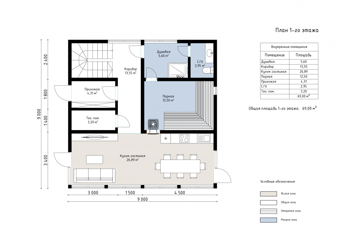
На первом этаже расположены кухня-гостиная площадью 27 м², которая объединяет зону отдыха и обеденную группу. Здесь предусмотрена удобная прихожая 4 м², техническое помещение 3 м², душевая 6 м² и санузел 3 м². Главным элементом банной зоны является просторная парная площадью 13 м², рассчитанная на несколько человек. Второй этаж занимает холл 27 м², создающий ощущение простора за счёт второго света. Две уютные спальни площадью 13 м² каждая позволят разместить гостей или использовать пространство для отдыха после банных процедур. Терраса 27 м² делает этот проект особенно привлекательным для загородного отдыха. Здесь можно разместить зону для релаксации, барбекю или купель.
| Описание | |
|---|---|
| 1. Фундамент |
|
| 2. Стеновой комплект |
|
| 3. Кровля |
|
| 4. Окна и двери |
|
| 5. Сопровождение строительства |
|
-
Заказать бесплатные изменения в проекте
или планировке
-
Получить фото и планировку этого проекта в WhatsApp или Telegram
Отправим
в течение
5 минут -
Получить расчет
стоимости в 3 вариантах комплектации
Остались вопросы?
Свяжитесь с нами или оставьте заявку — мы проконсультируем вас по всем вопросам.
Артем Ефремов
Эксперт по строительству
Похожие проекты
Другие- 9х9
- Размеры
- 123 м²
- Площадь помещений
Заполните форму и получите бесплатно: