

Ганновер
Стильная баня в фахверковом стиле,
объединяющая комфорт и эстетику.
Размеры
6х10Площадь помещений
41 м²Пятно застройки
60 м²Этажность
1Технология
КаркаснаяСтиль
ФахверкСтоимость
от 3 005 000 руб.Размеры
6х10Площадь помещений
41 м²Пятно застройки
60 м²Этажность
1Технология
КаркаснаяСтиль
ФахверкПо вашему запросу мы бесплатно доработаем планировку, чтобы вы получили максимальное удовольствие от загородного отдыха
Предложим планировку, в которой каждый квадратный метр будет использован с максимальной эффективностью
Увеличим или уменьшим площадь здания. Изменим расположение окон и дверей. Добавим санузел, ещё одну спальню для гостей, террасу и так далее
Изменить проектГанновер: Фахверковая баня – 6х10
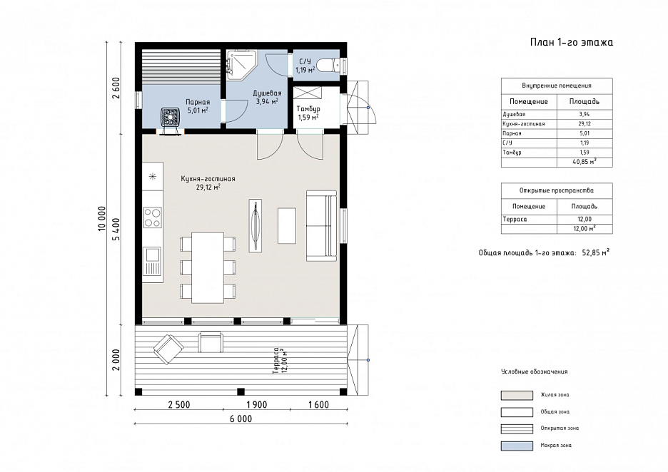
Фахверковая баня 10×6 м «Ганновер» общей площадью 53 м² построена по каркасной технологии, что обеспечивает легкость конструкции, устойчивость к температурным перепадам и экономичность строительства.
Стиль фахверк с панорамным остеклением наполняет помещения светом и создает уютную атмосферу. Просторная кухня-гостиная площадью 29 м² идеально подходит для семейных встреч и отдыха с друзьями. Общая площадь помещений — 41 м²: кухня-гостиная 29 м², парная 5 м², душевая и санузел. Терраса 12 м² создает дополнительные возможности для отдыха на свежем воздухе. Удобное зонирование повышает функциональность. «Ганновер» — оптимальный выбор для ценителей современного дизайна и природной эстетики.
- Бани под ключ
- Бани с барбекю и мангалом
- Бани с беседкой и бассейном
- Бани с бильярдом и бассейном
- Бани с большой верандой
- Бани с большой террасой под ключ
- Бани с верандой и барбекю под ключ
- Бани с верандой и мангалом под ключ
- Бани с верандой под одной крышей
- Бани с джакузи и бильярдом
- Бани с закрытой верандой
- Бани с мангалом и барбекю
- Бани с мини-бассейном
- Бани с открытой верандой
- Бани с панорамным остеклением в стиле Фахверк
- Бани с теплым бассейном
- Бани с террасой под одной крышей
- Бани хай тек с панорамными окнами
- Готовые бани с отделкой
- Готовые бани с панорамными окнами
- Готовые финские бани
- Дачные
- Деревянные
- Дизайнерские бани с верандой
- Дизайнерские бани с террасой
- Дизайнерские одноэтажные бани
- Дом бани в стиле Фахверк
- Дом баня в финском стиле
- Дом баня для гостей
- Дом с баней для дачи
- Дом с баней и бильярдом
- дом-баня
- Каркасные бани
- Красивые бани с панорамными окнами
- Недорогие бани с барбекю
- Недорогие бани с душем
- Недорогие бани с мангалом
- Недорогие бани с печкой
- Одноэтажные бани в стиле Минимализм
- Одноэтажные бани в стиле Фахверк
- Одноэтажные бани с бильярдом
- Одноэтажные бани с зоной для мангала
- Оригинальные одноэтажные бани
- Скандинавские бани с комнатой отдыха
- Скандинавские дом бани
- Скандинавские одноэтажные бани
- Современные бани в стиле Минимализм
- Современные бани с панорамными окнами
- Типовые проекты бань
- Финские бани на дачу
- Финские бани с панорамными окнами
- Финские бани с печкой
| Описание | |
|---|---|
| 1. Фундамент |
|
| 2. Стеновой комплект |
|
| 3. Кровля |
|
| 4. Окна и двери |
|
| 5. Сопровождение строительства |
|
-
Заказать бесплатные изменения в проекте
или планировке
-
Получить фото и планировку этого проекта в WhatsApp или Telegram
Отправим
в течение
5 минут -
Получить расчет
стоимости в 3 вариантах комплектации
Остались вопросы?
Свяжитесь с нами или оставьте заявку — мы проконсультируем вас по всем вопросам.
Артем Ефремов
Эксперт по строительству
Похожие проекты
Другие- 6х10
- Размеры
- 41 м²
- Площадь помещений
Заполните форму и получите бесплатно: