
Баня Вольфсбург 7
Эстетичная баня с гостиной, кухней и парной,
подчёркивает гармонию уюта и практичности.
Размеры
6х10Площадь помещений
40 м²Пятно застройки
60 м²Этажность
1Технология
Клееный брусСтиль
СкандинавияСтоимость
от 4 969 000 руб.Размеры
6х10Площадь помещений
40 м²Пятно застройки
60 м²Этажность
1Технология
Клееный брусСтиль
СкандинавияПо вашему запросу мы бесплатно доработаем планировку, чтобы вы получили максимальное удовольствие от загородного отдыха
Предложим планировку, в которой каждый квадратный метр будет использован с максимальной эффективностью
Увеличим или уменьшим площадь здания. Изменим расположение окон и дверей. Добавим санузел, ещё одну спальню для гостей, террасу и так далее
Изменить проектВольфсбург 7: Баня из клееного бруса – 6х10
Компактная и стильная баня из клееного бруса «Вольфсбург 7» прекрасно впишется в природный ландшафт.
Использование клееного бруса гарантирует высокую прочность конструкции, долговечность и отличные теплоизоляционные свойства.
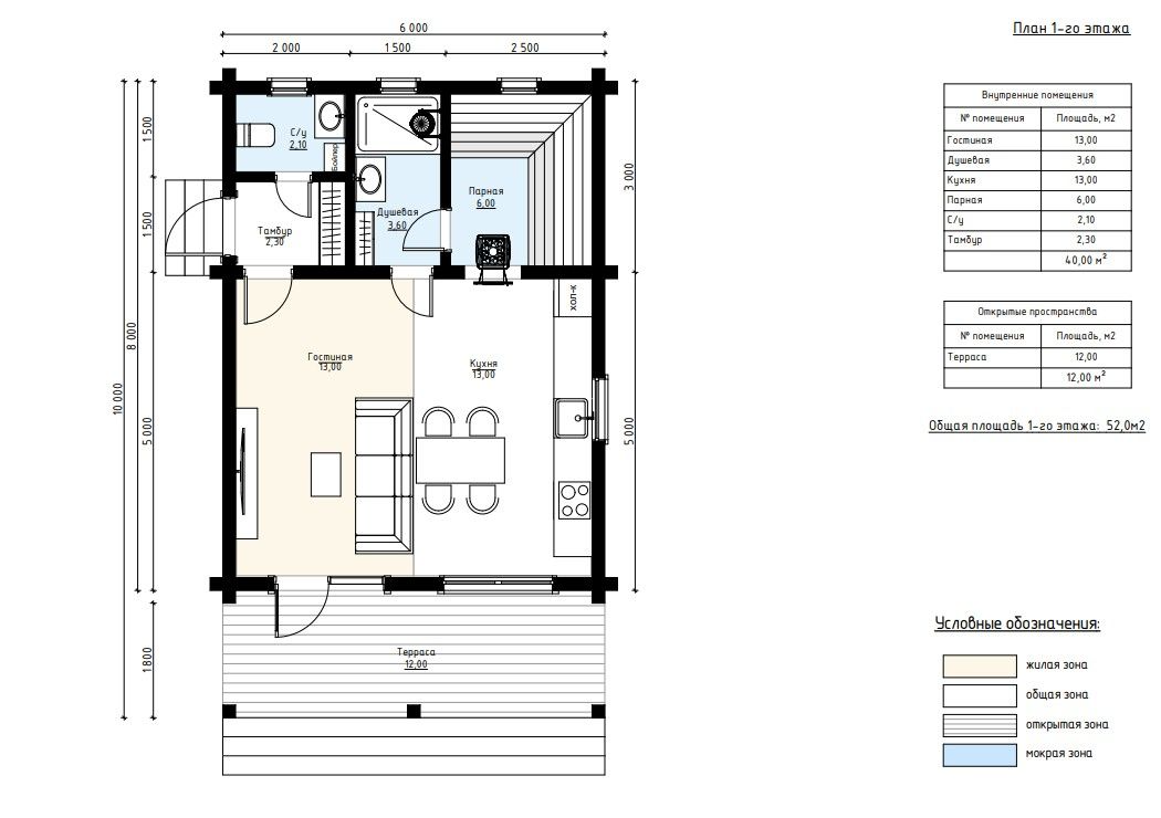
Общая площадь первого этажа — 52 м². Внутреннее пространство продумано до мелочей: зона отдыха объединяет кухню (13 м²) и гостиную (13 м²), что создает ощущение простора и комфорта. Мокрая зона представлена душевой (3,6 м²), парной (6 м²) и санузлом (2,1 м²), а также предусмотрен отдельный тамбур (2,3 м²) для удобства входа. Снаружи расположена открытая терраса площадью 12 м² — идеальное место для летнего отдыха, установки джакузи или уличной мебели.
Проект отлично подойдет для небольшой семьи или компании друзей, ценящих современную архитектуру, комфорт и атмосферу уединения. «Вольфсбург 7» может использоваться как банный комплекс на участке или как гостевой дом с функцией СПА-зоны.
| Описание | |
|---|---|
| 1. Фундамент |
|
| 2. Стеновой комплект |
|
| 3. Кровля |
|
| 4. Окна и двери |
|
| 5. Сопровождение строительства |
|
-
Заказать бесплатные изменения в проекте
или планировке
-
Получить фото и планировку этого проекта в WhatsApp или Telegram
Отправим
в течение
5 минут -
Получить расчет
стоимости в 3 вариантах комплектации
Остались вопросы?
Свяжитесь с нами или оставьте заявку — мы проконсультируем вас по всем вопросам.
Артем Ефремов
Эксперт по строительству
Похожие проекты
Другие- 6х10
- Размеры
- 40 м²
- Площадь помещений
Заполните форму и получите бесплатно: