
Баня Вольфсбург 8
Баня с лаконичным дизайном и панорамными окнами,
объединяет эстетику и удобство.
Размеры
7х9Площадь помещений
41 м²Пятно застройки
63 м²Этажность
1Технология
Клееный брусСтиль
СкандинавияСтоимость
от 5 123 000 руб.Размеры
7х9Площадь помещений
41 м²Пятно застройки
63 м²Этажность
1Технология
Клееный брусСтиль
СкандинавияПо вашему запросу мы бесплатно доработаем планировку, чтобы вы получили максимальное удовольствие от загородного отдыха
Предложим планировку, в которой каждый квадратный метр будет использован с максимальной эффективностью
Увеличим или уменьшим площадь здания. Изменим расположение окон и дверей. Добавим санузел, ещё одну спальню для гостей, террасу и так далее
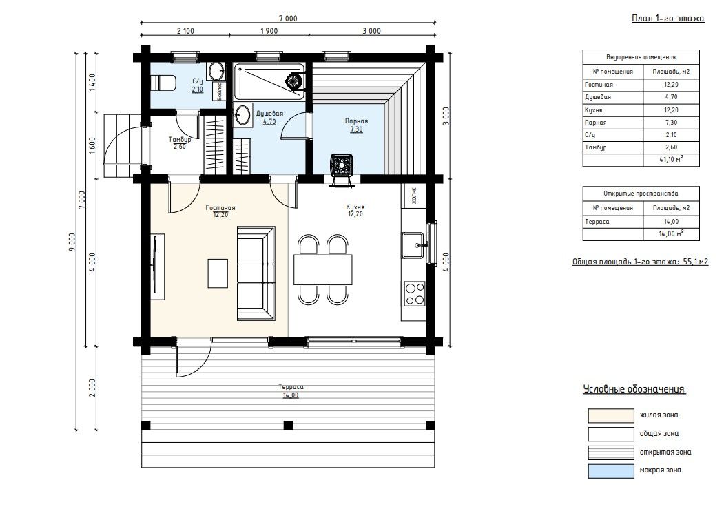
Изменить проектВольфсбург 8: Баня из клееного бруса – 7х9
Баня «Вольфсбург 8» в скандинавском стиле сочетает лаконичность дизайна, комфорт и функциональность.
Общая площадь постройки составляет 55 м², а размеры — 7 на 9 метров. Благодаря просторной террасе (14 м²), домик идеально подходит для отдыха на природе в любое время года.
Внутри предусмотрены все необходимые функциональные зоны: уютная гостиная (12 м²), кухня-столовая такого же размера, парная (7 м²), душевая (4 м²), санузел и тамбур. Такое зонирование делает баню полностью самодостаточной и удобной как для кратковременного отдыха, так и для длительных выездов с семьёй или друзьями.
Баня выполнена из клееного бруса — прочного и долговечного материала с отличной теплоизоляцией. Высокие окна, светлая отделка и гармоничные фасады подчёркивают скандинавский характер проекта.
«Вольфсбург 8» подойдёт тем, кто ценит комфорт, стиль и функциональность в компактном формате. Идеальный выбор для загородных участков, глэмпингов и баз отдыха.
| Описание | |
|---|---|
| 1. Фундамент |
|
| 2. Стеновой комплект |
|
| 3. Кровля |
|
| 4. Окна и двери |
|
| 5. Сопровождение строительства |
|
-
Заказать бесплатные изменения в проекте
или планировке
-
Получить фото и планировку этого проекта в WhatsApp или Telegram
Отправим
в течение
5 минут -
Получить расчет
стоимости в 3 вариантах комплектации
Остались вопросы?
Свяжитесь с нами или оставьте заявку — мы проконсультируем вас по всем вопросам.
Артем Ефремов
Эксперт по строительству
Похожие проекты
Другие- 7х9
- Размеры
- 41 м²
- Площадь помещений
Заполните форму и получите бесплатно: