

Рочестер
Идеальный проект для загородной жизни, объединяющий
стиль, комфорт и близость к природе.
Размеры
7х9Площадь помещений
29 м²Пятно застройки
63 м²Этажность
1Технология
Клееный брусСтиль
скандинавияСтоимость
от 4 638 500 руб.Размеры
7х9Площадь помещений
29 м²Пятно застройки
63 м²Этажность
1Технология
Клееный брусСтиль
скандинавияПо вашему запросу мы бесплатно доработаем планировку, чтобы вы получили максимальное удовольствие от загородного отдыха
Предложим планировку, в которой каждый квадратный метр будет использован с максимальной эффективностью
Увеличим или уменьшим площадь здания. Изменим расположение окон и дверей. Добавим санузел, ещё одну спальню для гостей, террасу и так далее
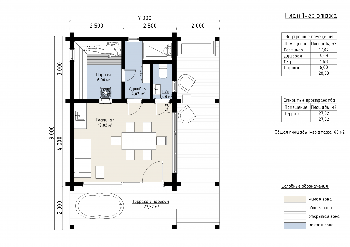
Изменить проектРочестер: Финская баня из клееного бруса – 7х9
Финская баня из клееного бруса размером 7х9 м «Рочестер» создана для ценителей комфорта и элегантности.
Общая площадь проекта составляет 63 м², что делает его подходящим для больших участков и уютного отдыха с семьей или друзьями. Баня выполнена в современном стиле, с использованием натуральных материалов и продуманным дизайном. Внутренние помещения занимают 29 м² и включают просторную гостиную площадью 17 м², парную 6 м², душевую 4 м² и санузел 1,5 м². Открытая терраса с навесом площадью 28 м² предоставляет прекрасные возможности для организации зоны отдыха, установки барбекю или размещения столовой группы. Проект «Рочестер» идеально сочетает стильный внешний вид с функциональностью. Большая терраса, светлая гостиная и комфортная парная создают превосходные условия для отдыха, позволяя насладиться теплом бани и атмосферой загородной жизни.
| Описание | |
|---|---|
| 1. Фундамент |
|
| 2. Стеновой комплект |
|
| 3. Кровля |
|
| 4. Окна и двери |
|
| 5. Сопровождение строительства |
|
-
Заказать бесплатные изменения в проекте
или планировке
-
Получить фото и планировку этого проекта в WhatsApp или Telegram
Отправим
в течение
5 минут -
Получить расчет
стоимости в 3 вариантах комплектации
Остались вопросы?
Свяжитесь с нами или оставьте заявку — мы проконсультируем вас по всем вопросам.
Артем Ефремов
Эксперт по строительству
Похожие проекты
Другие- 7х9
- Размеры
- 29 м²
- Площадь помещений
Заполните форму и получите бесплатно: