

Карпинето
Баня из клееного бруса с просторной террасой,
идеальной для отдыха на свежем воздухе.
Размеры
7х9Площадь помещений
29 м²Пятно застройки
63 м²Этажность
1Технология
Клееный брусСтиль
МинимализмСтоимость
от 4 639 000 руб.Размеры
7х9Площадь помещений
29 м²Пятно застройки
63 м²Этажность
1Технология
Клееный брусСтиль
МинимализмПо вашему запросу мы бесплатно доработаем планировку, чтобы вы получили максимальное удовольствие от загородного отдыха
Предложим планировку, в которой каждый квадратный метр будет использован с максимальной эффективностью
Увеличим или уменьшим площадь здания. Изменим расположение окон и дверей. Добавим санузел, ещё одну спальню для гостей, террасу и так далее
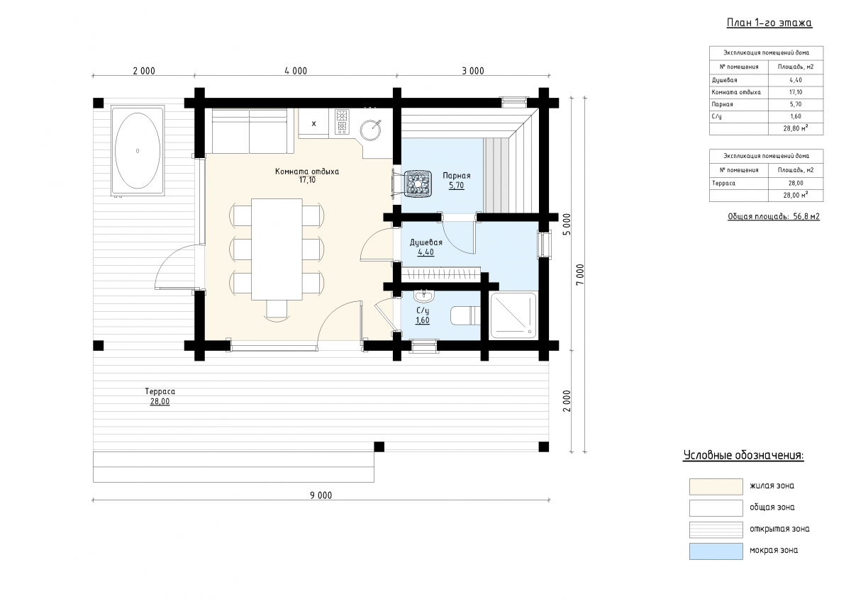
Изменить проектКарпинето: Финская баня из клееного бруса – 7х9
Финская баня из клееного бруса 7х9 м “Карпинето” общей площадью 57 м² сочетает современный стиль и функциональность.
Просторная терраса в 28 м² создаёт уютное пространство для отдыха на свежем воздухе, а лаконичный дизайн гармонично вписывается в природный пейзаж.
Внутри 29 м² полезной площади распределены на комфортную комнату отдыха 17 м², парную 6 м², душевую 4 м² и санузел 2 м². Просторные окна обеспечивают отличное естественное освещение и визуально расширяют пространство.
Проект “Карпинето” идеально подойдёт для семейных выходных или отдыха в компании друзей. Удобная планировка и качественные материалы гарантируют долговечность и комфорт использования.
| Описание | |
|---|---|
| 1. Фундамент |
|
| 2. Стеновой комплект |
|
| 3. Кровля |
|
| 4. Окна и двери |
|
| 5. Сопровождение строительства |
|
-
Заказать бесплатные изменения в проекте
или планировке
-
Получить фото и планировку этого проекта в WhatsApp или Telegram
Отправим
в течение
5 минут -
Получить расчет
стоимости в 3 вариантах комплектации
Остались вопросы?
Свяжитесь с нами или оставьте заявку — мы проконсультируем вас по всем вопросам.
Артем Ефремов
Эксперт по строительству
Похожие проекты
Другие- 7х9
- Размеры
- 29 м²
- Площадь помещений
Заполните форму и получите бесплатно: