
Баня Вольфсбург 9
Функциональная баня с большой крытой террасой,
создаёт комфортные условия для отдыха в любое время года.
Размеры
8х10Площадь помещений
56 м²Пятно застройки
80 м²Этажность
1Технология
Клееный брусСтиль
СкандинавияСтоимость
от 6 460 000 руб.Размеры
8х10Площадь помещений
56 м²Пятно застройки
80 м²Этажность
1Технология
Клееный брусСтиль
СкандинавияПо вашему запросу мы бесплатно доработаем планировку, чтобы вы получили максимальное удовольствие от загородного отдыха
Предложим планировку, в которой каждый квадратный метр будет использован с максимальной эффективностью
Увеличим или уменьшим площадь здания. Изменим расположение окон и дверей. Добавим санузел, ещё одну спальню для гостей, террасу и так далее
Изменить проектВольфсбург 9: Баня из клееного бруса – 8х10
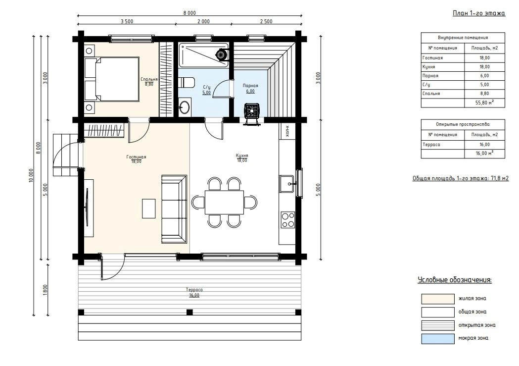
Баня из клееного бруса "Вольфсбург 9" — просторное и стильное решение для ценителей комфорта и гармонии с природой.
Общая площадь постройки составляет 72 м², включая открытую зону для отдыха.
Планировка продумана для комфортного времяпрепровождения компанией до 6 человек. Внутри расположены гостиная и кухня по 18 м² — идеальное пространство для посиделок, приёма пищи и отдыха. Парная площадью 5 м² и душевая 6 м² формируют полноценный спа-блок. Дополнительно предусмотрен санузел и спальня на 9 м² — решение для отдыха с ночёвкой. Большая терраса (16 м²) под навесом подойдёт для зоны барбекю, лежаков или обеденного стола.
Проект строится из клееного бруса — экологичного и долговечного материала, устойчивого к деформациям. Лаконичный фасад с акцентом на широкую кровлю и прямые формы делает эту баню органичным дополнением к участкам в любом стиле.
«Вольфсбург 9» идеально подойдёт для загородных домовладений, баз отдыха и загородных гостиниц, где важны эстетика, функциональность и комфорт.
| Описание | |
|---|---|
| 1. Фундамент |
|
| 2. Стеновой комплект |
|
| 3. Кровля |
|
| 4. Окна и двери |
|
| 5. Сопровождение строительства |
|
-
Заказать бесплатные изменения в проекте
или планировке
-
Получить фото и планировку этого проекта в WhatsApp или Telegram
Отправим
в течение
5 минут -
Получить расчет
стоимости в 3 вариантах комплектации
Остались вопросы?
Свяжитесь с нами или оставьте заявку — мы проконсультируем вас по всем вопросам.
Артем Ефремов
Эксперт по строительству
Похожие проекты
Другие- 8х10
- Размеры
- 56 м²
- Площадь помещений
Заполните форму и получите бесплатно: