
Альтенбург
Баня в современном фахверковом стиле,
гармонично сочетающий дерево и стекло.
Размеры
6х10Площадь помещений
41 м²Пятно застройки
60 м²Этажность
1Технология
КаркаснаяСтиль
ФахверкСтоимость
от 3 008 000 руб.Размеры
6х10Площадь помещений
41 м²Пятно застройки
60 м²Этажность
1Технология
КаркаснаяСтиль
ФахверкПо вашему запросу мы бесплатно доработаем планировку, чтобы вы получили максимальное удовольствие от загородного отдыха
Предложим планировку, в которой каждый квадратный метр будет использован с максимальной эффективностью
Увеличим или уменьшим площадь здания. Изменим расположение окон и дверей. Добавим санузел, ещё одну спальню для гостей, террасу и так далее
Изменить проектАльтенбург: Фахверковая баня – 6х10
Элегантная каркасная баня "Альтенбург" выполнена в современном стиле с элементами фахверка.
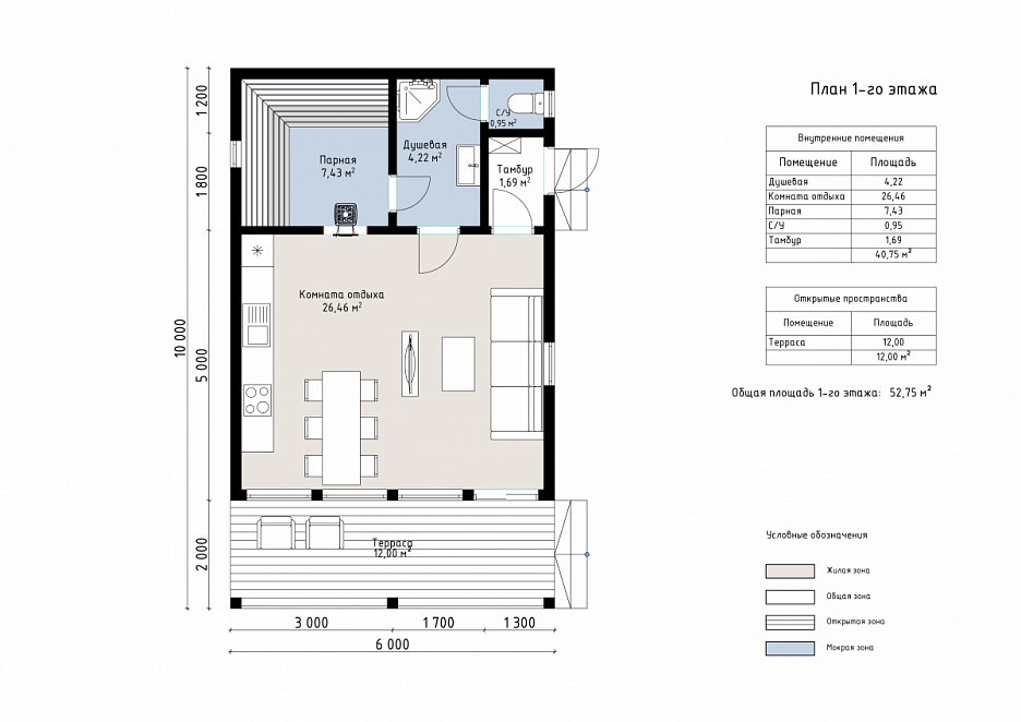
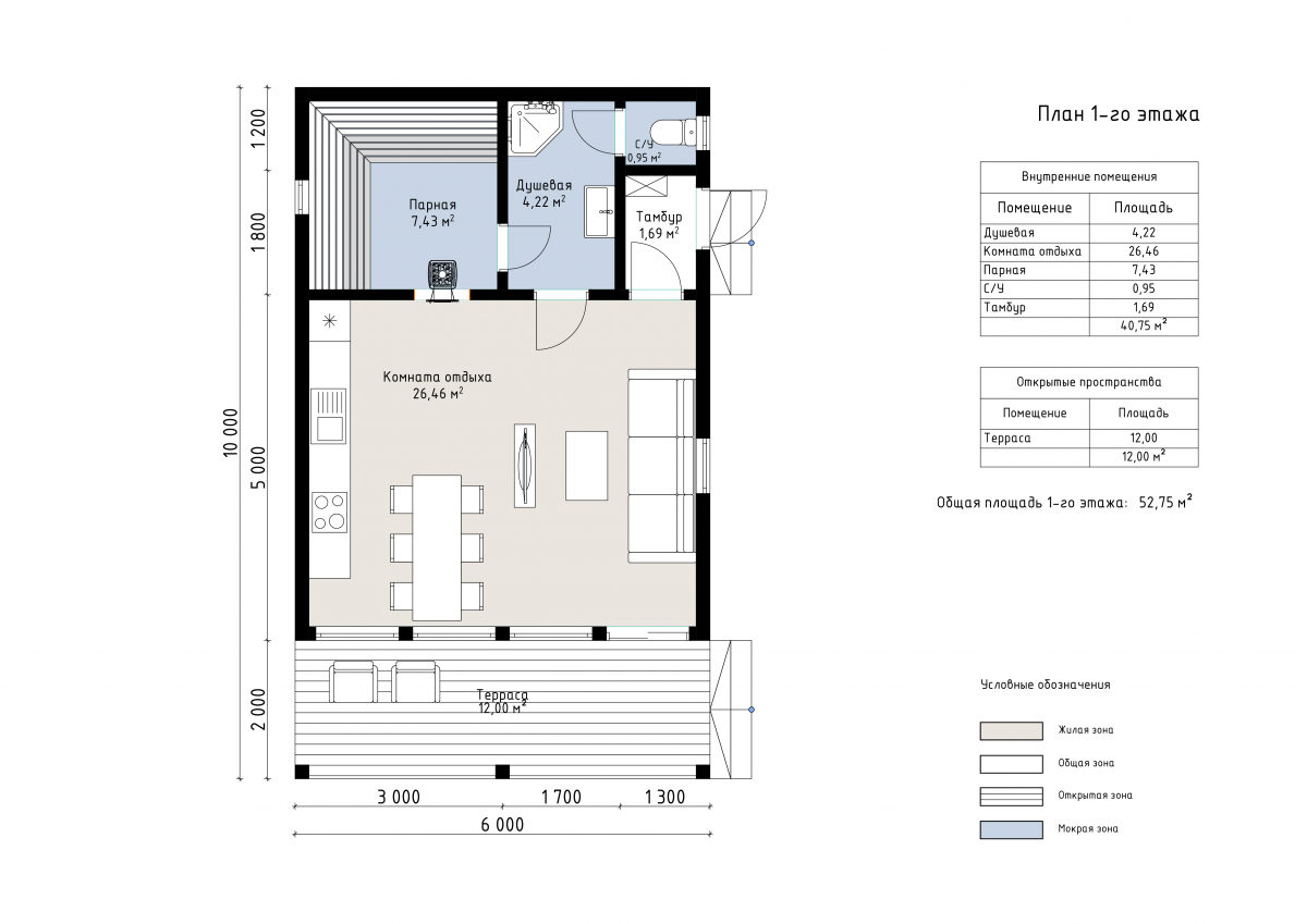
Просторная терраса площадью 12 м² создаёт уютное пространство для отдыха на свежем воздухе. Внутреннее пространство включает комфортную комнату отдыха 26 м² с кухонной зоной, что делает баню многофункциональной. Парная 7 м² обеспечивает отличные условия для полноценного расслабления, а душевая 4 м² дополняет удобство. Также предусмотрены тамбур 2 м² и санузел 1 м². Общая площадь постройки составляет 53 м².
- Бани под ключ
- Готовые бани с отделкой
- Готовые бани с панорамными окнами
- Дачные
- Деревянные
- Каркасные бани
- Классические одноэтажные бани
- Красивые бани с панорамными окнами
- Недорогие бани с барбекю
- Недорогие бани с душем
- Недорогие бани с мангалом
- Недорогие бани с печкой
- Оригинальные одноэтажные бани
- Современные бани с панорамными окнами
- Типовые проекты бань
- Финские бани на дачу
- Финские бани с панорамными окнами
- Финские бани с печкой
| Описание | |
|---|---|
| 1. Фундамент |
|
| 2. Стеновой комплект |
|
| 3. Кровля |
|
| 4. Окна и двери |
|
| 5. Сопровождение строительства |
|
-
Заказать бесплатные изменения в проекте
или планировке
-
Получить фото и планировку этого проекта в WhatsApp или Telegram
Отправим
в течение
5 минут -
Получить расчет
стоимости в 3 вариантах комплектации
Остались вопросы?
Свяжитесь с нами или оставьте заявку — мы проконсультируем вас по всем вопросам.
Артем Ефремов
Эксперт по строительству
Похожие проекты
Другие- 6х10
- Размеры
- 41 м²
- Площадь помещений
Заполните форму и получите бесплатно: