

Дюссельдорф
Уютная баня в стиле фахверк,
с панорамными окнами и светлым интерьером.
Размеры
6х4Площадь помещений
20 м²Пятно застройки
24 м²Этажность
1Технология
КаркаснаяСтиль
ФахверкСтоимость
от 1 746 000 руб.Размеры
6х4Площадь помещений
20 м²Пятно застройки
24 м²Этажность
1Технология
КаркаснаяСтиль
ФахверкПо вашему запросу мы бесплатно доработаем планировку, чтобы вы получили максимальное удовольствие от загородного отдыха
Предложим планировку, в которой каждый квадратный метр будет использован с максимальной эффективностью
Увеличим или уменьшим площадь здания. Изменим расположение окон и дверей. Добавим санузел, ещё одну спальню для гостей, террасу и так далее
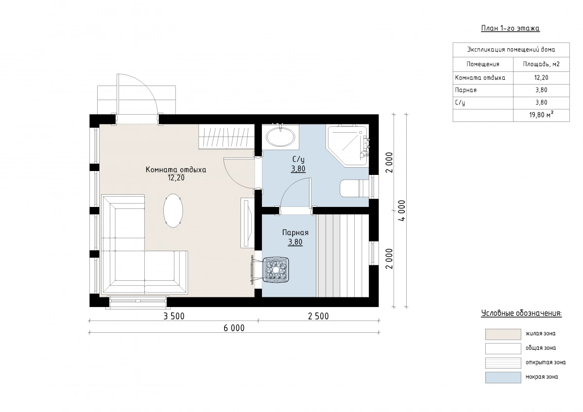
Изменить проектДюссельдорф: Фахверковая баня – 6х4
Фахверковая баня 4×6 м «Дюссельдорф» общей площадью 20 м² выполнена по каркасной технологии, что обеспечивает быстрые сроки строительства и отличные теплоизоляционные свойства.
Стильный фахверковый дизайн с панорамными окнами наполняет баню светом и визуально увеличивает пространство. Компактная планировка идеально подходит для небольших участков и уютного отдыха. Внутренние помещения занимают 20 м², включая комнату отдыха 12 м², парную и душевую по 4 м². Проект «Дюссельдорф» — выбор для любителей минимализма и современного стиля. Простая архитектура, уютная планировка и стильное оформление делают его универсальным для любых участков.
- 4x6
- Бани под ключ
- Бани с комнатой отдыха в стиле Лофт
- Бани с панорамными окнами в стиле Хай-тек
- Готовые бани в стиле Модерн
- Готовые бани с отделкой
- Готовые бани с панорамными окнами
- Готовые финские бани
- Дачные
- Деревянные
- Дизайнерские бани в стиле Хай-тек
- Дизайнерские одноэтажные бани
- Каркасные бани
- Классические одноэтажные бани
- Красивые бани с панорамными окнами
- Мини бани в стиле Лофт
- Недорогие бани с душем
- Недорогие бани с печкой
- Одноэтажные бани в стиле Лофт
- Одноэтажные бани в стиле Минимализм
- Одноэтажные бани в стиле Модерн
- Одноэтажные бани в стиле Хай-тек
- Оригинальные одноэтажные бани
- Скандинавские бани с комнатой отдыха
- Скандинавские одноэтажные бани
- Современные бани в стиле Минимализм
- Современные бани в стиле Модерн
- Современные бани с панорамными окнами
- Типовые проекты бань
- Финские бани на дачу
- Финские бани с панорамными окнами
- Финские бани с печкой
| Описание | |
|---|---|
| 1. Фундамент |
|
| 2. Стеновой комплект |
|
| 3. Кровля |
|
| 4. Окна и двери |
|
| 5. Сопровождение строительства |
|
-
Заказать бесплатные изменения в проекте
или планировке
-
Получить фото и планировку этого проекта в WhatsApp или Telegram
Отправим
в течение
5 минут -
Получить расчет
стоимости в 3 вариантах комплектации
Остались вопросы?
Свяжитесь с нами или оставьте заявку — мы проконсультируем вас по всем вопросам.
Артем Ефремов
Эксперт по строительству
Похожие проекты
Другие- 6х4
- Размеры
- 20 м²
- Площадь помещений
Заполните форму и получите бесплатно: