

Баня Остия
Идеальный выбор для
большой семьи или компании.
Размеры
10,3х15Площадь помещений
96 м²Пятно застройки
10 м²Этажность
1Технология
БрусСтиль
СкандинавияСтоимость
от 5 998 000 руб.Размеры
10,3х15Площадь помещений
96 м²Пятно застройки
10 м²Этажность
1Технология
БрусСтиль
СкандинавияПо вашему запросу мы бесплатно доработаем планировку, чтобы вы получили максимальное удовольствие от загородного отдыха
Предложим планировку, в которой каждый квадратный метр будет использован с максимальной эффективностью
Увеличим или уменьшим площадь здания. Изменим расположение окон и дверей. Добавим санузел, ещё одну спальню для гостей, террасу и так далее
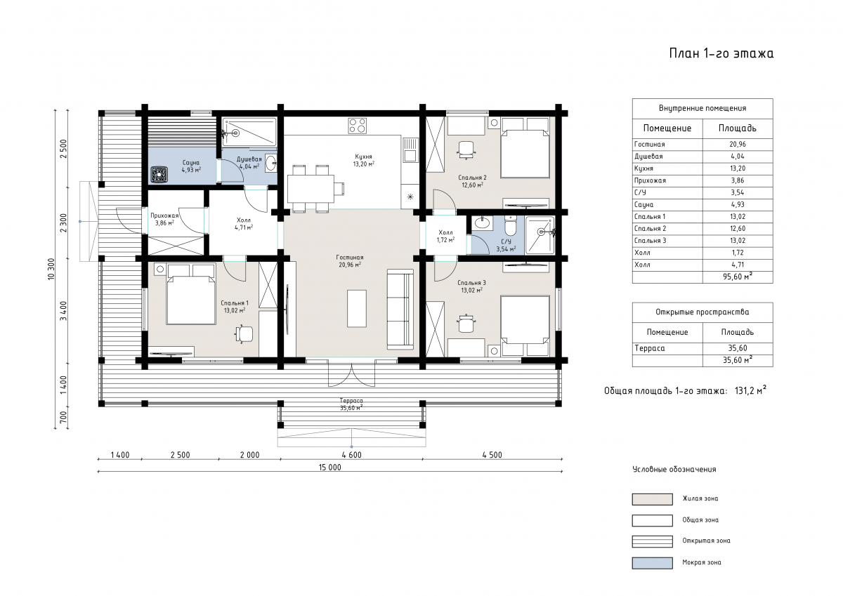
Изменить проектОстия: Баня из бруса – 10,3х15
Просторная баня «Остия» сочетает современный стиль, комфорт и функциональность.
Архитектура выполнена в классическом стиле с широкими террасами по всему фасаду, создающими уютную зону отдыха на свежем воздухе. Основной строительный материал — профилированный брус, обеспечивающий надежность, теплоизоляцию и эстетичный внешний вид.
Планировка продумана до мелочей: центральную часть занимает просторная гостиная (около 21 м²), объединенная с кухней-столовой (13 м²), что делает помещение открытым и удобным для приема гостей. В проекте предусмотрены три изолированные спальни площадью по 12–13 м², что позволяет комфортно разместиться семьям с детьми или друзьям. Мокрая зона включает в себя душевую, санузел и полноценную сауну, общей площадью около 12 м². Просторная терраса 35 м² — отличное место для летнего ужина или расслабляющего вечера.
«Остия» идеально подходит как для круглогодичного проживания, так и для сезонного использования. Проект сочетает комфорт жилого дома и функциональность бани. Он ориентирован на тех, кто ценит уют, пространство и высокое качество исполнения.
| Описание | |
|---|---|
| 1. Фундамент |
|
| 2. Стеновой комплект |
|
| 3. Кровля |
|
| 4. Окна и двери |
|
| 5. Сопровождение строительства |
|
-
Заказать бесплатные изменения в проекте
или планировке
-
Получить фото и планировку этого проекта в WhatsApp или Telegram
Отправим
в течение
5 минут -
Получить расчет
стоимости в 3 вариантах комплектации
Остались вопросы?
Свяжитесь с нами или оставьте заявку — мы проконсультируем вас по всем вопросам.
Артем Ефремов
Эксперт по строительству
Похожие проекты
Другие- 10,3х15
- Размеры
- 96 м²
- Площадь помещений
Заполните форму и получите бесплатно: