

Долорес
Баня с купелью и сауной,
для полного расслабления после парных процедур.
Размеры
11х8Площадь помещений
60 м²Пятно застройки
88 м²Этажность
1Технология
КаркаснаяСтиль
минимализмСтоимость
от 4 932 000 руб.Размеры
11х8Площадь помещений
60 м²Пятно застройки
88 м²Этажность
1Технология
КаркаснаяСтиль
минимализмПо вашему запросу мы бесплатно доработаем планировку, чтобы вы получили максимальное удовольствие от загородного отдыха
Предложим планировку, в которой каждый квадратный метр будет использован с максимальной эффективностью
Увеличим или уменьшим площадь здания. Изменим расположение окон и дверей. Добавим санузел, ещё одну спальню для гостей, террасу и так далее
Изменить проектДолорес: Каркасная баня – 11х8
Каркасная баня "Долорес" сочетает в себе комфорт, простор и современный стиль.
Ее плоская крыша и панорамные окна создают ощущение открытого пространства, а широкая терраса делает баню идеальной для отдыха на свежем воздухе. Внутри предусмотрено все необходимое для полноценного отдыха: просторная комната отдыха, вместительная купельная зона и традиционная сауна. Баня отлично впишется как в дачный, так и в загородный участок.
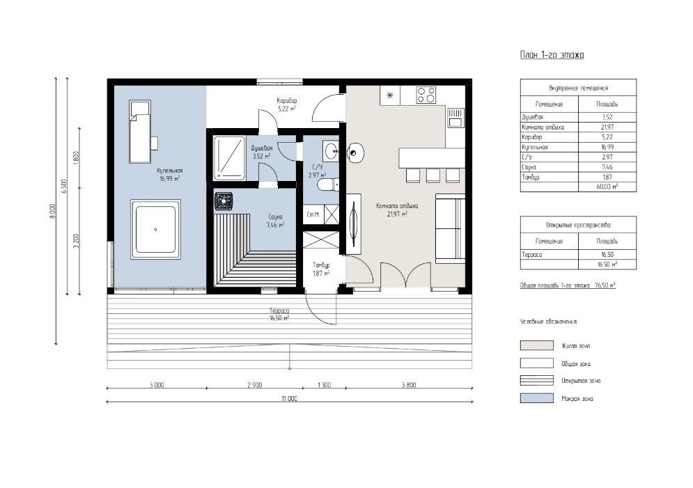
Планировка включает просторную комнату отдыха (22 м²), сауну (7 м²), купельную (17 м²), душевую (4 м²) и санузел (3 м²). Коридор (5 м²) и тамбур (2 м²) обеспечивают удобное зонирование пространства. Широкая терраса (17 м²) добавляет уюта и функциональности.
| Описание | |
|---|---|
| 1. Фундамент |
|
| 2. Стеновой комплект |
|
| 3. Кровля |
|
| 4. Окна и двери |
|
| 5. Сопровождение строительства |
|
-
Заказать бесплатные изменения в проекте
или планировке
-
Получить фото и планировку этого проекта в WhatsApp или Telegram
Отправим
в течение
5 минут -
Получить расчет
стоимости в 3 вариантах комплектации
Остались вопросы?
Свяжитесь с нами или оставьте заявку — мы проконсультируем вас по всем вопросам.
Артем Ефремов
Эксперт по строительству
Похожие проекты
Другие- 11х8
- Размеры
- 60 м²
- Площадь помещений
Заполните форму и получите бесплатно: