

Санторини
Баня с акцентом на комфорт и эстетику,
включающая террасу и отдельные спальни для гостей.
Размеры
14х9Площадь помещений
85 м²Пятно застройки
126 м²Этажность
1Технология
КаркаснаяСтиль
СкандинавияСтоимость
от 5 490 000 руб.Размеры
14х9Площадь помещений
85 м²Пятно застройки
126 м²Этажность
1Технология
КаркаснаяСтиль
СкандинавияПо вашему запросу мы бесплатно доработаем планировку, чтобы вы получили максимальное удовольствие от загородного отдыха
Предложим планировку, в которой каждый квадратный метр будет использован с максимальной эффективностью
Увеличим или уменьшим площадь здания. Изменим расположение окон и дверей. Добавим санузел, ещё одну спальню для гостей, террасу и так далее
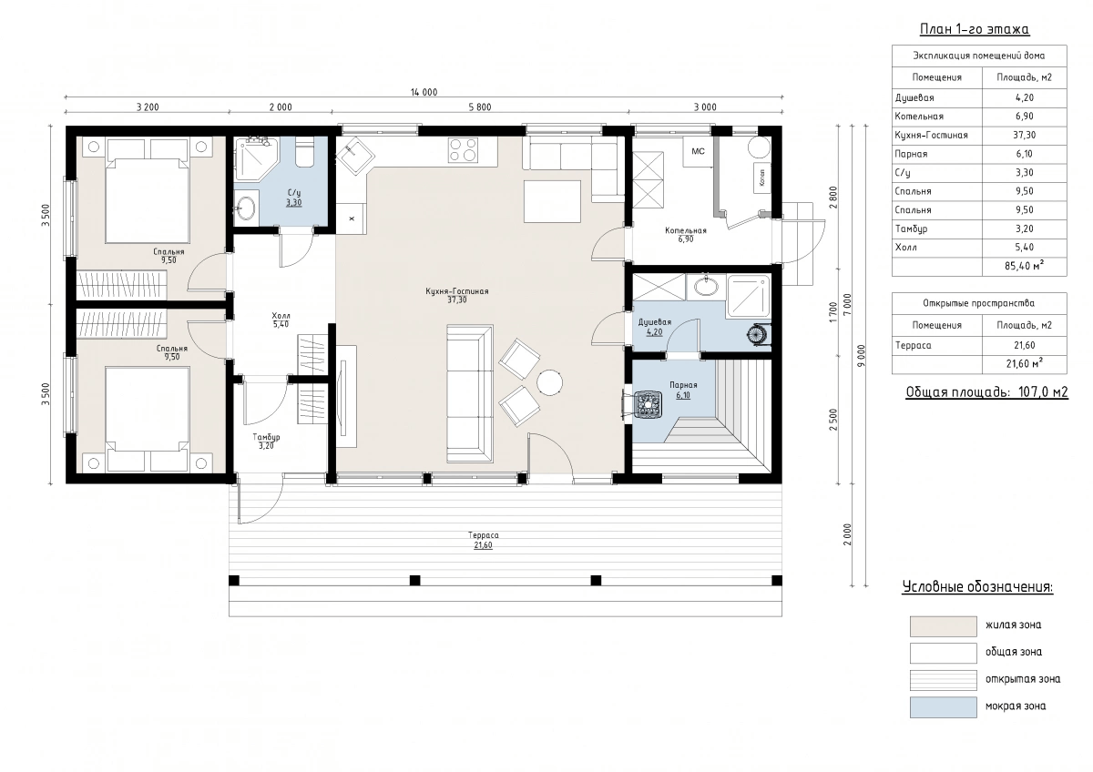
Изменить проектСанторини: Каркасная баня – 14х9
Просторная и стильная каркасная баня "Санторини" станет идеальным местом для отдыха всей семьей или в кругу друзей.
Основная зона представляет собой большую кухню-гостиную площадью 37 м², оснащенную панорамными окнами, которые наполняют помещение естественным светом. В бане предусмотрено две уютные спальни по 9 м² каждая, что обеспечивает комфортное размещение гостей. Парная размером 6 м² вмещает до 6 человек, а примыкающая душевая комната в 5 м² гарантирует удобство после процедур. Для максимального расслабления доступна отдельная зона для купели, а просторная терраса площадью 21 м² идеально подходит для летнего отдыха на свежем воздухе. Современный дизайн и продуманная планировка делают «Санторини» отличным выбором для тех, кто ценит комфорт и эстетику.
| Описание | |
|---|---|
| 1. Фундамент |
|
| 2. Стеновой комплект |
|
| 3. Кровля |
|
| 4. Окна и двери |
|
| 5. Сопровождение строительства |
|
-
Заказать бесплатные изменения в проекте
или планировке
-
Получить фото и планировку этого проекта в WhatsApp или Telegram
Отправим
в течение
5 минут -
Получить расчет
стоимости в 3 вариантах комплектации
Остались вопросы?
Свяжитесь с нами или оставьте заявку — мы проконсультируем вас по всем вопросам.
Артем Ефремов
Эксперт по строительству
Похожие проекты
Другие- 14х9
- Размеры
- 85 м²
- Площадь помещений
Заполните форму и получите бесплатно: