

Гессен
Финская баня в стиле Барнхаус
с лаконичным дизайном и удобной планировкой.
Размеры
4х8Площадь помещений
20 м²Пятно застройки
32 м²Этажность
1Технология
КаркаснаяСтиль
БарнхаусСтоимость
от 1 952 000 руб.Размеры
4х8Площадь помещений
20 м²Пятно застройки
32 м²Этажность
1Технология
КаркаснаяСтиль
БарнхаусПо вашему запросу мы бесплатно доработаем планировку, чтобы вы получили максимальное удовольствие от загородного отдыха
Предложим планировку, в которой каждый квадратный метр будет использован с максимальной эффективностью
Увеличим или уменьшим площадь здания. Изменим расположение окон и дверей. Добавим санузел, ещё одну спальню для гостей, террасу и так далее
Изменить проектГессен: Каркасная баня – 4х8
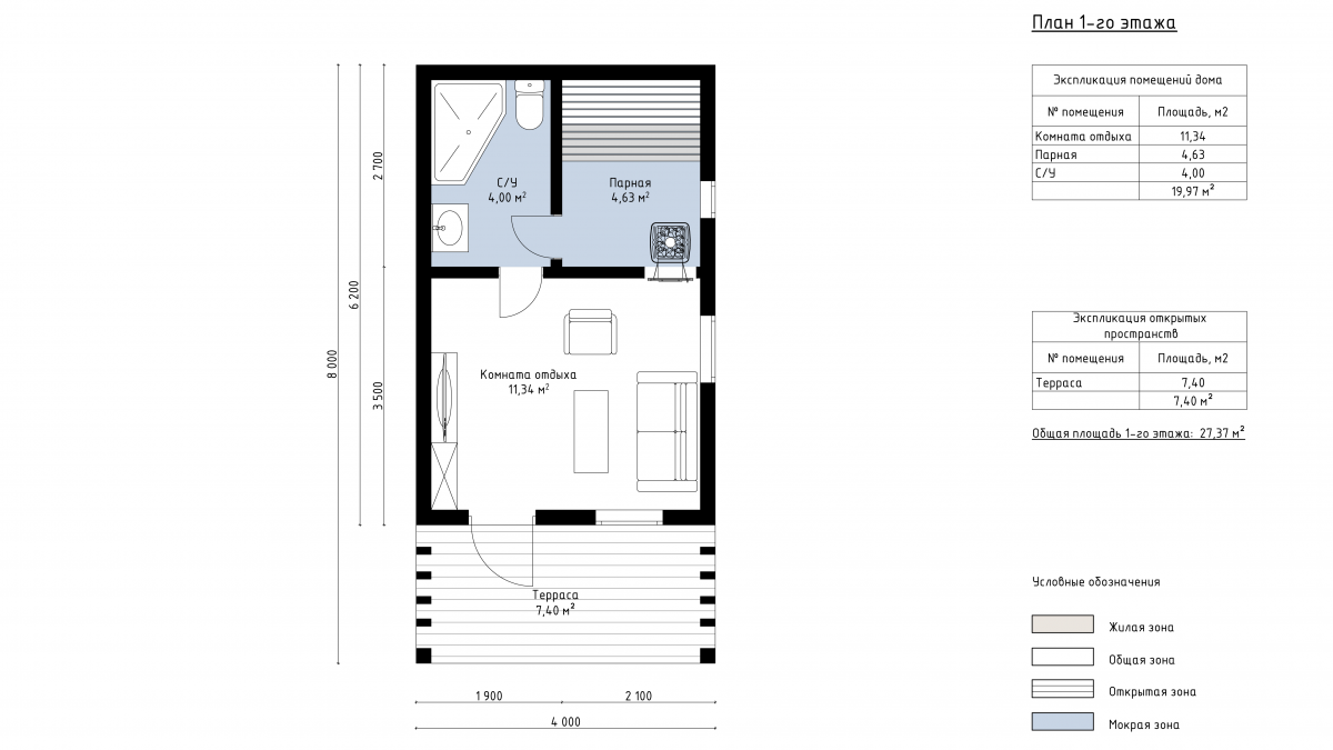
Финская баня 8×4 м «Гессен» общей площадью 27 м² выполнена по каркасной технологии, что снижает сроки строительства и обеспечивает долговечность.
Стиль Барнхаус с минималистичным дизайном подчеркивает современность. Компактная планировка идеально подходит для небольших участков.
Общая площадь внутренних помещений — 20 м², включая комнату отдыха 11 м², парную 5 м², душевую и санузел. Просторная терраса 7 м² создает уютную зону для отдыха на свежем воздухе.
«Гессен» сочетает стильный дизайн и практичность, предлагая комфортное пространство для расслабления и встреч с друзьями.
| Описание | |
|---|---|
| 1. Фундамент |
|
| 2. Стеновой комплект |
|
| 3. Кровля |
|
| 4. Окна и двери |
|
| 5. Сопровождение строительства |
|
-
Заказать бесплатные изменения в проекте
или планировке
-
Получить фото и планировку этого проекта в WhatsApp или Telegram
Отправим
в течение
5 минут -
Получить расчет
стоимости в 3 вариантах комплектации
Остались вопросы?
Свяжитесь с нами или оставьте заявку — мы проконсультируем вас по всем вопросам.
Артем Ефремов
Эксперт по строительству
Похожие проекты
Другие- 4х8
- Размеры
- 20 м²
- Площадь помещений
Заполните форму и получите бесплатно: