CUBE 5

Баня с удобной зоной отдыха
и оптимальным использованием пространства

Размеры

4х8

Площадь помещений

22 м²

Пятно застройки

32 м²

Этажность

1

Технология

Каркасная

Стиль

Минимализм

Стоимость

от 1 815 000 ₽
от 1 815 000 ₽

Размеры

4х8

Площадь помещений

22 м²

Пятно застройки

32 м²

Этажность

1

Технология

Каркасная

Стиль

Минимализм
Бесплатно
Бесплатно адаптируем планировку для вас

По вашему запросу мы бесплатно доработаем планировку, чтобы вы получили максимальное удовольствие от загородного отдыха

Предложим планировку, в которой каждый квадратный метр будет использован с максимальной эффективностью

Планировка

Увеличим или уменьшим площадь здания. Изменим расположение окон и дверей. Добавим санузел, ещё одну спальню для гостей, террасу и так далее

Изменить проект

CUBE 5: Каркасная баня – 4х8

Баня Cube 5 (4х8) — это компактный проект в стиле минимализм, выполненный из клеёного бруса с отделкой деревом как внутри, так и снаружи.

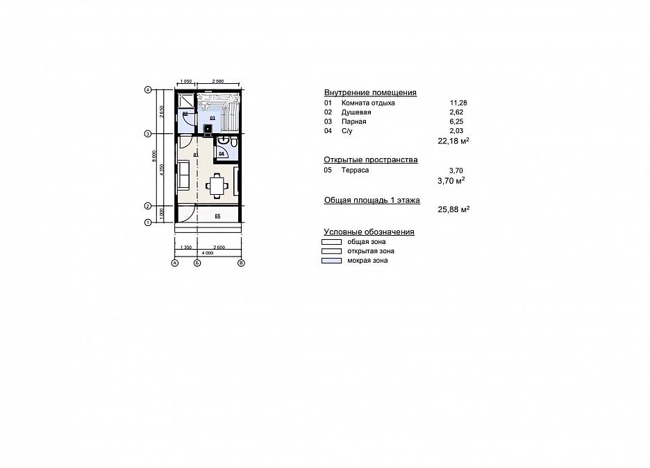
Фасад выдержан в скандинавской эстетике с акцентом на природные текстуры и панорамное остекление, которое наполняет помещение светом и объединяет интерьер с ландшафтом участка. Планировка включает комнату отдыха (11,3 м²), санузел (2 м²), душевую (2,6 м²) и полноценную парную (6,2 м²). Также предусмотрена терраса площадью 3,7 м² — отличное место для отдыха на свежем воздухе. Общая площадь бани — 26 м². Баня подойдёт для загородного отдыха на выходных, приёма гостей или использования как компактный дом с парной. Проект оптимален для семьи или пары, ценящих уединение, природные материалы и простоту в архитектуре.
Оплата Доставка
Описание
1. Фундамент
  • Геодезические исследования (топосъемка) участка
  • Геологические иследования участка
  • Подбор фундамента
  • Проект фундамента
  • Привязка строения на местности
  • Забивные ж/б сваи
  • Монолитный ж/б ростверк
  • Приемка инженером технического надзора
2. Стеновой комплект
  • Рабочий проект КД
  • Подкладочная доска из лиственницы
  • Брус клееный стеновой производства, сечение 175х185(h), немецкий профиль
  • Балки и столбы сухие, клееные, строганные
  • Комплектующие, фурнитура
  • Лестница межэтажная черновая однопролетная
  • Доставка стенового комплекта
  • Сборка стенового комплекта
  • Приемка инженером технического надзора
3. Кровля
  • Рабочий проект КД кровли
  • Покрытие кровли - металлочерепица с полимерным покрытием
  • Стропила сухие
  • Утепление 250 мм
  • Гидро-ветрозащитная мембарана
  • Пароизоляционная пленка
  • Комплектующие, фурнитура
  • Водосточная система
  • Трубчатая система снегозадержания
  • Техническая вентиляция
  • Подшивная доска для свесов кровли
  • Доставка
  • Сборка
  • Приемка инженером технического надзора
4. Окна и двери
  • ПВХ-профиль 70 мм и фурнитура
  • Стеклопакеты энергосберегающие многофункциональные
  • Входная дверь
  • Комплектующие
  • Внешние наличники
  • Монтаж
  • Приемка инженером технического надзора
5. Сопровождение строительства
  • Организация проживания рабочих (бытовка)
  • Подключение бытовки к электричеству
  • Организация биотуалета
  • Вывоз мусора

Остались вопросы?

Свяжитесь с нами или оставьте заявку — мы проконсультируем вас по всем вопросам.

Артем Ефремов

Артем Ефремов

Эксперт по строительству

Выберите удобный для вас способ связи:

Смотрите также похожие
  • По стоимости
    Проекты бань до 5 млн. ₽
    Иконка
  • По площади
    Проекты бань до 60 м2
    Иконка
  • По размеру
    Проекты бань 6x6
    Иконка
  • По материалу
    Каркасные бани под ключ
    Иконка
CUBE 5

Баня с удобной зоной отдыха
и оптимальным использованием пространства

Стоимость

от 1 815 000 ₽

Размеры

4х8

Площадь помещений

22 м²

Мы используем файлы cookie
для обеспечения наилучшего
взаимодействия с сайтом

наверх
Акция! До 16 февраля
Получите дизайн-проект бани под ваши размеры бесплатно
Отрисуем планировку бани
Рассчитаем стоимость
Поможем выбрать стиль
Введите телефон, чтобы получить доступ к документу:
Заполните это поле
Получить дизайн-проект
Я согласен с условиями политики конфиденциальности