

Салерно
Компактный и стильный проект,
подходящий для загородного отдыха.
Размеры
6х4Площадь помещений
19 м²Пятно застройки
24 м²Этажность
1Технология
БрусСтиль
ТрадиционныйСтоимость
от 1 082 000 руб.Размеры
6х4Площадь помещений
19 м²Пятно застройки
24 м²Этажность
1Технология
БрусСтиль
ТрадиционныйПо вашему запросу мы бесплатно доработаем планировку, чтобы вы получили максимальное удовольствие от загородного отдыха
Предложим планировку, в которой каждый квадратный метр будет использован с максимальной эффективностью
Увеличим или уменьшим площадь здания. Изменим расположение окон и дверей. Добавим санузел, ещё одну спальню для гостей, террасу и так далее
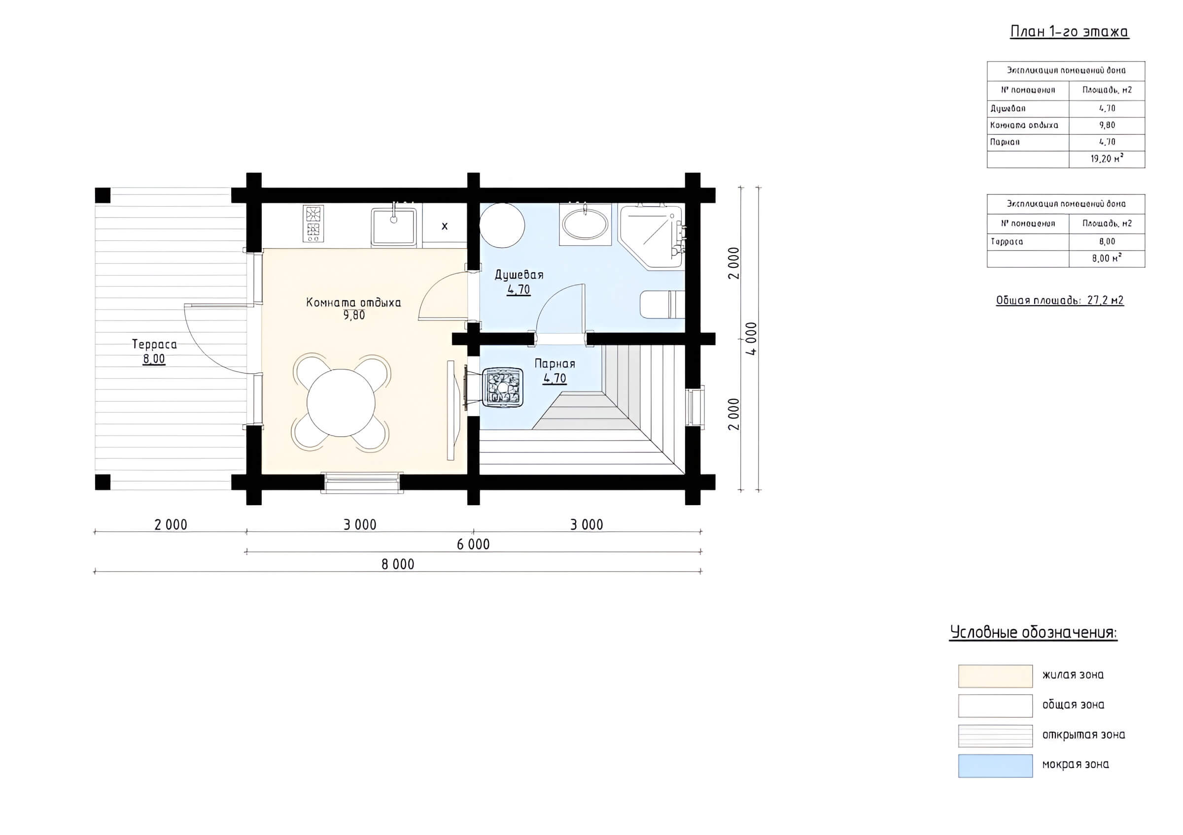
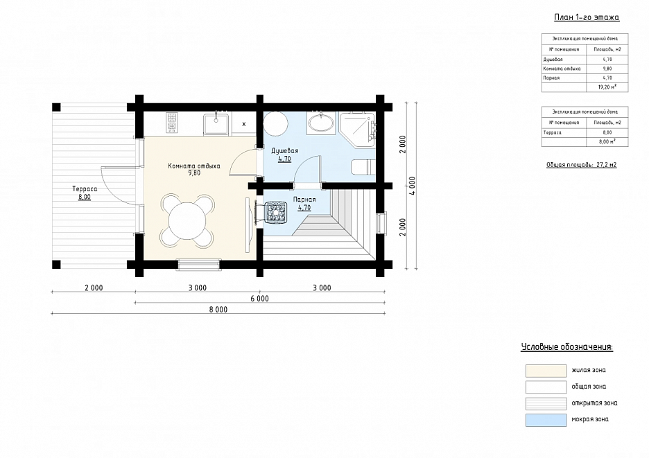
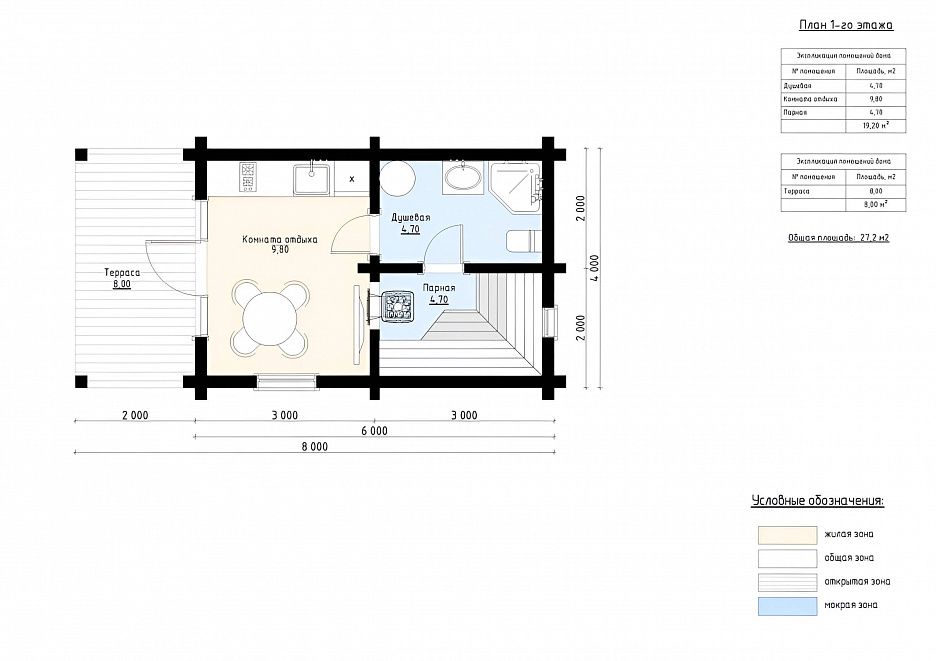
Изменить проектСалерно: Баня из бруса – 6х4
Компактная и уютная баня «Салерно» — это идеальный выбор для небольшого участка.
Здание площадью 27 м² выполнено из прочного профилированного бруса, обеспечивающего хорошую теплоизоляцию и долговечность конструкции. Натуральная фактура древесины гармонирует с каменным цоколем и крышей из мягкой черепицы, создавая тёплый и основательный облик. Функциональное зонирование включает: парную (4,7 м²), душевую (4,7 м²) и просторную комнату отдыха (9,8 м²), где можно разместить стол или диванную группу. Терраса площадью 8 м² находится под навесом и подойдёт для размещения гриля или вечернего отдыха на свежем воздухе. Благодаря продуманной планировке баня подходит для семейного использования или приёма гостей. Салерно — это компактное и стильное решение для тех, кто ценит комфорт, натуральные материалы и традиционную эстетику деревянной архитектуры.
| Описание | |
|---|---|
| 1. Фундамент |
|
| 2. Стеновой комплект |
|
| 3. Кровля |
|
| 4. Окна и двери |
|
| 5. Сопровождение строительства |
|
-
Заказать бесплатные изменения в проекте
или планировке
-
Получить фото и планировку этого проекта в WhatsApp или Telegram
Отправим
в течение
5 минут -
Получить расчет
стоимости в 3 вариантах комплектации
Остались вопросы?
Свяжитесь с нами или оставьте заявку — мы проконсультируем вас по всем вопросам.
Артем Ефремов
Эксперт по строительству
Похожие проекты
Другие- 6х4
- Размеры
- 19 м²
- Площадь помещений
Заполните форму и получите бесплатно: