
Баня Берлин 1
Просторная баня из клееного бруса с гостиной
и кухней для уютных вечеров на природе.
Размеры
5х8Площадь помещений
20 м²Пятно застройки
40 м²Этажность
1Технология
Клееный брусСтиль
ФахверкСтоимость
от 3 346 000 руб.Размеры
5х8Площадь помещений
20 м²Пятно застройки
40 м²Этажность
1Технология
Клееный брусСтиль
ФахверкПо вашему запросу мы бесплатно доработаем планировку, чтобы вы получили максимальное удовольствие от загородного отдыха
Предложим планировку, в которой каждый квадратный метр будет использован с максимальной эффективностью
Увеличим или уменьшим площадь здания. Изменим расположение окон и дверей. Добавим санузел, ещё одну спальню для гостей, террасу и так далее
Изменить проектБерлин 1: Баня из клееного бруса – 5х8
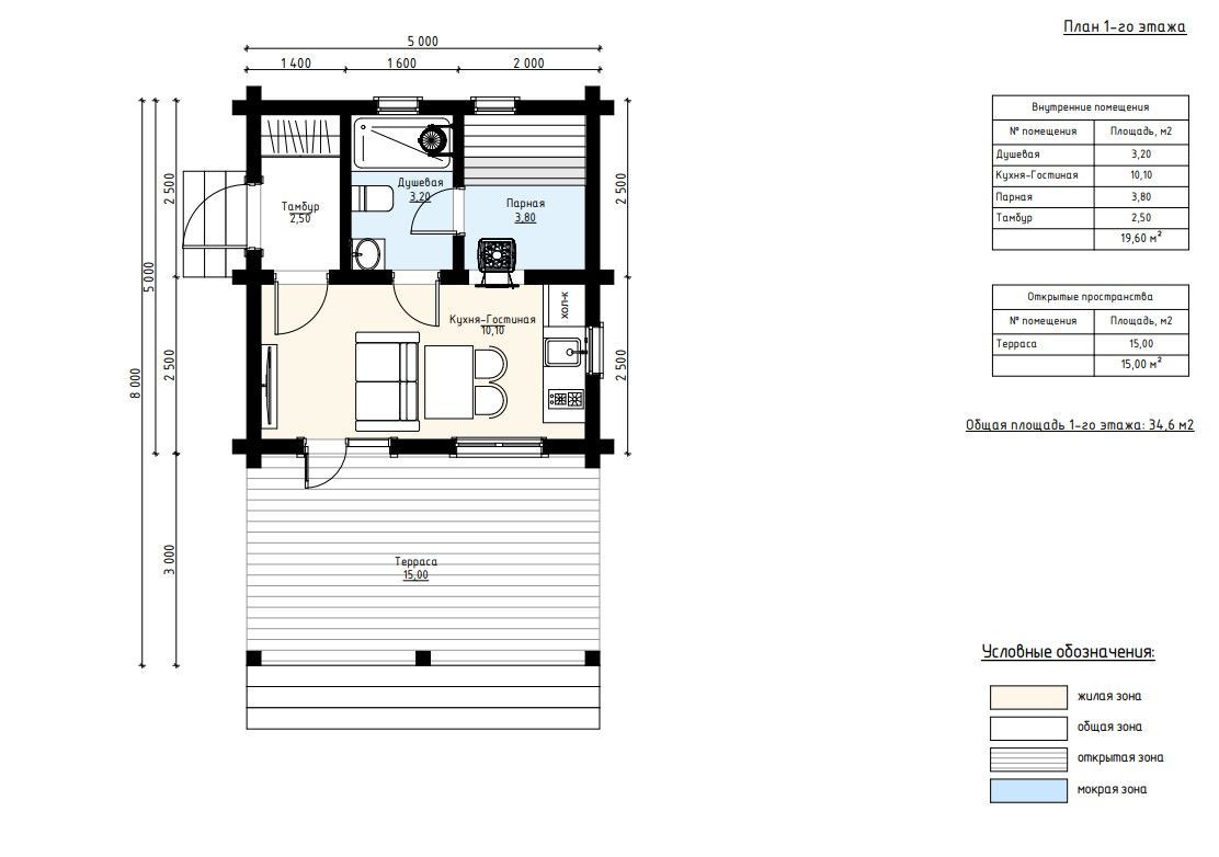
Баня из клееного бруса Берлин 1 (5х8) — это компактный и лаконичный проект, выполненный в современном стиле с элементами классической архитектуры.
Здание размером 5 на 8 метров выполнено из прочного клееного бруса, что обеспечивает не только высокую энергоэффективность, но и долговечность конструкции. Фасад оформлен в натуральных тёплых оттенках древесины, подчёркивая связь с природой.
Планировка проекта включает всё необходимое для комфортного отдыха. Внутри расположены кухня-гостиная площадью 10 м², душ (3,2 м²), парная (3,8 м²) и тамбур (2,5 м²). Пространство организовано максимально эффективно: здесь можно расслабиться после бани, перекусить и провести время с близкими. Снаружи оборудована просторная терраса 15 м², где можно установить мебель для отдыха, зону барбекю или даже джакузи.
Проект отлично подойдёт для дачи, глэмпинга, а также как дополнение к загородному участку. Он идеален для пары или небольшой семьи, которые ценят приватность, эстетику и функциональность. Баня «Берлин 1» — удачное решение для комфортного отдыха в любое время года.
| Описание | |
|---|---|
| 1. Фундамент |
|
| 2. Стеновой комплект |
|
| 3. Кровля |
|
| 4. Окна и двери |
|
| 5. Сопровождение строительства |
|
-
Заказать бесплатные изменения в проекте
или планировке
-
Получить фото и планировку этого проекта в WhatsApp или Telegram
Отправим
в течение
5 минут -
Получить расчет
стоимости в 3 вариантах комплектации
Остались вопросы?
Свяжитесь с нами или оставьте заявку — мы проконсультируем вас по всем вопросам.
Артем Ефремов
Эксперт по строительству
Похожие проекты
Другие- 5х8
- Размеры
- 20 м²
- Площадь помещений
Заполните форму и получите бесплатно: