
Баня Берлин 5
Идеальное решение для небольшой семьи
и приема гостей на свежем воздухе.
Размеры
6х9Площадь помещений
30 м²Пятно застройки
54 м²Этажность
1Технология
Клееный брусСтиль
ФахверкСтоимость
от 4 346 000 руб.Размеры
6х9Площадь помещений
30 м²Пятно застройки
54 м²Этажность
1Технология
Клееный брусСтиль
ФахверкПо вашему запросу мы бесплатно доработаем планировку, чтобы вы получили максимальное удовольствие от загородного отдыха
Предложим планировку, в которой каждый квадратный метр будет использован с максимальной эффективностью
Увеличим или уменьшим площадь здания. Изменим расположение окон и дверей. Добавим санузел, ещё одну спальню для гостей, террасу и так далее
Изменить проектБерлин 5: Баня из клееного бруса – 6х9
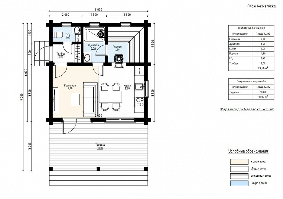
Баня 6х9 м «Берлин 5» общей площадью 48 м² — современный проект в минималистичном стиле.
Общая площадь составляет 48 м², из которых 30 м² — тёплая зона и 18 м² — просторная терраса для отдыха на свежем воздухе.
Внутреннее пространство включает в себя гостиную и кухню по 9 м² каждая — зона для уютных посиделок после парной. Также в планировке предусмотрены: душ (3 м²), парная (почти 5 м²), с/у (1,6 м²) и тамбур (2 м²), защищающий от прямого попадания холода. Все помещения грамотно спроектированы для удобства и комфорта пользователей.
Проект подойдёт тем, кто ищет небольшую, но функциональную баню с возможностью организации летней кухни или обеденной зоны на террасе. Отличный вариант для частного участка, дачи или гостевого сектора в эко-туризме.
| Описание | |
|---|---|
| 1. Фундамент |
|
| 2. Стеновой комплект |
|
| 3. Кровля |
|
| 4. Окна и двери |
|
| 5. Сопровождение строительства |
|
-
Заказать бесплатные изменения в проекте
или планировке
-
Получить фото и планировку этого проекта в WhatsApp или Telegram
Отправим
в течение
5 минут -
Получить расчет
стоимости в 3 вариантах комплектации
Остались вопросы?
Свяжитесь с нами или оставьте заявку — мы проконсультируем вас по всем вопросам.
Артем Ефремов
Эксперт по строительству
Похожие проекты
Другие- 6х9
- Размеры
- 30 м²
- Площадь помещений
Заполните форму и получите бесплатно: