
Баня Вольфсбург 3
Компактный и функциональный проект,
включает террасу для отдыха на свежем воздухе.
Размеры
5х9Площадь помещений
29 м²Пятно застройки
45 м²Этажность
1Технология
Клееный брусСтиль
СкандинавияСтоимость
от 4 094 000 руб.Размеры
5х9Площадь помещений
29 м²Пятно застройки
45 м²Этажность
1Технология
Клееный брусСтиль
СкандинавияПо вашему запросу мы бесплатно доработаем планировку, чтобы вы получили максимальное удовольствие от загородного отдыха
Предложим планировку, в которой каждый квадратный метр будет использован с максимальной эффективностью
Увеличим или уменьшим площадь здания. Изменим расположение окон и дверей. Добавим санузел, ещё одну спальню для гостей, террасу и так далее
Изменить проектВольфсбург 3: Баня из клееного бруса – 5х9
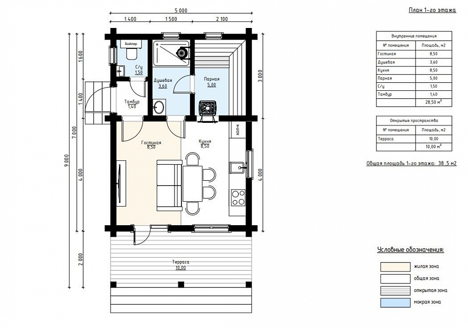
Баня из клееного бруса «Вольфсбург 3» (5х9) общей площадью 39 м² выполнена в современном стиле с акцентом на функциональность и комфорт.
Общая площадь строения составляет 39 м², что делает проект идеальным для небольших участков и сезонного использования.
Функциональная планировка включает уютную гостиную (9 м²), кухню-столовую (9 м²), душевую (4 м²), парную (5 м²) и тамбур (1 м²). Все помещения спроектированы так, чтобы обеспечить максимальный комфорт на ограниченной площади. Просторная терраса площадью 10 м² отлично подходит для отдыха на свежем воздухе или организации летней кухни.
Баня идеально подойдёт для небольшой семьи или компании друзей, которые ценят приватность и хотят создать уютную зону отдыха рядом с домом или в загородной резиденции. Применение клееного бруса гарантирует высокую теплоизоляцию, долговечность конструкции и экологичность материалов.
| Описание | |
|---|---|
| 1. Фундамент |
|
| 2. Стеновой комплект |
|
| 3. Кровля |
|
| 4. Окна и двери |
|
| 5. Сопровождение строительства |
|
-
Заказать бесплатные изменения в проекте
или планировке
-
Получить фото и планировку этого проекта в WhatsApp или Telegram
Отправим
в течение
5 минут -
Получить расчет
стоимости в 3 вариантах комплектации
Остались вопросы?
Свяжитесь с нами или оставьте заявку — мы проконсультируем вас по всем вопросам.
Артем Ефремов
Эксперт по строительству
Похожие проекты
Другие- 5х9
- Размеры
- 29 м²
- Площадь помещений
Заполните форму и получите бесплатно: