
Баня Магдебург 4
Функциональная планировка,
где каждая зона продумана до мелочей.
Размеры
5х8Площадь помещений
33 м²Пятно застройки
40 м²Этажность
1Технология
КаркаснаяСтиль
СкандинавияСтоимость
от 2 510 000 руб.Размеры
5х8Площадь помещений
33 м²Пятно застройки
40 м²Этажность
1Технология
КаркаснаяСтиль
СкандинавияПо вашему запросу мы бесплатно доработаем планировку, чтобы вы получили максимальное удовольствие от загородного отдыха
Предложим планировку, в которой каждый квадратный метр будет использован с максимальной эффективностью
Увеличим или уменьшим площадь здания. Изменим расположение окон и дверей. Добавим санузел, ещё одну спальню для гостей, террасу и так далее
Изменить проектМагдебург 4: Каркасная баня – 5х8
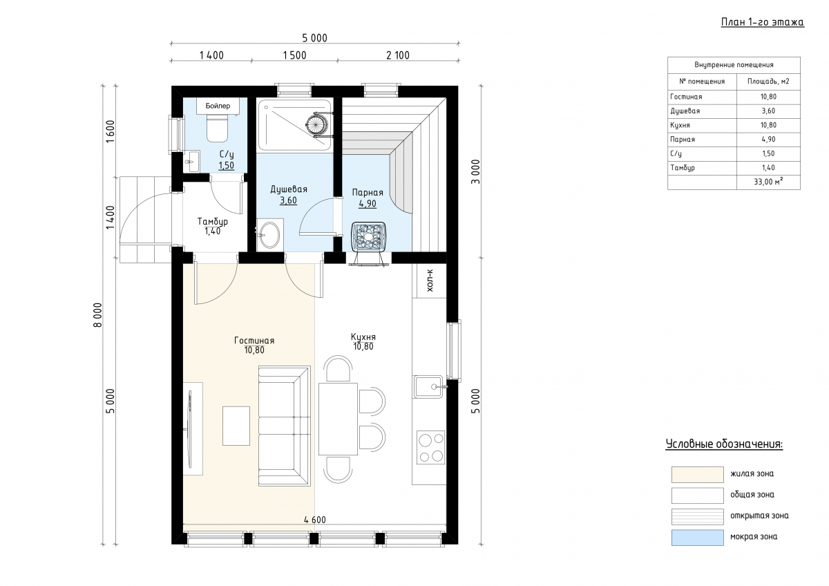
Финская баня из каркаса 5×8 м “Магдебург 4” сочетает в себе стильный дизайн, функциональность и комфорт для отдыха в любое время года.
Благодаря панорамному остеклению и просторной террасе, проект отлично вписывается в природный ландшафт, создавая ощущение уюта и единения с природой.
Внутреннее пространство включает гостиную (11 м²) и кухню (11 м²), что делает баню не только местом для парных процедур, но и уютной зоной для отдыха. Парная (5 м²) рассчитана на комфортное использование 2-4 человек, а душевая (4 м²) обеспечивает удобное охлаждение после процедур. Также предусмотрен санузел (2 м²) и тамбур (1 м²), которые повышают комфорт эксплуатации.
Широкая терраса (10 м²) позволяет оборудовать зону отдыха с шезлонгами или обеденной группой, а благодаря навесу она защищена от осадков. Дизайн проекта выполнен в современном стиле с элементами скандинавской архитектуры, что подчеркивает его актуальность и эстетичность.
| Описание | |
|---|---|
| 1. Фундамент |
|
| 2. Стеновой комплект |
|
| 3. Кровля |
|
| 4. Окна и двери |
|
| 5. Сопровождение строительства |
|
-
Заказать бесплатные изменения в проекте
или планировке
-
Получить фото и планировку этого проекта в WhatsApp или Telegram
Отправим
в течение
5 минут -
Получить расчет
стоимости в 3 вариантах комплектации
Остались вопросы?
Свяжитесь с нами или оставьте заявку — мы проконсультируем вас по всем вопросам.
Артем Ефремов
Эксперт по строительству
Похожие проекты
Другие- 5х8
- Размеры
- 33 м²
- Площадь помещений
Заполните форму и получите бесплатно: