
Баня Вольфсбург 2
Уютная баня с террасой и просторной гостиной,
идеальна для отдыха на даче или загородном участке.
Размеры
5х8Площадь помещений
24 м²Пятно застройки
40 м²Этажность
1Технология
Клееный брусСтиль
СкандинавияСтоимость
от 3 550 000 руб.Размеры
5х8Площадь помещений
24 м²Пятно застройки
40 м²Этажность
1Технология
Клееный брусСтиль
СкандинавияПо вашему запросу мы бесплатно доработаем планировку, чтобы вы получили максимальное удовольствие от загородного отдыха
Предложим планировку, в которой каждый квадратный метр будет использован с максимальной эффективностью
Увеличим или уменьшим площадь здания. Изменим расположение окон и дверей. Добавим санузел, ещё одну спальню для гостей, террасу и так далее
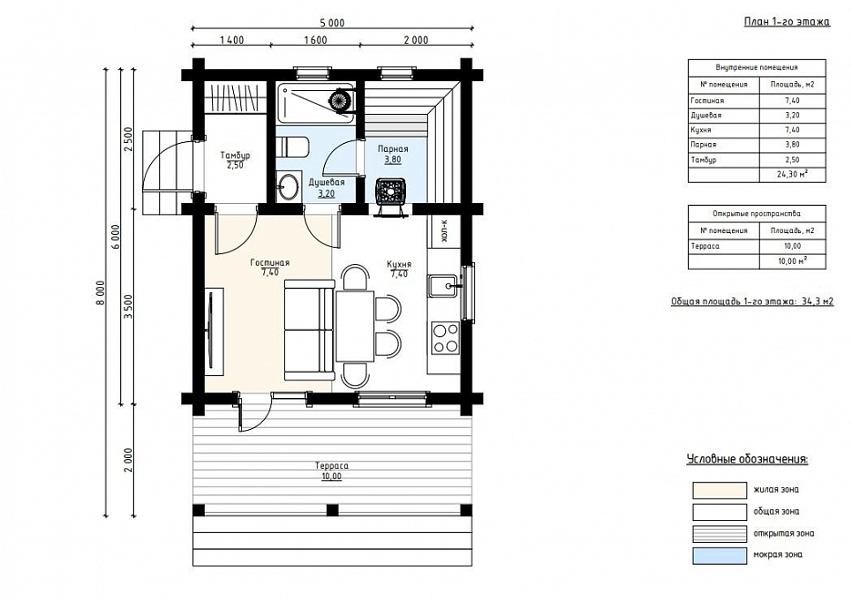
Изменить проектВольфсбург 2: Баня из клееного бруса – 5х8
Уютная баня из клееного бруса площадью 34 м², дополненная террасой 10 м², создана для отдыха в гармонии с природой.
Простота архитектуры сочетается с продуманной функциональностью. Проект построен из экологически чистого клееного бруса, который отличается прочностью, низкой усадкой и теплотехническими характеристиками. Дом имеет габариты 5 на 8 метров и площадь первого этажа — 34 м², дополнительно предусмотрена просторная терраса 10 м² под общей крышей.
Внутри предусмотрены все необходимые зоны: парная (почти 4 м²), душевая, кухня и гостиная, объединённые в одно светлое пространство, а также компактный тамбур. Планировка идеально подойдёт для дачного участка, загородного дома или в качестве первого этапа большого строительства. Баня рассчитана на небольшую компанию или семью, ценящую комфорт, практичность и уют на природе.
Проект Вольфсбург 2 — выбор тех, кто ищет современную, недорогую, но качественную баню в классическом исполнении.
| Описание | |
|---|---|
| 1. Фундамент |
|
| 2. Стеновой комплект |
|
| 3. Кровля |
|
| 4. Окна и двери |
|
| 5. Сопровождение строительства |
|
-
Заказать бесплатные изменения в проекте
или планировке
-
Получить фото и планировку этого проекта в WhatsApp или Telegram
Отправим
в течение
5 минут -
Получить расчет
стоимости в 3 вариантах комплектации
Остались вопросы?
Свяжитесь с нами или оставьте заявку — мы проконсультируем вас по всем вопросам.
Артем Ефремов
Эксперт по строительству
Похожие проекты
Другие- 5х8
- Размеры
- 24 м²
- Площадь помещений
Заполните форму и получите бесплатно: