

Эдинбург
Уютная баня с элементами скандинавского стиля
станет прекрасным дополнением к загородному участку.
Размеры
5х6Площадь помещений
19 м²Пятно застройки
30 м²Этажность
1Технология
КаркаснаяСтиль
скандинавияСтоимость
от 1 917 000 руб.Размеры
5х6Площадь помещений
19 м²Пятно застройки
30 м²Этажность
1Технология
КаркаснаяСтиль
скандинавияПо вашему запросу мы бесплатно доработаем планировку, чтобы вы получили максимальное удовольствие от загородного отдыха
Предложим планировку, в которой каждый квадратный метр будет использован с максимальной эффективностью
Увеличим или уменьшим площадь здания. Изменим расположение окон и дверей. Добавим санузел, ещё одну спальню для гостей, террасу и так далее
Изменить проектЭдинбург: Финская баня – 5х6
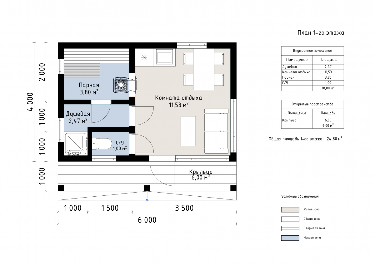
Финская баня размером 6х5 м «Эдинбург» общей площадью 25 м² выполнена по каркасной технологии.
Данный проект сочетает компактность и функциональность, идеально подходя для небольшого участка. Простая архитектура с элементами скандинавского стиля подчеркивает лаконичность и уют. Внутренние помещения площадью 19 м² включают просторную комнату отдыха 12 м², парную 4 м², душевую 2 м² и санузел 1 м². Открытая терраса размером 6 м² идеально подходит для расслабления на свежем воздухе. Компактная планировка обеспечивает максимальный комфорт при минимуме занимаемой площади. Проект «Эдинбург» прекрасно впишется в любой ландшафт и станет отличным выбором для любителей финской бани с традиционным подходом.
| Описание | |
|---|---|
| 1. Фундамент |
|
| 2. Стеновой комплект |
|
| 3. Кровля |
|
| 4. Окна и двери |
|
| 5. Сопровождение строительства |
|
-
Заказать бесплатные изменения в проекте
или планировке
-
Получить фото и планировку этого проекта в WhatsApp или Telegram
Отправим
в течение
5 минут -
Получить расчет
стоимости в 3 вариантах комплектации
Остались вопросы?
Свяжитесь с нами или оставьте заявку — мы проконсультируем вас по всем вопросам.
Артем Ефремов
Эксперт по строительству
Похожие проекты
Другие- 5х6
- Размеры
- 19 м²
- Площадь помещений
Заполните форму и получите бесплатно: