

Бремен
Уютная баня с террасой и стильным остеклением,
подчеркивающая современный фахверковый дизайн
Размеры
9х8Площадь помещений
30 м²Пятно застройки
72 м²Этажность
1Технология
КаркаснаяСтиль
ФахверкСтоимость
от 2 897 000 руб.Размеры
9х8Площадь помещений
30 м²Пятно застройки
72 м²Этажность
1Технология
КаркаснаяСтиль
ФахверкПо вашему запросу мы бесплатно доработаем планировку, чтобы вы получили максимальное удовольствие от загородного отдыха
Предложим планировку, в которой каждый квадратный метр будет использован с максимальной эффективностью
Увеличим или уменьшим площадь здания. Изменим расположение окон и дверей. Добавим санузел, ещё одну спальню для гостей, террасу и так далее
Изменить проектБремен: Фахверковая баня – 9х8
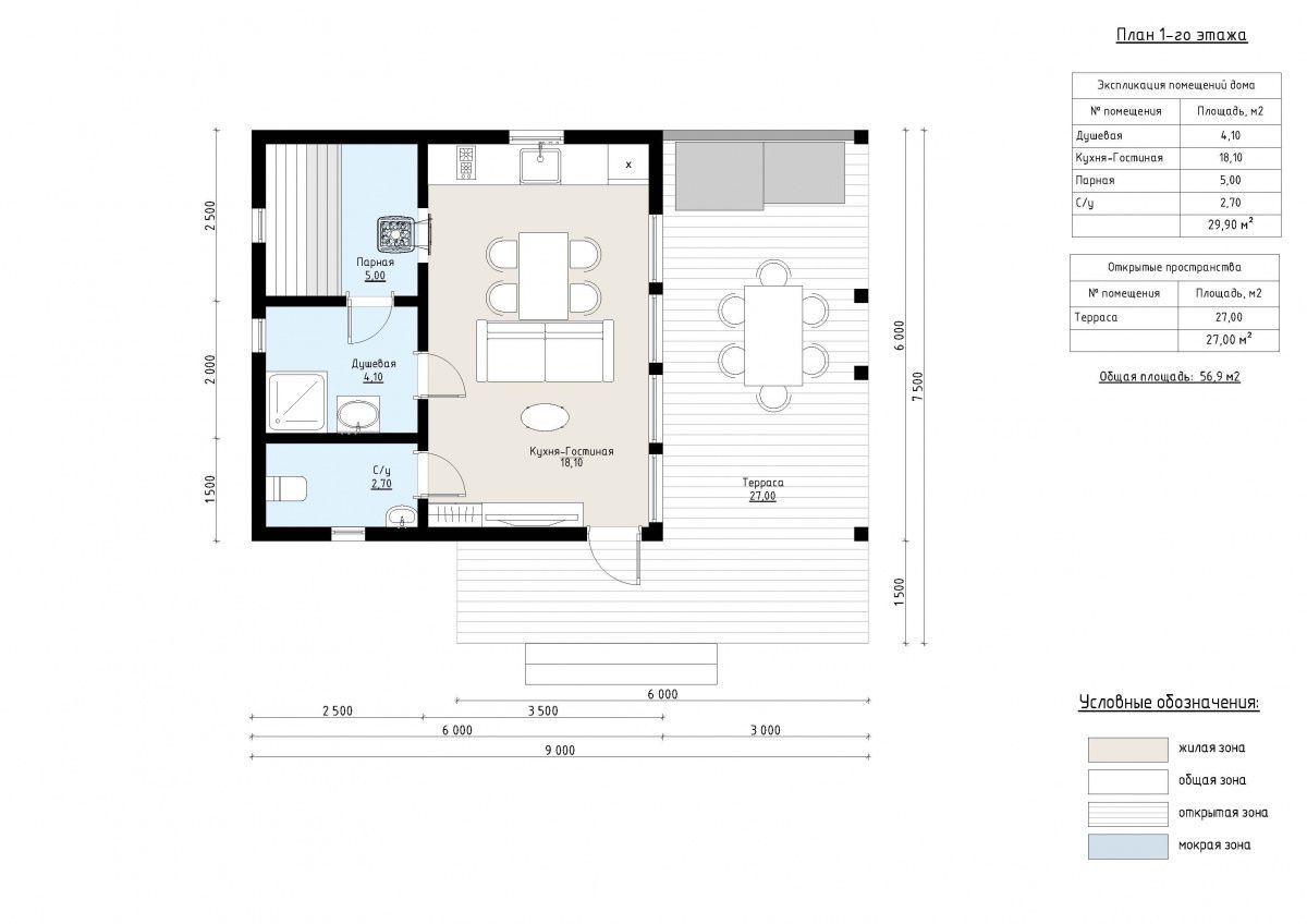
Фахверковая баня размером 9х8 м «Бремен» общей площадью 72 м² выполнена по каркасной технологии с элементами фахверка.
Этот стиль сочетает деревянный каркас с панорамным остеклением, обеспечивая максимум естественного света и создавая атмосферу открытости. Особенностью проекта является просторная терраса площадью 27 м², которая идеально подходит для размещения зоны барбекю или отдыха на свежем воздухе.
Внутренние помещения занимают 30 м² и включают кухню-гостиную 18 м², парную 5 м², душевую 4 м² и санузел. Панорамные окна подчеркивают современный дизайн и гармонично вписываются в окружающий ландшафт.
Проект «Бремен» идеально подходит для тех, кто ценит сочетание функциональности, эстетики и комфорта в современном исполнении.
- Бани под ключ
- Бани с барбекю и мангалом
- Бани с беседкой и бассейном
- Бани с бильярдом и бассейном
- Бани с большой верандой
- Бани с верандой в стиле Лофт
- Бани с верандой и барбекю под ключ
- Бани с джакузи и бильярдом
- Бани с мангалом и барбекю
- Бани с мини-бассейном
- Бани с панорамным остеклением в стиле Фахверк
- Бани с плоской крышей в стиле Лофт
- Бани с теплым бассейном
- Бани с террасой в стиле Лофт
- Бани хай тек с панорамными окнами
- Готовые бани с отделкой
- Готовые бани с панорамными окнами
- Готовые финские бани
- Дачные
- Деревянные
- Дизайнерские бани с верандой
- Дизайнерские бани с террасой
- Дизайнерские одноэтажные бани
- Дом бани в стиле Фахверк
- Дом бани в стиле Хай-тек
- Дом баня в финском стиле
- Дом баня для гостей
- Дом с баней для дачи
- Дом с баней и бильярдом
- дом-баня
- Каркасные бани
- Красивые бани с панорамными окнами
- Недорогие бани с барбекю
- Недорогие бани с душем
- Недорогие бани с мангалом
- Недорогие бани с печкой
- Одноэтажные бани в стиле Минимализм
- Одноэтажные бани в стиле Фахверк
- Одноэтажные бани для проживания зимой
- Одноэтажные бани с бильярдом
- Одноэтажные бани с зоной для мангала
- Одноэтажные бани с мангалом
- Оригинальные одноэтажные бани
- Проекты бань с панорамным окном в парной
- Скандинавские бани с комнатой отдыха
- Скандинавские дом бани
- Скандинавские одноэтажные бани
- Современные бани в стиле Лофт
- Современные бани в стиле Минимализм
- Современные бани с панорамными окнами
- Типовые проекты бань
- Треугольная баня с треугольной крышей
- Треугольные одноэтажные бани
- Треугольный дом с баней
- Угловые бани с террасой и бассейном
- Угловые бани с террасой и верандой
- Угловые бани с террасой под одной крышей
- Угловые маленькие бани
- Финские бани на дачу
- Финские бани с панорамными окнами
- Финские бани с печкой
| Описание | |
|---|---|
| 1. Фундамент |
|
| 2. Стеновой комплект |
|
| 3. Кровля |
|
| 4. Окна и двери |
|
| 5. Сопровождение строительства |
|
-
Заказать бесплатные изменения в проекте
или планировке
-
Получить фото и планировку этого проекта в WhatsApp или Telegram
Отправим
в течение
5 минут -
Получить расчет
стоимости в 3 вариантах комплектации
Остались вопросы?
Свяжитесь с нами или оставьте заявку — мы проконсультируем вас по всем вопросам.
Артем Ефремов
Эксперт по строительству
Похожие проекты
Другие- 9х8
- Размеры
- 30 м²
- Площадь помещений
Заполните форму и получите бесплатно: