

Лиссабон
Современный фахверковый стиль,
гармонично сочетающий дерево и стекло.
Размеры
16х11Площадь помещений
101 м²Пятно застройки
176 м²Этажность
1Технология
КаркаснаяСтиль
ФахверкСтоимость
от 6 992 000 руб.Размеры
16х11Площадь помещений
101 м²Пятно застройки
176 м²Этажность
1Технология
КаркаснаяСтиль
ФахверкПо вашему запросу мы бесплатно доработаем планировку, чтобы вы получили максимальное удовольствие от загородного отдыха
Предложим планировку, в которой каждый квадратный метр будет использован с максимальной эффективностью
Увеличим или уменьшим площадь здания. Изменим расположение окон и дверей. Добавим санузел, ещё одну спальню для гостей, террасу и так далее
Изменить проектЛиссабон: Фахверковая баня – 16х11
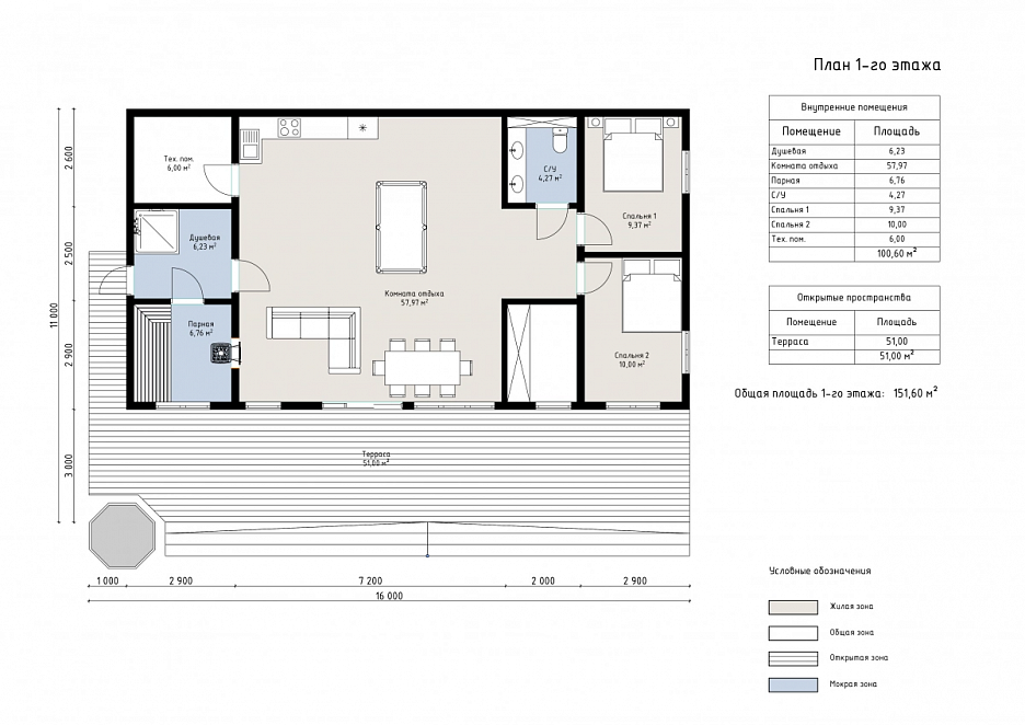
Каркасная фахверковая баня «Лиссабон» — это просторный комплекс с функциональным зонированием и панорамным остеклением, который идеально подойдет для отдыха всей семьей или в кругу друзей.
Основное помещение – просторная комната отдыха площадью 57,97 м², совмещающая зону гостиной и кухню-столовую, где предусмотрено место для большого обеденного стола и зоны отдыха. Парная площадью 6,76 м² позволит насладиться настоящим банным отдыхом, а душевая 6,23 м² обеспечит комфортные условия после посещения парной. В доме предусмотрено два спальных помещения – 9,37 м² и 10,00 м², что делает проект удобным для ночлега. Санузел 4,27 м² обеспечивает дополнительное удобство, а техническое помещение 6,00 м² служит местом для хранения инвентаря. Большая терраса площадью 51,00 м² окружает баню, создавая просторную площадку для отдыха на свежем воздухе. Это идеальное место для установки шезлонгов, лаунж-зоны или даже купели.
| Описание | |
|---|---|
| 1. Фундамент |
|
| 2. Стеновой комплект |
|
| 3. Кровля |
|
| 4. Окна и двери |
|
| 5. Сопровождение строительства |
|
-
Заказать бесплатные изменения в проекте
или планировке
-
Получить фото и планировку этого проекта в WhatsApp или Telegram
Отправим
в течение
5 минут -
Получить расчет
стоимости в 3 вариантах комплектации
Остались вопросы?
Свяжитесь с нами или оставьте заявку — мы проконсультируем вас по всем вопросам.
Артем Ефремов
Эксперт по строительству
Похожие проекты
Другие- 16х11
- Размеры
- 101 м²
- Площадь помещений
Заполните форму и получите бесплатно: