

Порту
Стильный фахверковый дизайн,
подчеркивающий минимализм и функциональность.
Размеры
7х4Площадь помещений
19 м²Пятно застройки
28 м²Этажность
1Технология
КаркаснаяСтиль
ФахверкСтоимость
от 2 102 000 руб.Размеры
7х4Площадь помещений
19 м²Пятно застройки
28 м²Этажность
1Технология
КаркаснаяСтиль
ФахверкПо вашему запросу мы бесплатно доработаем планировку, чтобы вы получили максимальное удовольствие от загородного отдыха
Предложим планировку, в которой каждый квадратный метр будет использован с максимальной эффективностью
Увеличим или уменьшим площадь здания. Изменим расположение окон и дверей. Добавим санузел, ещё одну спальню для гостей, террасу и так далее
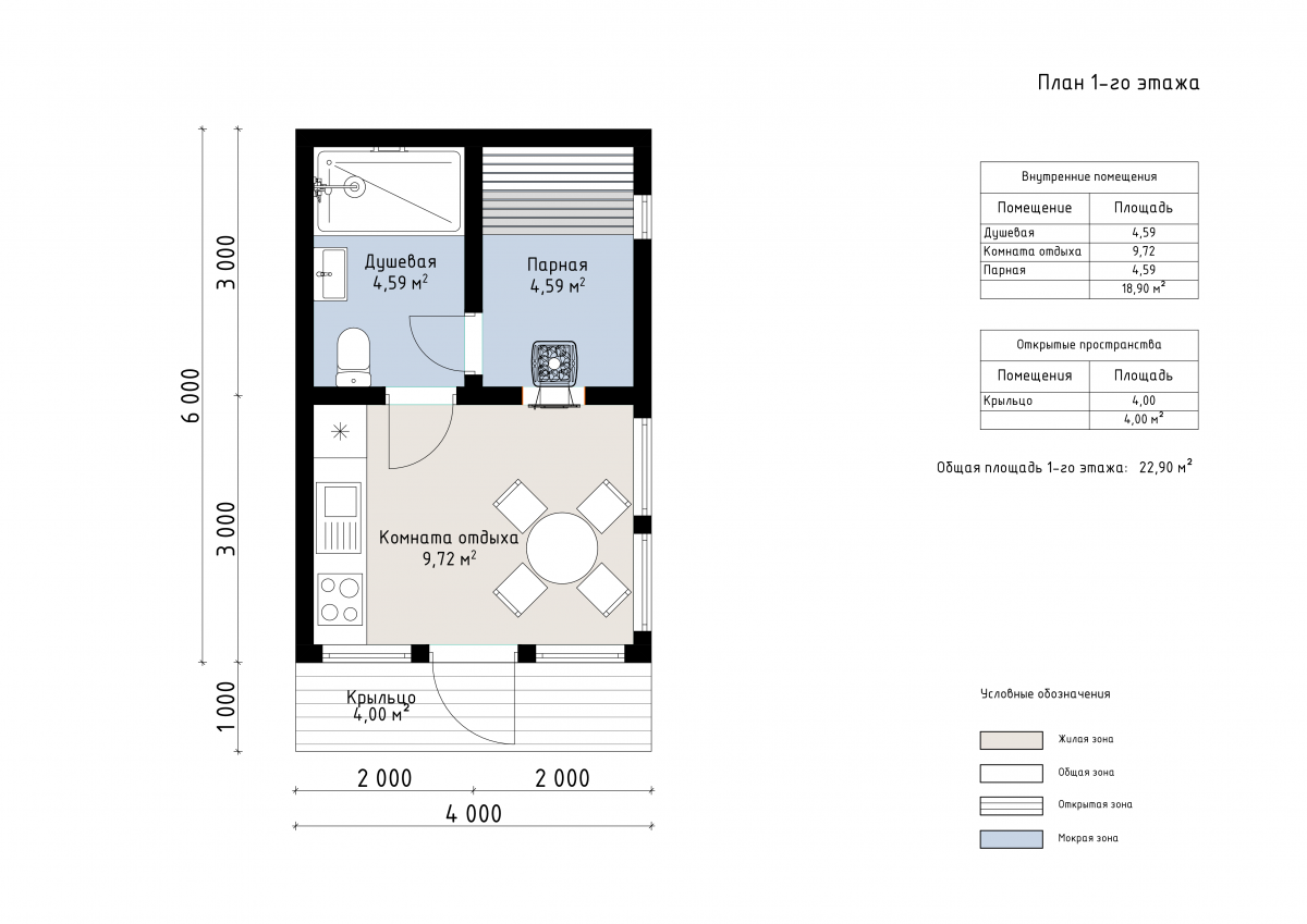
Изменить проектПорту: Фахверковая баня – 7х4
Компактная и стильная каркасная баня «Порту» сочетает в себе элегантность фахверкового стиля и функциональность.
Лаконичные формы, панорамное остекление и светлая отделка делают проект легким и современным. Это идеальное решение для тех, кто ценит уют и комфорт в небольшом формате.
Планировка предусматривает все необходимые помещения: просторную комнату отдыха (9,72 м²), душевую (4,59 м²) и парную (4,59 м²). Компактное крыльцо (4,00 м²) добавляет уюта и защищает вход от осадков. Несмотря на небольшие размеры, баня выглядит просторной благодаря грамотному зонированию и естественному освещению через панорамные окна.
- Бани под ключ
- Бани с комнатой отдыха в стиле Лофт
- Бани с панорамными окнами в стиле Хай-тек
- Готовые бани в стиле Модерн
- Готовые бани с отделкой
- Готовые бани с панорамными окнами
- Готовые финские бани
- Дачные
- Деревянные
- Дизайнерские бани в стиле Хай-тек
- Дизайнерские одноэтажные бани
- Каркасные бани
- Классические одноэтажные бани
- Красивые бани с панорамными окнами
- Мини бани в стиле Лофт
- Недорогие бани с душем
- Недорогие бани с печкой
- Одноэтажные бани в стиле Лофт
- Одноэтажные бани в стиле Минимализм
- Одноэтажные бани в стиле Модерн
- Одноэтажные бани в стиле Хай-тек
- Оригинальные одноэтажные бани
- Скандинавские бани с комнатой отдыха
- Скандинавские одноэтажные бани
- Современные бани в стиле Минимализм
- Современные бани в стиле Модерн
- Современные бани с панорамными окнами
- Типовые проекты бань
- Финские бани на дачу
- Финские бани с панорамными окнами
- Финские бани с печкой
| Описание | |
|---|---|
| 1. Фундамент |
|
| 2. Стеновой комплект |
|
| 3. Кровля |
|
| 4. Окна и двери |
|
| 5. Сопровождение строительства |
|
-
Заказать бесплатные изменения в проекте
или планировке
-
Получить фото и планировку этого проекта в WhatsApp или Telegram
Отправим
в течение
5 минут -
Получить расчет
стоимости в 3 вариантах комплектации
Остались вопросы?
Свяжитесь с нами или оставьте заявку — мы проконсультируем вас по всем вопросам.
Артем Ефремов
Эксперт по строительству
Похожие проекты
Другие- 7х4
- Размеры
- 19 м²
- Площадь помещений
Заполните форму и получите бесплатно: