

Альц Small
Рациональное использование пространства,
создает максимум комфорта при минимуме площади.
Размеры
4х6Площадь помещений
16 м²Пятно застройки
24 м²Этажность
1Технология
КаркаснаяСтиль
КлассикаСтоимость
от 1 334 000 руб.Размеры
4х6Площадь помещений
16 м²Пятно застройки
24 м²Этажность
1Технология
КаркаснаяСтиль
КлассикаПо вашему запросу мы бесплатно доработаем планировку, чтобы вы получили максимальное удовольствие от загородного отдыха
Предложим планировку, в которой каждый квадратный метр будет использован с максимальной эффективностью
Увеличим или уменьшим площадь здания. Изменим расположение окон и дверей. Добавим санузел, ещё одну спальню для гостей, террасу и так далее
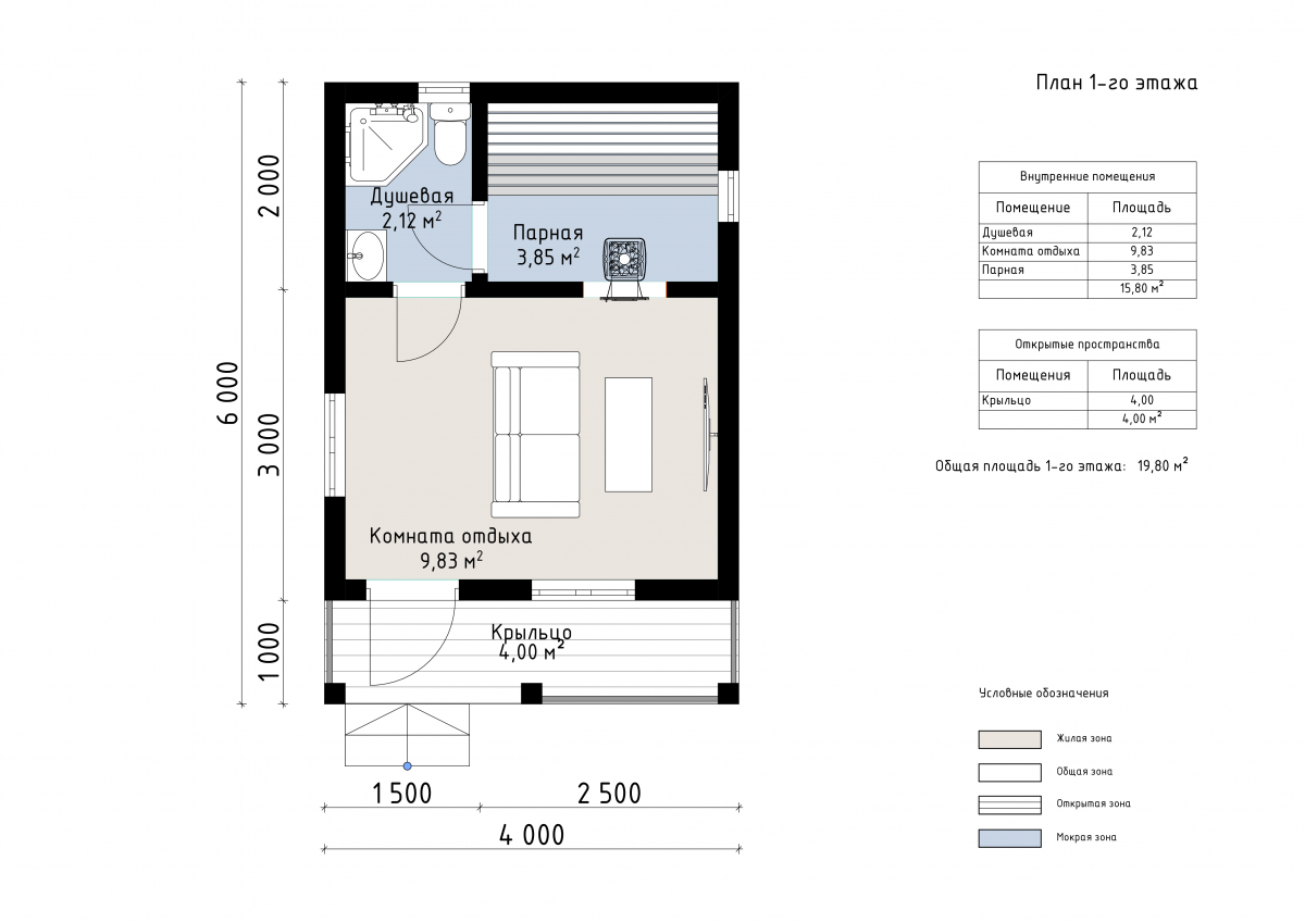
Изменить проектАльц Small: Финская баня – 4х6
Компактная и стильная финская баня площадью 19,8 м² — идеальный вариант для небольшой компании или семейного отдыха.
Внутри расположена уютная комната отдыха 9,83 м², просторная парная 3,85 м² и душевая 2,12 м², обеспечивающие комфортные банные процедуры. Крыльцо 4 м² создает дополнительное пространство для отдыха на свежем воздухе. Большие панорамные окна наполняют баню естественным светом, а лаконичный скандинавский стиль делает ее гармоничным дополнением к любому участку.
| Описание | |
|---|---|
| 1. Фундамент |
|
| 2. Стеновой комплект |
|
| 3. Кровля |
|
| 4. Окна и двери |
|
| 5. Сопровождение строительства |
|
-
Заказать бесплатные изменения в проекте
или планировке
-
Получить фото и планировку этого проекта в WhatsApp или Telegram
Отправим
в течение
5 минут -
Получить расчет
стоимости в 3 вариантах комплектации
Остались вопросы?
Свяжитесь с нами или оставьте заявку — мы проконсультируем вас по всем вопросам.
Артем Ефремов
Эксперт по строительству
Похожие проекты
Другие- 4х6
- Размеры
- 16 м²
- Площадь помещений
Заполните форму и получите бесплатно: