

Больцано
Уютная баня для небольшого участка,
идеально подходящая для семейного релакса.
Размеры
4х6Площадь помещений
19 м²Пятно застройки
36 м²Этажность
1Технология
Клееный брусСтиль
минииализмСтоимость
от 3 078 000 руб.Размеры
4х6Площадь помещений
19 м²Пятно застройки
36 м²Этажность
1Технология
Клееный брусСтиль
минииализмПо вашему запросу мы бесплатно доработаем планировку, чтобы вы получили максимальное удовольствие от загородного отдыха
Предложим планировку, в которой каждый квадратный метр будет использован с максимальной эффективностью
Увеличим или уменьшим площадь здания. Изменим расположение окон и дверей. Добавим санузел, ещё одну спальню для гостей, террасу и так далее
Изменить проектБольцано: Финская баня из клееного бруса – 4х6
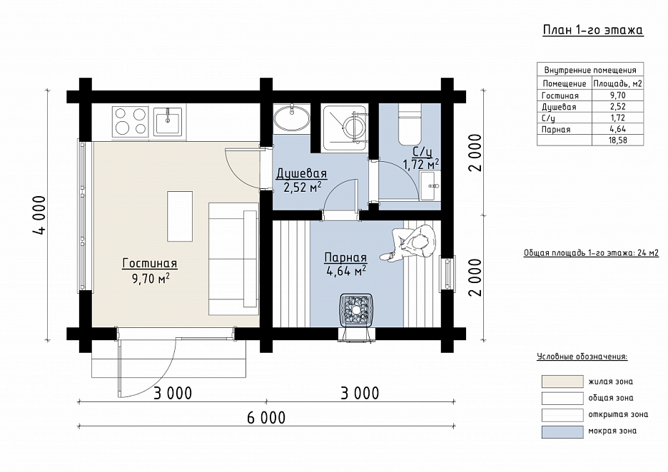
Финская баня из клееного бруса размером 4х6 м «Больцано» общей площадью 24 м² выполнена в современном минималистичном стиле.
Простые формы, панорамное остекление и акцент на природные материалы делают проект эстетически привлекательным и уютным.
Внутренние помещения занимают 19 м² и включают гостиную площадью 10 м², парную 5 м², душевую 3 м² и санузел. Просторная терраса площадью 8 м² дополняет баню, создавая зону для отдыха на свежем воздухе или вечерних встреч с семьей.
Проект «Больцано» идеально подойдет для небольшой семьи или тех, кто ищет компактное, но функциональное решение для своего участка. Стильный и практичный дизайн бани будет гармонично смотреться на любом участке, обеспечивая комфортное пространство для отдыха и восстановления.
| Описание | |
|---|---|
| 1. Фундамент |
|
| 2. Стеновой комплект |
|
| 3. Кровля |
|
| 4. Окна и двери |
|
| 5. Сопровождение строительства |
|
-
Заказать бесплатные изменения в проекте
или планировке
-
Получить фото и планировку этого проекта в WhatsApp или Telegram
Отправим
в течение
5 минут -
Получить расчет
стоимости в 3 вариантах комплектации
Остались вопросы?
Свяжитесь с нами или оставьте заявку — мы проконсультируем вас по всем вопросам.
Артем Ефремов
Эксперт по строительству
Похожие проекты
Другие- 4х6
- Размеры
- 19 м²
- Площадь помещений
Заполните форму и получите бесплатно: