

Лондон
Просторная баня с закрытой террасой,
идеальна для отдыха в любое время года.
Размеры
16х10Площадь помещений
59 м²Пятно застройки
160 м²Этажность
1Технология
БревноСтиль
ШалеСтоимость
от 5 510 000 руб.Размеры
16х10Площадь помещений
59 м²Пятно застройки
160 м²Этажность
1Технология
БревноСтиль
ШалеПо вашему запросу мы бесплатно доработаем планировку, чтобы вы получили максимальное удовольствие от загородного отдыха
Предложим планировку, в которой каждый квадратный метр будет использован с максимальной эффективностью
Увеличим или уменьшим площадь здания. Изменим расположение окон и дверей. Добавим санузел, ещё одну спальню для гостей, террасу и так далее
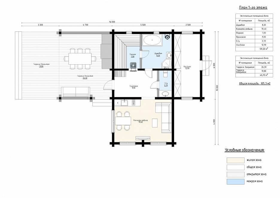
Изменить проектЛондон: Финская баня из бревна – 16х10
Финская баня из оцилиндрованного бревна 16×7 м “Лондон” – идеальное сочетание уюта, функциональности и брутального стиля.
Просторная терраса (26 м²) с зоной отдыха и обеденным столом располагает к приятному времяпрепровождению на свежем воздухе. Внутреннее пространство включает комнату отдыха (19 м²) с кухонной зоной, парную (7 м²) с каменкой, душевую (8 м²) и санузел (3 м²). Практичный хозяйственный блок (13 м²) позволяет удобно хранить дрова и инвентарь. Закрытая часть террасы (19 м²) с печью-барбекю дополняет функциональность проекта, создавая уютный уголок для отдыха в любое время года.
| Описание | |
|---|---|
| 1. Фундамент |
|
| 2. Стеновой комплект |
|
| 3. Кровля |
|
| 4. Окна и двери |
|
| 5. Сопровождение строительства |
|
-
Заказать бесплатные изменения в проекте
или планировке
-
Получить фото и планировку этого проекта в WhatsApp или Telegram
Отправим
в течение
5 минут -
Получить расчет
стоимости в 3 вариантах комплектации
Остались вопросы?
Свяжитесь с нами или оставьте заявку — мы проконсультируем вас по всем вопросам.
Артем Ефремов
Эксперт по строительству
Похожие проекты
Другие- 16х10
- Размеры
- 59 м²
- Площадь помещений
Заполните форму и получите бесплатно: