

Хельсинки
Стильная баня с террасой и просторной комнатой отдыха,
подходящая для встреч с друзьями или семейных релаксов
Размеры
5х8Площадь помещений
27 м²Пятно застройки
40 м²Этажность
1Технология
КаркаснаяСтиль
СкандинавскийСтоимость
от 2 495 000 руб.Размеры
5х8Площадь помещений
27 м²Пятно застройки
40 м²Этажность
1Технология
КаркаснаяСтиль
СкандинавскийПо вашему запросу мы бесплатно доработаем планировку, чтобы вы получили максимальное удовольствие от загородного отдыха
Предложим планировку, в которой каждый квадратный метр будет использован с максимальной эффективностью
Увеличим или уменьшим площадь здания. Изменим расположение окон и дверей. Добавим санузел, ещё одну спальню для гостей, террасу и так далее
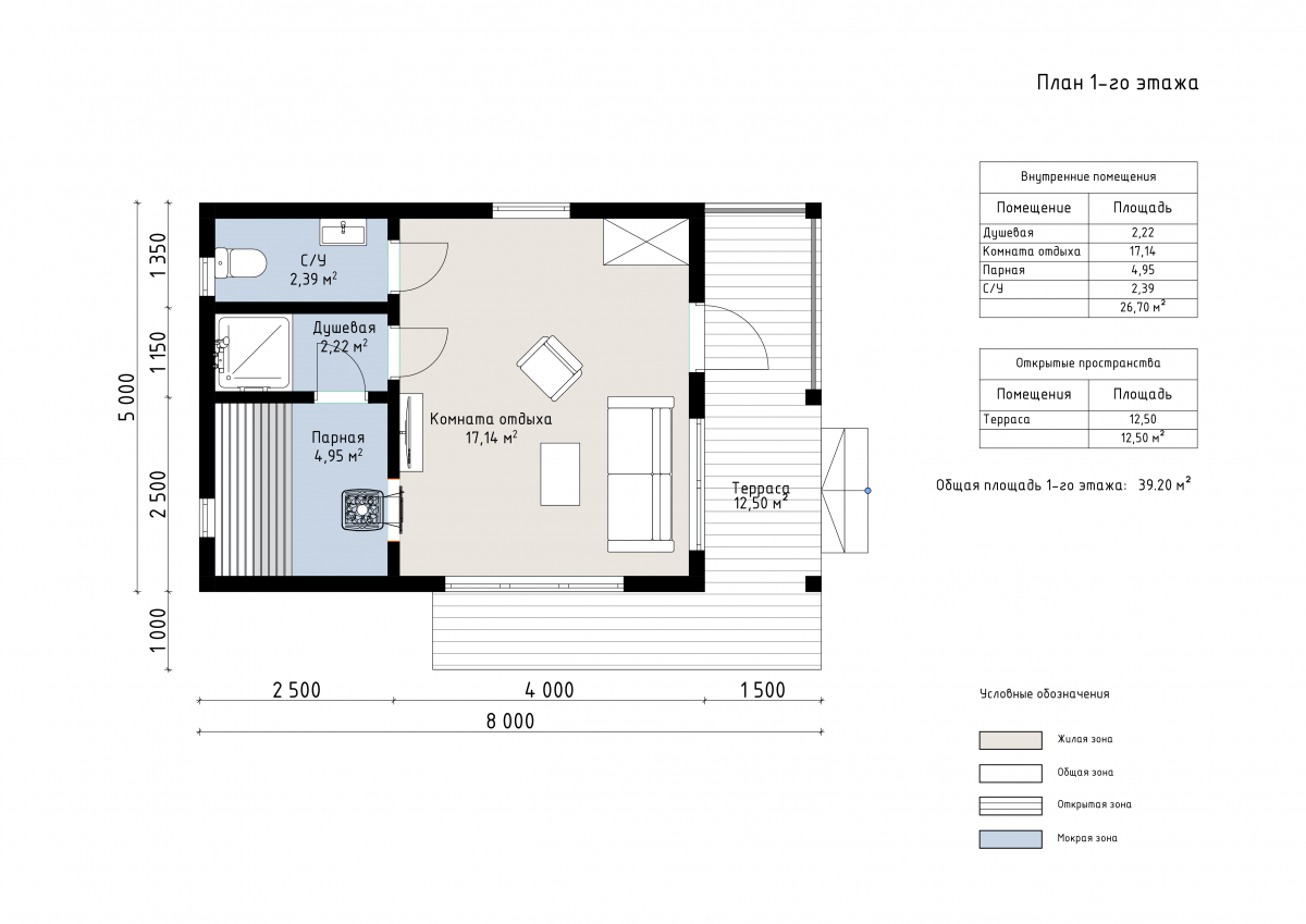
Изменить проектХельсинки: Финская баня – 5х8
Финская баня размером 5х8 м «Хельсинки» общей площадью 39,2 м² выполнена в современном скандинавском стиле, который подчеркивает минимализм, функциональность и гармонию с природой.
Просторная терраса создает дополнительное место для отдыха на свежем воздухе, а продуманная планировка делает баню уютной и удобной.
Внутренние помещения занимают 26,7 м², включая комнату отдыха площадью 17,1 м², парную 4,95 м², душевую 2,22 м² и санузел 2,39 м². Открытая терраса площадью 12,5 м² станет прекрасным местом для общения и расслабления после процедур.
Проект «Хельсинки» идеально подойдет для владельцев небольших участков, семейного отдыха или встреч с друзьями, предлагая комфортное и стильное пространство с продуманным функциональным зонированием.
| Описание | |
|---|---|
| 1. Фундамент |
|
| 2. Стеновой комплект |
|
| 3. Кровля |
|
| 4. Окна и двери |
|
| 5. Сопровождение строительства |
|
-
Заказать бесплатные изменения в проекте
или планировке
-
Получить фото и планировку этого проекта в WhatsApp или Telegram
Отправим
в течение
5 минут -
Получить расчет
стоимости в 3 вариантах комплектации
Остались вопросы?
Свяжитесь с нами или оставьте заявку — мы проконсультируем вас по всем вопросам.
Артем Ефремов
Эксперт по строительству
Похожие проекты
Другие- 5х8
- Размеры
- 27 м²
- Площадь помещений
Заполните форму и получите бесплатно: