

Лейпциг
Баня с просторной гостиной и террасой,
идеальна для уютного отдыха в современном стиле.
Размеры
8х12Площадь помещений
65 м²Пятно застройки
96 м²Этажность
2Технология
КаркаснаяСтиль
ФахверкСтоимость
от 4 981 000 руб.Размеры
8х12Площадь помещений
65 м²Пятно застройки
96 м²Этажность
2Технология
КаркаснаяСтиль
ФахверкПо вашему запросу мы бесплатно доработаем планировку, чтобы вы получили максимальное удовольствие от загородного отдыха
Предложим планировку, в которой каждый квадратный метр будет использован с максимальной эффективностью
Увеличим или уменьшим площадь здания. Изменим расположение окон и дверей. Добавим санузел, ещё одну спальню для гостей, террасу и так далее
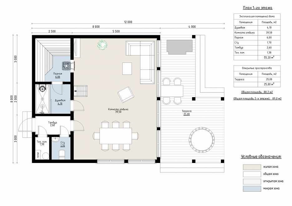
Изменить проектЛейпциг: Каркасная баня – 8х12
Каркасная баня размером 8х12 м «Лейпциг» общей площадью 89 м² выполнена в современном стиле с использованием панорамных окон, что создает светлый и уютный интерьер.
Этот проект привлекает внимание открытой террасой площадью 25 м², которая идеально подходит для отдыха на свежем воздухе.
Внутренние помещения занимают 55 м² и включают просторную комнату отдыха площадью 40 м², парную 6 м², душевую 4 м², санузел и тамбур. Планировка грамотно сочетает функциональность и комфорт, что делает баню подходящей как для частного использования, так и для приема гостей.
Проект «Лейпциг» станет отличным выбором для тех, кто ценит стильный дизайн, современную архитектуру и просторные помещения для комфортного отдыха.
- 8 на 12
- Бани под ключ
- Бани с большой верандой
- Бани с верандой и барбекю под ключ
- Дачные
- Деревянные
- Деревянные двухэтажные бани
- Дом бани в стиле Фахверк
- Дом баня в финском стиле
- Дом баня для гостей
- Дом с баней
- Дом с баней для дачи
- дом-баня
- Каркасные бани
- Каркасные двухэтажные бани
- Недорогие
- Проекты бань с панорамным окном в парной
- Типовые проекты бань
| Описание | |
|---|---|
| 1. Фундамент |
|
| 2. Стеновой комплект |
|
| 3. Кровля |
|
| 4. Окна и двери |
|
| 5. Сопровождение строительства |
|
-
Заказать бесплатные изменения в проекте
или планировке
-
Получить фото и планировку этого проекта в WhatsApp или Telegram
Отправим
в течение
5 минут -
Получить расчет
стоимости в 3 вариантах комплектации
Остались вопросы?
Свяжитесь с нами или оставьте заявку — мы проконсультируем вас по всем вопросам.
Артем Ефремов
Эксперт по строительству
Похожие проекты
Другие- 8х12
- Размеры
- 65 м²
- Площадь помещений
Заполните форму и получите бесплатно: