
CUBE 6
Элегантная баня с лаконичным дизайном
и уютной атмосферой
Размеры
6х6Площадь помещений
29 м²Пятно застройки
36 м²Этажность
1Технология
КаркаснаяСтиль
МинимализмСтоимость
от 2 153 000 руб.Размеры
6х6Площадь помещений
29 м²Пятно застройки
36 м²Этажность
1Технология
КаркаснаяСтиль
МинимализмПо вашему запросу мы бесплатно доработаем планировку, чтобы вы получили максимальное удовольствие от загородного отдыха
Предложим планировку, в которой каждый квадратный метр будет использован с максимальной эффективностью
Увеличим или уменьшим площадь здания. Изменим расположение окон и дверей. Добавим санузел, ещё одну спальню для гостей, террасу и так далее
Изменить проектCUBE 6: Каркасная баня – 6х6
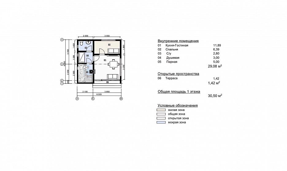
Проект Cube 9 (6х6) — это компактная баня в стиле минимализм, выполненная в лаконичной архитектуре куба.
Наружная отделка выполнена из вертикального деревянного планкена, что придаёт строению современный и природный облик. Размер постройки — 5×5 метров, общая площадь составляет около 21 м². Функционально баня включает в себя всё необходимое: просторную кухню-гостиную (9,6 м²), санузел (2,8 м²), душевую (3,3 м²) и полноценную парную (5 м²). Благодаря чёткому зонированию мокрых и общих зон, интерьер остаётся эргономичным и удобным для отдыха. Cube 9 отлично подойдёт для установки на дачном участке или в качестве первого шага к загородному отдыху. Это решение оценят любители сдержанного дизайна, комфортных банных процедур и компактных пространств.
- Бани под ключ
- Бани с большой террасой под ключ
- Бани с открытой верандой
- Бани с панорамными окнами в стиле Хай-тек
- Бани с террасой под одной крышей
- Бани хай тек с панорамными окнами
- Готовые бани в стиле Модерн
- Дачные
- Двухэтажные дом бани с панорамными окнами
- Дизайнерские бани в стиле Хай-тек
- Дизайнерские одноэтажные бани
- Дом бани в стиле Хай-тек
- Дом с баней для дачи
- дом-баня
- Жилые бани в стиле Хай-тек
- Каркасные бани
- Красивые бани с панорамными окнами
- Недорогие бани с барбекю
- Недорогие бани с гаражом
- Недорогие бани с душем
- Недорогие бани с мангалом
- Недорогие бани с печкой
- Недорогие двухэтажные бани
- Одноэтажные бани в стиле Модерн
- Одноэтажные бани в стиле Хай-тек
- Одноэтажные бани для проживания зимой
- Одноэтажные бани с мангалом
- Оригинальные одноэтажные бани
- Современные бани в стиле Минимализм
- Современные бани в стиле Модерн
- Современные бани с панорамными окнами
- Типовые проекты бань
| Описание | |
|---|---|
| 1. Фундамент |
|
| 2. Стеновой комплект |
|
| 3. Кровля |
|
| 4. Окна и двери |
|
| 5. Сопровождение строительства |
|
-
Заказать бесплатные изменения в проекте
или планировке
-
Получить фото и планировку этого проекта в WhatsApp или Telegram
Отправим
в течение
5 минут -
Получить расчет
стоимости в 3 вариантах комплектации
Остались вопросы?
Свяжитесь с нами или оставьте заявку — мы проконсультируем вас по всем вопросам.
Артем Ефремов
Эксперт по строительству
Похожие проекты
Другие- 6х6
- Размеры
- 29 м²
- Площадь помещений
Заполните форму и получите бесплатно: