

Осака
Баня для ценителей современного стиля
и качественного отдыха.
Размеры
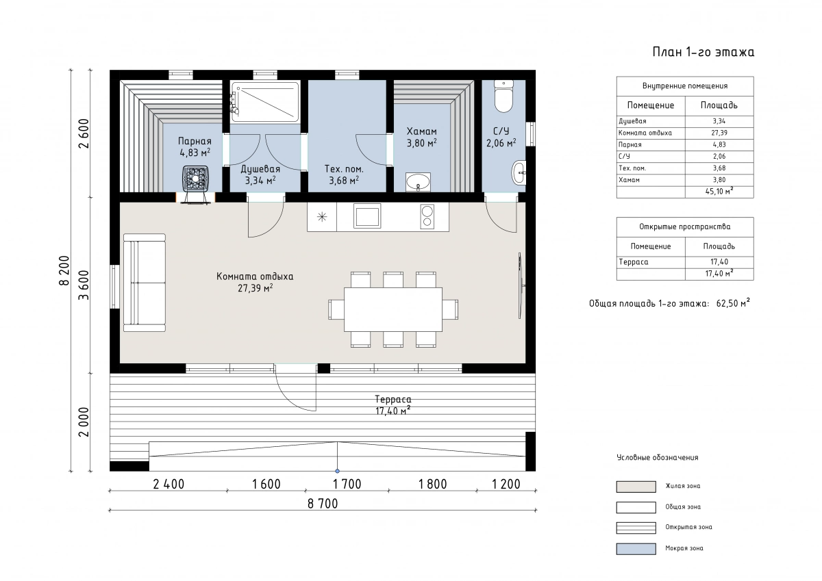
8х9Площадь помещений
45 м²Пятно застройки
72 м²Этажность
1Технология
КаркаснаяСтиль
Хай-текСтоимость
от 3 729 000 руб.Размеры
8х9Площадь помещений
45 м²Пятно застройки
72 м²Этажность
1Технология
КаркаснаяСтиль
Хай-текПо вашему запросу мы бесплатно доработаем планировку, чтобы вы получили максимальное удовольствие от загородного отдыха
Предложим планировку, в которой каждый квадратный метр будет использован с максимальной эффективностью
Увеличим или уменьшим площадь здания. Изменим расположение окон и дверей. Добавим санузел, ещё одну спальню для гостей, террасу и так далее
Изменить проектОсака: Каркасная баня в стиле хайтек – 8х9
Хай-тек баня 9×8 м «Осака» общей площадью 63 м² выполнена по каркасной технологии, что гарантирует прочность, энергоэффективность и быстроту строительства.
Современный стиль подчеркнут лаконичным дизайном и панорамными окнами, наполняющими помещения светом. Просторная гостиная площадью 27 м² станет отличным местом для отдыха и встреч с близкими. Внутренние помещения занимают 45 м²: гостиная, хамам, парная, душевая, техпомещение и санузел. Просторная терраса площадью 18 м² идеально подойдет для отдыха на свежем воздухе и уютных вечеров. «Осака» — выбор для тех, кто ценит стиль, комфорт и функциональность.
| Описание | |
|---|---|
| 1. Фундамент |
|
| 2. Стеновой комплект |
|
| 3. Кровля |
|
| 4. Окна и двери |
|
| 5. Сопровождение строительства |
|
-
Заказать бесплатные изменения в проекте
или планировке
-
Получить фото и планировку этого проекта в WhatsApp или Telegram
Отправим
в течение
5 минут -
Получить расчет
стоимости в 3 вариантах комплектации
Остались вопросы?
Свяжитесь с нами или оставьте заявку — мы проконсультируем вас по всем вопросам.
Артем Ефремов
Эксперт по строительству
Похожие проекты
Другие- 8х9
- Размеры
- 45 м²
- Площадь помещений
Заполните форму и получите бесплатно: