

Ситжес
Баня в стиле хай-тек с террасой и зоной
бассейна для современного загородного отдыха
Размеры
10x9Площадь помещений
58 м²Пятно застройки
90 м²Этажность
1Технология
КаменьСтиль
Хай-текСтоимость
По запросуРазмеры
10x9Площадь помещений
58 м²Пятно застройки
90 м²Этажность
1Технология
КаменьСтиль
Хай-текПо вашему запросу мы бесплатно доработаем планировку, чтобы вы получили максимальное удовольствие от загородного отдыха
Предложим планировку, в которой каждый квадратный метр будет использован с максимальной эффективностью
Увеличим или уменьшим площадь здания. Изменим расположение окон и дверей. Добавим санузел, ещё одну спальню для гостей, террасу и так далее
Изменить проектСитжес: Хай-тек баня – 10x9
Баня "Ситжес" в стиле хай-тек, в котором лаконичные линии фасада и панорамные окна создают светлый и открытый интерьер, обеспечивая гармоничное единение с природой.
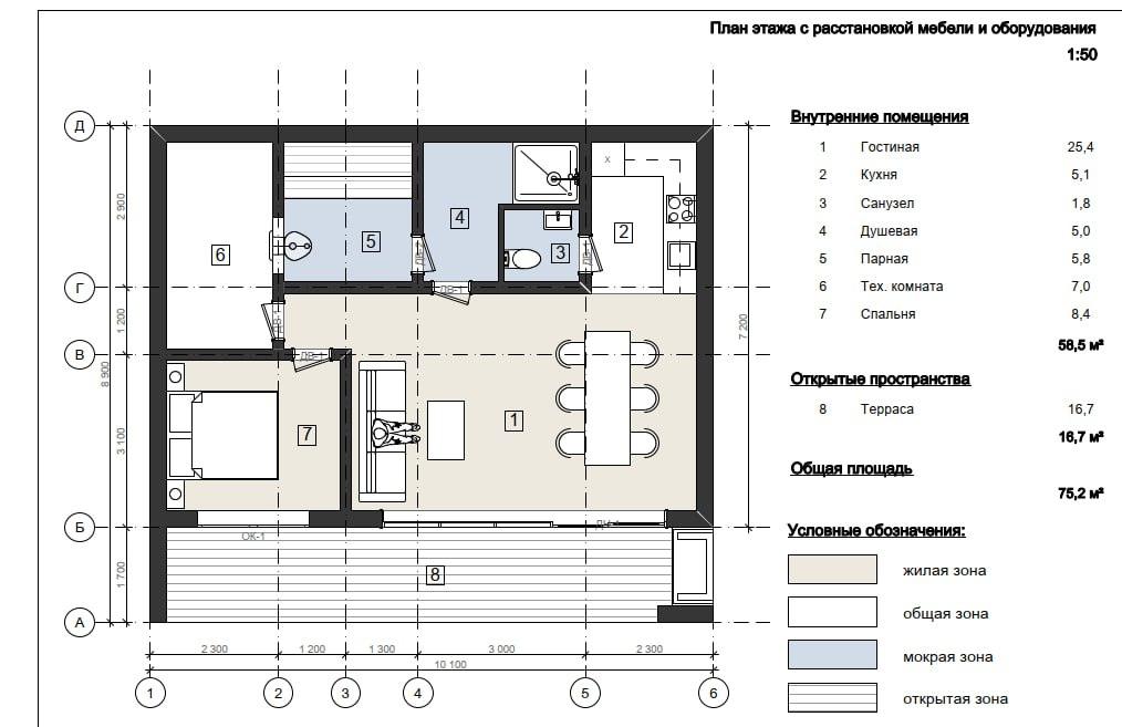
Проект включает открытую террасу, идеально подходящую для отдыха на свежем воздухе, и зону бассейна, добавляющую проекту функциональности и комфорта. Внутренние помещения занимают 58 м² и включают просторную гостиную 25 м², кухню 5 м², спальню 8 м², сауну 6 м², душевую 5 м², санузел 2 м² и техническое помещение 7 м². Также к бане пристроена просторная терраса площадью почти 17 м². Планировка тщательно продумана для создания удобного пространства, способного удовлетворить потребности любого пользователя. Проект выполнен из кирпича, что обеспечивает долговечность и надежность конструкции, а также превосходные теплоизоляционные свойства. «Ситжес» подойдет как для семейного отдыха, так и для комфортных встреч с друзьями. Современные строительные технологии в сочетании с функциональным дизайном делают баню универсальным решением для загородного участка.
| Описание | |
|---|---|
| 1. Фундамент |
|
| 2. Стеновой комплект |
|
| 3. Кровля |
|
| 4. Окна и двери |
|
| 5. Сопровождение строительства |
|
-
Заказать бесплатные изменения в проекте
или планировке
-
Получить фото и планировку этого проекта в WhatsApp или Telegram
Отправим
в течение
5 минут -
Получить расчет
стоимости в 3 вариантах комплектации
Остались вопросы?
Свяжитесь с нами или оставьте заявку — мы проконсультируем вас по всем вопросам.
Артем Ефремов
Эксперт по строительству
Похожие проекты
Другие- 10x9
- Размеры
- 58 м²
- Площадь помещений
Заполните форму и получите бесплатно: