
Panorama L
Баня с большим окном,
наполняющим пространство светом.
Размеры
6х2.5Площадь помещений
15 м²Пятно застройки
15 м²Этажность
1Технология
МобильнаяСтиль
Хай-текСтоимость
от 816 000 руб.Размеры
6х2.5Площадь помещений
15 м²Пятно застройки
15 м²Этажность
1Технология
МобильнаяСтиль
Хай-текПо вашему запросу мы бесплатно доработаем планировку, чтобы вы получили максимальное удовольствие от загородного отдыха
Предложим планировку, в которой каждый квадратный метр будет использован с максимальной эффективностью
Увеличим или уменьшим площадь здания. Изменим расположение окон и дверей. Добавим санузел, ещё одну спальню для гостей, террасу и так далее
Изменить проектPanorama L: Мобильная баня с большим окном – 6х2.5
Мобильная баня Panorama L с большим окном – это современное и элегантное решение для ценителей простоты и комфорта.
Проект выполнен в модульной технологии, что делает его удобным в сборке и установке. Стильный внешний вид с панорамным остеклением добавляет нотки современности и визуального простора.
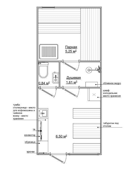
Баня имеет компактные размеры 7×3 метра, что делает её подходящей как для дачного участка, так и для небольшого загородного дома. Внутри проект включает несколько функциональных зон: просторную парную площадью 5,25 м², душевую зону площадью 1,6 м² и туалет с местом для хранения. Просторная комната отдыха площадью 6,5 м² выполнена с учетом комфорта и удобства, идеально подходя для приятного времяпрепровождения с семьей и друзьями.
Такой проект подойдет тем, кто хочет объединить комфорт и функциональность в одном компактном решении. Возможность модульной сборки ускоряет процесс установки, а панорамное окно позволяет наслаждаться видами на природу.
| Описание | |
|---|---|
| 1. Фундамент |
|
| 2. Стеновой комплект |
|
| 3. Кровля |
|
| 4. Окна и двери |
|
| 5. Сопровождение строительства |
|
-
Заказать бесплатные изменения в проекте
или планировке
-
Получить фото и планировку этого проекта в WhatsApp или Telegram
Отправим
в течение
5 минут -
Получить расчет
стоимости в 3 вариантах комплектации
Остались вопросы?
Свяжитесь с нами или оставьте заявку — мы проконсультируем вас по всем вопросам.
Артем Ефремов
Эксперт по строительству
Похожие проекты
Другие- 6х2.5
- Размеры
- 15 м²
- Площадь помещений
Заполните форму и получите бесплатно: