
Panorama L
Максимум простора и панорамный вид
в мобильном формате для полного релакса.
Размеры
6х2.5Площадь помещений
15 м²Пятно застройки
м²Этажность
1Технология
ТехнологияСтиль
МинимализмСтоимость
от 784 000 руб.Размеры
6х2.5Площадь помещений
15 м²Пятно застройки
м²Этажность
1Технология
ТехнологияСтиль
МинимализмПо вашему запросу мы бесплатно доработаем планировку, чтобы вы получили максимальное удовольствие от загородного отдыха
Предложим планировку, в которой каждый квадратный метр будет использован с максимальной эффективностью
Увеличим или уменьшим площадь здания. Изменим расположение окон и дверей. Добавим санузел, ещё одну спальню для гостей, террасу и так далее
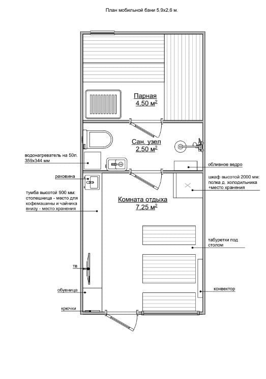
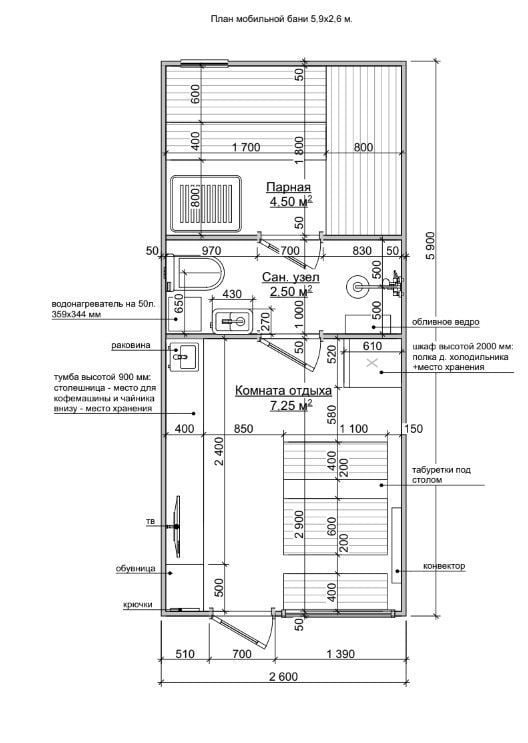
Изменить проектМобильная баня Panorama L: Мобильная баня – 6х2.5
Мобильная баня Panorama L — это стильный модульный проект в формате «всё включено» для любителей компактного уюта.
Минималистичный дизайн с плавными скруглениями фасада и панорамным остеклением делает её акцентом на любом участке или у воды. Размеры бани составляют 6×2,6 м — оптимально для комфортного размещения 2–4 человек.
Внутри предусмотрены три функциональные зоны: уютная комната отдыха 7,3 м² с мягкой зоной и местом под кофемашину, парная на 4,5 м² с печью и полками, а также санузел с душем площадью 2,5 м². Все элементы thoughtfully продуманы: вместительный шкаф, компактная кухня, телевизор и даже зона хранения под холодильник.
Panorama L идеально подойдёт для дачи, глэмпинга или бизнес-проекта, где важны эстетика, удобство и быстрая установка. Не требует капитального фундамента и готова к эксплуатации сразу после доставки.
| Описание | |
|---|---|
| 1. Фундамент |
|
| 2. Стеновой комплект |
|
| 3. Кровля |
|
| 4. Окна и двери |
|
| 5. Сопровождение строительства |
|
-
Заказать бесплатные изменения в проекте
или планировке
-
Получить фото и планировку этого проекта в WhatsApp или Telegram
Отправим
в течение
5 минут -
Получить расчет
стоимости в 3 вариантах комплектации
Остались вопросы?
Свяжитесь с нами или оставьте заявку — мы проконсультируем вас по всем вопросам.
Артем Ефремов
Эксперт по строительству
Похожие проекты
Другие- 6х2.5
- Размеры
- 15 м²
- Площадь помещений
Заполните форму и получите бесплатно: