Panorama M

Компактная баня
для полноценного отдыха и релаксации.

Размеры

4х2,5

Площадь помещений

10 м²

Пятно застройки

10 м²

Этажность

1

Технология

Мобильная

Стиль

Хай-тек

Стоимость

от 638 400 ₽
от 638 400 ₽

Размеры

4х2,5

Площадь помещений

10 м²

Пятно застройки

10 м²

Этажность

1

Технология

Мобильная

Стиль

Хай-тек
Бесплатно
Бесплатно адаптируем планировку для вас

По вашему запросу мы бесплатно доработаем планировку, чтобы вы получили максимальное удовольствие от загородного отдыха

Предложим планировку, в которой каждый квадратный метр будет использован с максимальной эффективностью

Планировка

Увеличим или уменьшим площадь здания. Изменим расположение окон и дверей. Добавим санузел, ещё одну спальню для гостей, террасу и так далее

Изменить проект

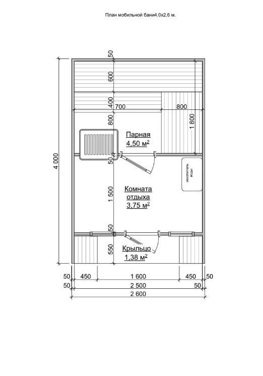
Panorama M: Мобильная баня с большим окном – 4х2,5

Мобильная баня Panorama M (с большим окном) — это компактное и стильное решение для тех, кто ценит комфорт и современные технологии.

Баня выполнена в модульной технологии, что обеспечивает ее быструю сборку и долговечность. Скандинавский стиль с панорамным остеклением позволяет создать атмосферу уюта и комфорта. Размеры бани составляют 4x2,6 м. Внутри расположены функциональные зоны, включая просторную парную (5,25 м²), душевую (1,6 м²) и уютную комнату отдыха (3,75 м²). Также предусмотрено крыльцо, которое добавляет функциональности и служит отличным местом для отдыха. Проект подходит для дачников и владельцев загородных участков, которым необходим компактный, но при этом полноценный объект для отдыха и релаксации. Это идеальный выбор для небольших участков или в качестве дополнительного строения на более крупных территориях.

Остались вопросы?

Свяжитесь с нами или оставьте заявку — мы проконсультируем вас по всем вопросам.

Артем Ефремов

Артем Ефремов

Эксперт по строительству

Выберите удобный для вас способ связи:

Похожие проекты

Другие
Смотрите также похожие
  • По стоимости
    Проекты бань до 5 млн. ₽
    Иконка
  • По площади
    Проекты бань до 60 м2
    Иконка
  • По размеру
    Проекты бань 6x6
    Иконка
  • По материалу
    Каркасные бани под ключ
    Иконка
Panorama M

Компактная баня
для полноценного отдыха и релаксации.

Стоимость

от 638 400 ₽

Размеры

4х2,5

Площадь помещений

10 м²

Мы используем файлы cookie
для обеспечения наилучшего
взаимодействия с сайтом

наверх
Акция! До 15 февраля
Получите дизайн-проект бани под ваши размеры бесплатно
Отрисуем планировку бани
Рассчитаем стоимость
Поможем выбрать стиль
Введите телефон, чтобы получить доступ к документу:
Заполните это поле
Получить дизайн-проект
Я согласен с условиями политики конфиденциальности