




Даллас 35 (5х7)
Современная баня в
стиле барнхаус с панорамными окнами.
Размеры
5х7Площадь помещений
26 м²Пятно застройки
35 м²Этажность
1Технология
МодульнаяСтиль
БарнхаусСтоимость
от 2 300 000 руб.Размеры
5х7Площадь помещений
26 м²Пятно застройки
35 м²Этажность
1Технология
МодульнаяСтиль
БарнхаусПо вашему запросу мы бесплатно доработаем планировку, чтобы вы получили максимальное удовольствие от загородного отдыха
Предложим планировку, в которой каждый квадратный метр будет использован с максимальной эффективностью
Увеличим или уменьшим площадь здания. Изменим расположение окон и дверей. Добавим санузел, ещё одну спальню для гостей, террасу и так далее
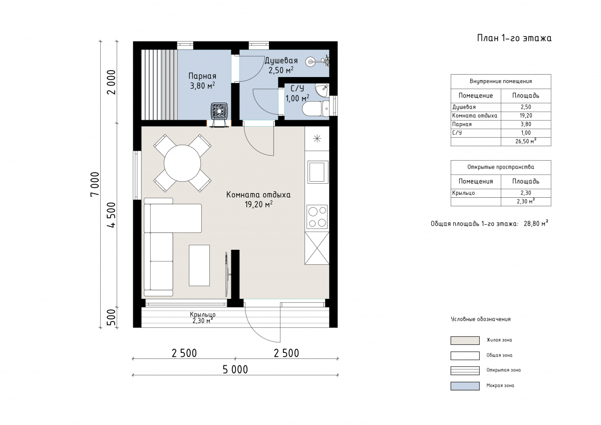
Изменить проектДаллас 35 (5х7): Модульная баня – 5х7
Модульная баня «Даллас» в формате 5×7 – это комфорт и стиль в компактном исполнении.
Современный дизайн с панорамными окнами наполняет пространство светом и визуально расширяет его, создавая уютную атмосферу.
Центром планировки является просторная комната отдыха (19 м²), совмещающая зону для общения, приготовления еды и отдыха. Классическая парная (4 м²) обеспечивает комфортные условия для банных процедур, а душевая (2,5 м²) и санузел (1 м²) повышают удобство эксплуатации.
Фасад украшает крытое крыльцо (2,5 м²), которое можно использовать как дополнительное место для отдыха на свежем воздухе.
Общая площадь бани – 29 м².
«Даллас» 5×7 – это гармоничное сочетание минимализма, функциональности и уюта в одном проекте.
- Бани под ключ
- Готовые бани
- Готовые модульные бани
- Дачные
- Деревянные
- Каркасные бани
- Модульные бани
- Модульные бани с бассейном
- Модульные бани с душем
- Модульные бани с комнатой
- Модульные бани с купелью
- Модульные бани с туалетом-санузлом
- Модульные каркасные
- Панорамные модульные бани
- Размеры модульных бань
- Скандинавские модульные бани
- Типовые проекты бань
| Описание | |
|---|---|
| 1. Фундамент |
|
| 2. Стеновой комплект |
|
| 3. Кровля |
|
| 4. Окна и двери |
|
| 5. Сопровождение строительства |
|
-
Заказать бесплатные изменения в проекте
или планировке
-
Получить фото и планировку этого проекта в WhatsApp или Telegram
Отправим
в течение
5 минут -
Получить расчет
стоимости в 3 вариантах комплектации
Остались вопросы?
Свяжитесь с нами или оставьте заявку — мы проконсультируем вас по всем вопросам.
Артем Ефремов
Эксперт по строительству
Похожие проекты
Другие- 5х7
- Размеры
- 26 м²
- Площадь помещений
Заполните форму и получите бесплатно: