
Лука
Финская баня с просторной комнатой отдыха,
создающей уютную атмосферу.
Размеры
6х8Площадь помещений
44 м²Пятно застройки
48 м²Этажность
2Технология
БрусСтиль
скандинавияСтоимость
от 2 258 000 руб.Размеры
6х8Площадь помещений
44 м²Пятно застройки
48 м²Этажность
2Технология
БрусСтиль
скандинавияПо вашему запросу мы бесплатно доработаем планировку, чтобы вы получили максимальное удовольствие от загородного отдыха
Предложим планировку, в которой каждый квадратный метр будет использован с максимальной эффективностью
Увеличим или уменьшим площадь здания. Изменим расположение окон и дверей. Добавим санузел, ещё одну спальню для гостей, террасу и так далее
Изменить проектЛука: Баня из бруса – 6х8
Финская баня из бруса 6×8 «Лука» – сочетание уюта, комфорта и функциональности.
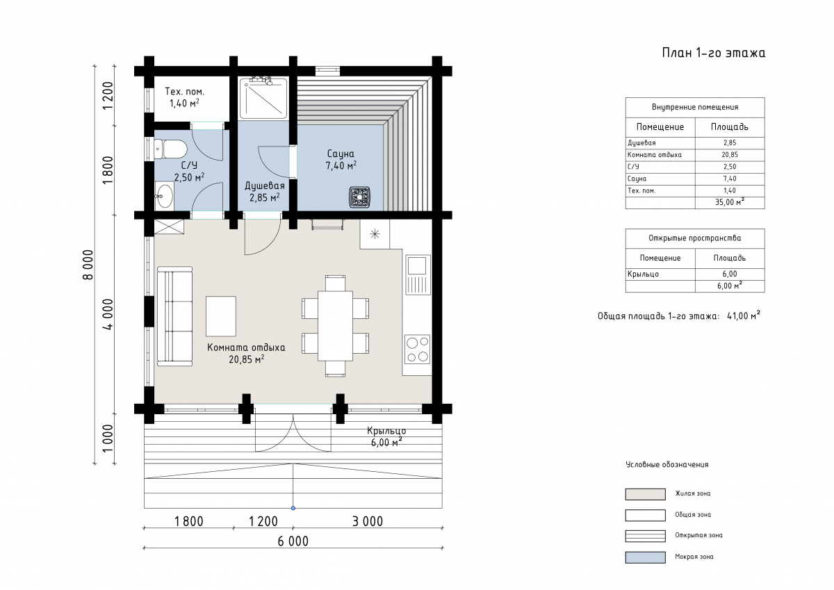
Благодаря панорамному остеклению и выразительной двускатной крыше, фасад строения выглядит современно и уютно. Общая площадь двух этажей составляет 50 м². Постройка имеет компактные размеры 6×8 м, что делает её подходящей даже для небольших участков. На первом этаже расположены просторная комната отдыха (почти 21 м²), душ, санузел, техпомещение и полноценная парная площадью 7,4 м². Центральное место занимает зона отдыха с обеденной группой и зоной кухни. Снаружи примыкает открытая терраса 6 м² — отличное место для летнего отдыха. Второй этаж оформлен как уютная антресоль с жилой зоной 9 м². Здесь можно организовать спальное место или зону уединения. Планировка лаконична и функциональна, что делает баню «Лука» отличным выбором для семейного отдыха, приёма гостей или организации уютного глэмпинг-пространства. Подходит для тех, кто ищет практичную, эстетичную баню с местом для ночёвки в природном окружении.
| Описание | |
|---|---|
| 1. Фундамент |
|
| 2. Стеновой комплект |
|
| 3. Кровля |
|
| 4. Окна и двери |
|
| 5. Сопровождение строительства |
|
-
Заказать бесплатные изменения в проекте
или планировке
-
Получить фото и планировку этого проекта в WhatsApp или Telegram
Отправим
в течение
5 минут -
Получить расчет
стоимости в 3 вариантах комплектации
Остались вопросы?
Свяжитесь с нами или оставьте заявку — мы проконсультируем вас по всем вопросам.
Артем Ефремов
Эксперт по строительству
Похожие проекты
Другие- 6х8
- Размеры
- 44 м²
- Площадь помещений
Заполните форму и получите бесплатно: