
Баня Берлин 8
Финская баня с просторной гостиной,
создающей уютную атмосферу для отдыха.
Размеры
7х10Площадь помещений
41 м²Пятно застройки
70 м²Этажность
1Технология
КаркаснаяСтиль
Скандинавия с элементами шалеСтоимость
от 3 314 000 руб.Размеры
7х10Площадь помещений
41 м²Пятно застройки
70 м²Этажность
1Технология
КаркаснаяСтиль
Скандинавия с элементами шалеПо вашему запросу мы бесплатно доработаем планировку, чтобы вы получили максимальное удовольствие от загородного отдыха
Предложим планировку, в которой каждый квадратный метр будет использован с максимальной эффективностью
Увеличим или уменьшим площадь здания. Изменим расположение окон и дверей. Добавим санузел, ещё одну спальню для гостей, террасу и так далее
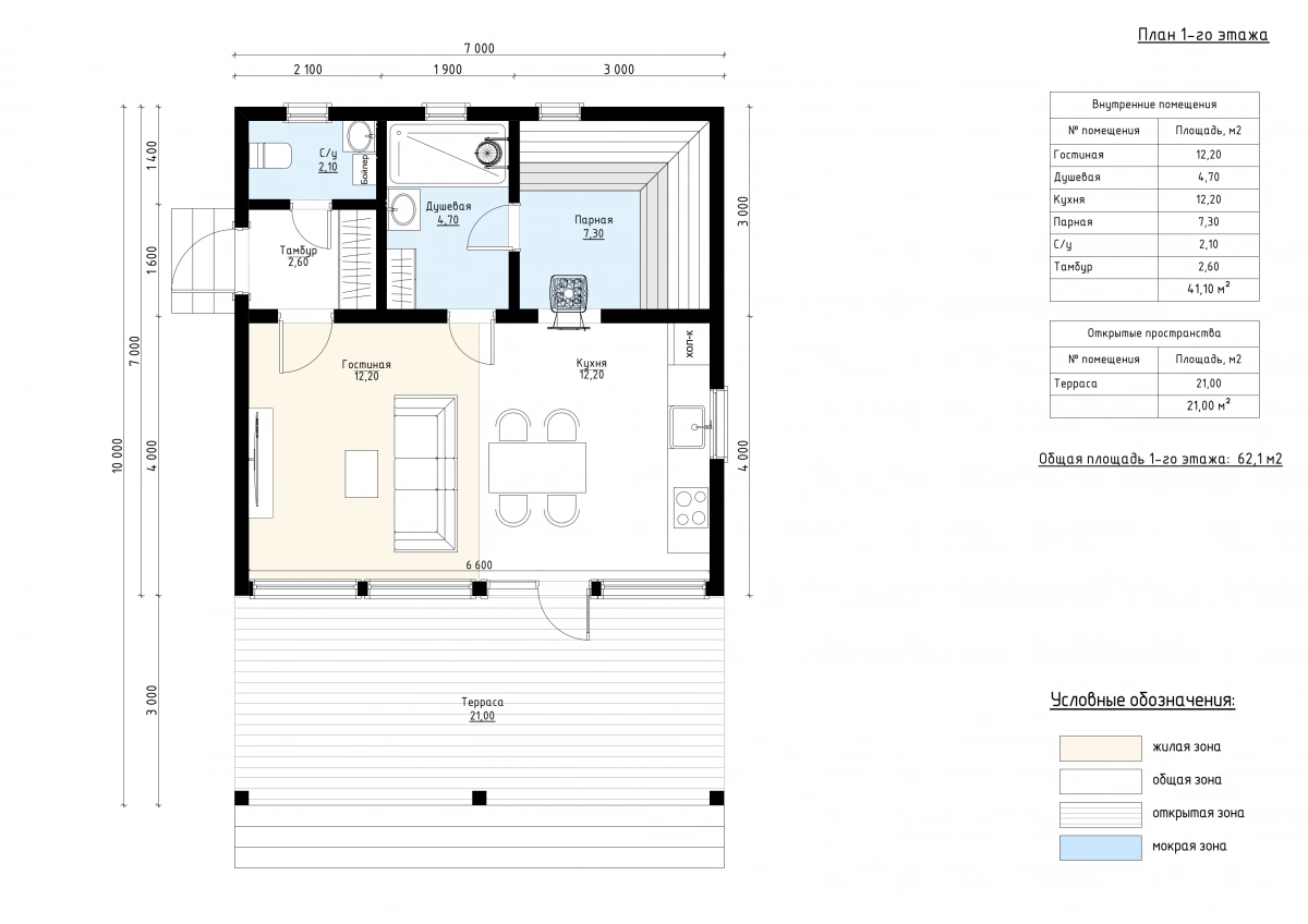
Изменить проектБерлин 8: Каркасная баня – 7х10
Финская каркасная баня «Берлин 8» — это стильный и функциональный проект для тех, кто ценит комфорт и современный дизайн.
Фасад выполнен из дерева с защитной пропиткой, а крыша покрыта металлочерепицей в темных тонах, подчеркивая строгость архитектуры. Габариты здания — 7×10 м, что обеспечивает комфортное размещение всех необходимых помещений.
Общая площадь — 57 м², из них 21 м² занимает терраса. Внутри расположены: гостиная (11 м²), кухня (11 м²), парная (6 м²), душевая (4 м²), санузел и тамбур. Такая планировка подойдет как для семейного отдыха, так и для приёма гостей. Просторная кухня-гостиная объединяет зоны приготовления еды и общения, а большая терраса — идеальное место для летнего отдыха на свежем воздухе.
«Берлин 8» отлично подойдёт для загородного участка или как баня выходного дня. Он привлекает тех, кто ценит стильную простоту, функциональность и гармонию с природой.
| Описание | |
|---|---|
| 1. Фундамент |
|
| 2. Стеновой комплект |
|
| 3. Кровля |
|
| 4. Окна и двери |
|
| 5. Сопровождение строительства |
|
-
Заказать бесплатные изменения в проекте
или планировке
-
Получить фото и планировку этого проекта в WhatsApp или Telegram
Отправим
в течение
5 минут -
Получить расчет
стоимости в 3 вариантах комплектации
Остались вопросы?
Свяжитесь с нами или оставьте заявку — мы проконсультируем вас по всем вопросам.
Артем Ефремов
Эксперт по строительству
Похожие проекты
Другие- 7х10
- Размеры
- 41 м²
- Площадь помещений
Заполните форму и получите бесплатно: