

Асколи
Идеальный вариант для загородного отдыха,
где стиль сочетается с функциональностью.
Размеры
5х6Площадь помещений
24 м²Пятно застройки
30 м²Этажность
1Технология
БрусСтиль
МинимализмСтоимость
от 2 452 500 руб.Размеры
5х6Площадь помещений
24 м²Пятно застройки
30 м²Этажность
1Технология
БрусСтиль
МинимализмПо вашему запросу мы бесплатно доработаем планировку, чтобы вы получили максимальное удовольствие от загородного отдыха
Предложим планировку, в которой каждый квадратный метр будет использован с максимальной эффективностью
Увеличим или уменьшим площадь здания. Изменим расположение окон и дверей. Добавим санузел, ещё одну спальню для гостей, террасу и так далее
Изменить проектАсколи: Баня из бруса – 5х6
Компактная и стильная каркасная баня «Асколи» 6×6 – идеальное решение для тех, кто ценит лаконичность, уют и функциональность.
Благодаря лаконичному внешнему виду и плоской кровле постройка отлично вписывается как в лесной, так и в городской ландшафт.
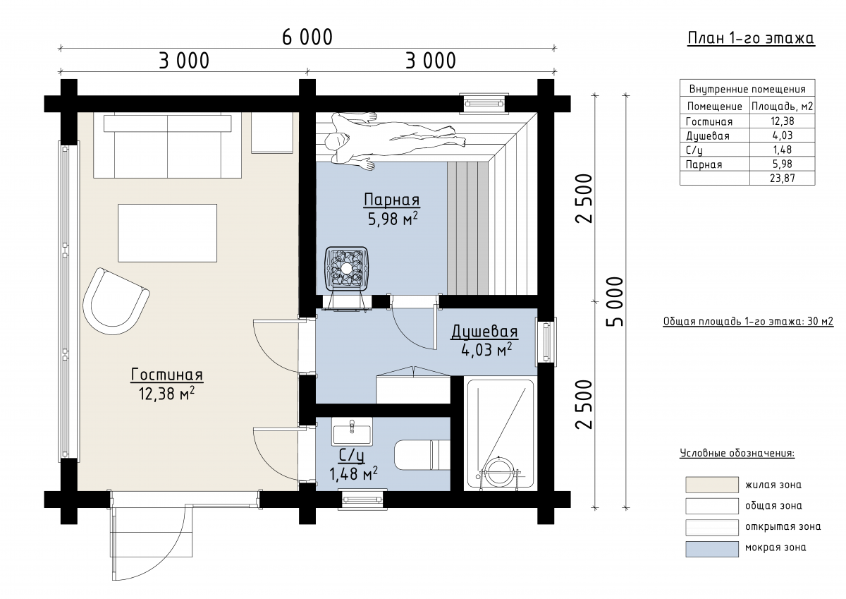
Общая площадь строения составляет 30 м², что делает баню особенно привлекательной для владельцев небольших участков. При этом планировка тщательно продумана и включает в себя все необходимые функциональные зоны: просторную гостиную (12 м²), душевую (4 м²), санузел (1,5 м²) и парную (6 м²). Панорамное остекление в зоне отдыха наполняет пространство светом и создает ощущение уюта.
Баня построена из профилированного бруса — экологичного, долговечного и «дышащего» материала, способного поддерживать оптимальный микроклимат внутри помещений. Прямые линии, контраст отделки и современное освещение подчеркивают актуальный стиль постройки.
«Асколи» идеально подходит для пары или небольшой семьи, предпочитающих уединенный отдых и уютную атмосферу. Этот проект также может быть использован как баня-гостевой домик или как дополнение к основному загородному дому.
| Описание | |
|---|---|
| 1. Фундамент |
|
| 2. Стеновой комплект |
|
| 3. Кровля |
|
| 4. Окна и двери |
|
| 5. Сопровождение строительства |
|
-
Заказать бесплатные изменения в проекте
или планировке
-
Получить фото и планировку этого проекта в WhatsApp или Telegram
Отправим
в течение
5 минут -
Получить расчет
стоимости в 3 вариантах комплектации
Остались вопросы?
Свяжитесь с нами или оставьте заявку — мы проконсультируем вас по всем вопросам.
Артем Ефремов
Эксперт по строительству
Похожие проекты
Другие- 5х6
- Размеры
- 24 м²
- Площадь помещений
Заполните форму и получите бесплатно: