

Асколи
Компактная баня в минималистичном стиле
с панорамными окнами и лаконичным дизайном.
Размеры
5х6Площадь помещений
24 м²Пятно застройки
30 м²Этажность
1Технология
Клееный брусСтиль
МинимализмСтоимость
от 3 263 100 руб.Размеры
5х6Площадь помещений
24 м²Пятно застройки
30 м²Этажность
1Технология
Клееный брусСтиль
МинимализмПо вашему запросу мы бесплатно доработаем планировку, чтобы вы получили максимальное удовольствие от загородного отдыха
Предложим планировку, в которой каждый квадратный метр будет использован с максимальной эффективностью
Увеличим или уменьшим площадь здания. Изменим расположение окон и дверей. Добавим санузел, ещё одну спальню для гостей, террасу и так далее
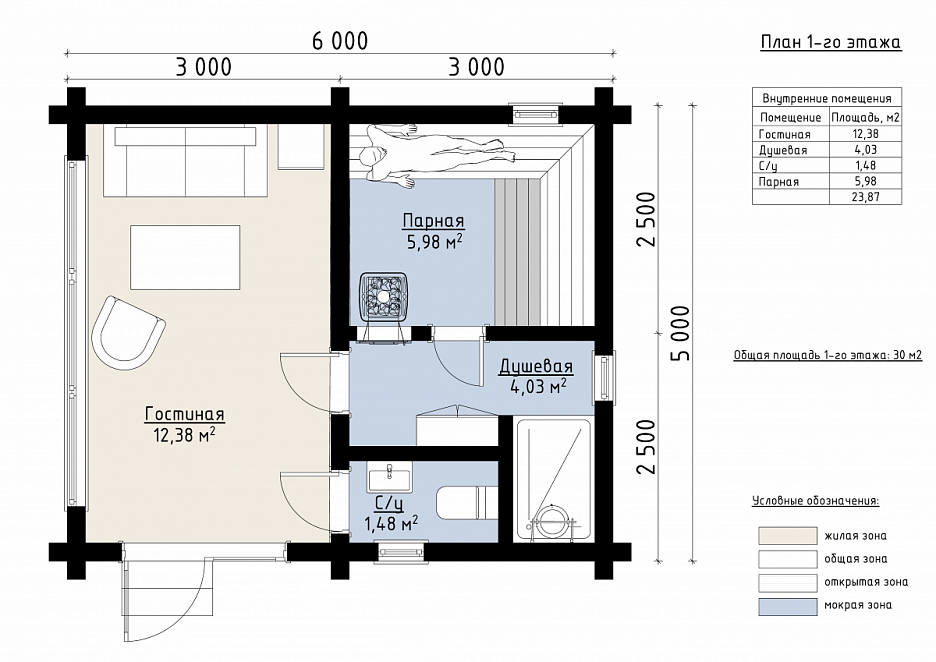
Изменить проектАсколи: Финская баня из клееного бруса – 5х6
Финская баня из клееного бруса размером 5х6 м «Асколи» общей площадью 30 м² выполнена в современном скандинавском стиле.
Лаконичный фасад с панорамным остеклением создает атмосферу уюта, подчеркивая элегантность и функциональность конструкции. Внутренние помещения площадью 24 м² включают гостиную размером 12 м², просторную парную площадью 6 м², душевую 4 м² и компактный санузел. Просторное и продуманное внутреннее пространство позволяет с комфортом проводить время как в кругу семьи, так и в компании друзей. Проект «Асколи» гармонично вписывается в природный ландшафт благодаря своему стильному дизайну и практичности. Это отличное решение для тех, кто ищет уютное место для расслабления и отдыха вдали от городской суеты.
| Описание | |
|---|---|
| 1. Фундамент |
|
| 2. Стеновой комплект |
|
| 3. Кровля |
|
| 4. Окна и двери |
|
| 5. Сопровождение строительства |
|
-
Заказать бесплатные изменения в проекте
или планировке
-
Получить фото и планировку этого проекта в WhatsApp или Telegram
Отправим
в течение
5 минут -
Получить расчет
стоимости в 3 вариантах комплектации
Остались вопросы?
Свяжитесь с нами или оставьте заявку — мы проконсультируем вас по всем вопросам.
Артем Ефремов
Эксперт по строительству
Похожие проекты
Другие- 5х6
- Размеры
- 24 м²
- Площадь помещений
Заполните форму и получите бесплатно: