

Эмполи
Минимализм и комфорт
в стильной бане с функциональной планировкой
Размеры
6х4Площадь помещений
24 м²Пятно застройки
24 м²Этажность
1Технология
БрусСтиль
СкандинавияСтоимость
от 2 283 100 руб.Размеры
6х4Площадь помещений
24 м²Пятно застройки
24 м²Этажность
1Технология
БрусСтиль
СкандинавияПо вашему запросу мы бесплатно доработаем планировку, чтобы вы получили максимальное удовольствие от загородного отдыха
Предложим планировку, в которой каждый квадратный метр будет использован с максимальной эффективностью
Увеличим или уменьшим площадь здания. Изменим расположение окон и дверей. Добавим санузел, ещё одну спальню для гостей, террасу и так далее
Изменить проектЭмполи: Баня из бруса – 6х4
Компактная и уютная баня «Эмполи» — отличное решение для загородного отдыха.
Минималистичная архитектура в скандинавском стиле и широкие панорамные окна придают строению визуальную лёгкость и эстетичность, делая его органичной частью любого ландшафта.
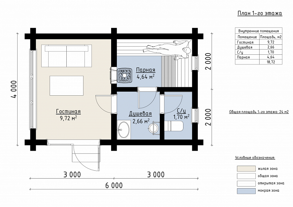
Площадь постройки составляет 24 м², при габаритах 6×4 м. Внутри продуманное зонирование: просторная гостиная (около 10 м²) подойдёт для отдыха с семьёй или друзьями, парная площадью почти 5 м² — для полноценного банного ритуала. Душевая (2,7 м²) и санузел (1,7 м²) обеспечивают комфорт и функциональность. Все мокрые зоны отделены от жилой и общей, что повышает удобство использования и долговечность строения.
Проект идеально подойдёт для владельцев дачных участков и загородных домов, кто ценит компактность, стиль и рациональность. «Эмполи» станет уютной баней для небольшой семьи или парой гостей.
| Описание | |
|---|---|
| 1. Фундамент |
|
| 2. Стеновой комплект |
|
| 3. Кровля |
|
| 4. Окна и двери |
|
| 5. Сопровождение строительства |
|
-
Заказать бесплатные изменения в проекте
или планировке
-
Получить фото и планировку этого проекта в WhatsApp или Telegram
Отправим
в течение
5 минут -
Получить расчет
стоимости в 3 вариантах комплектации
Остались вопросы?
Свяжитесь с нами или оставьте заявку — мы проконсультируем вас по всем вопросам.
Артем Ефремов
Эксперт по строительству
Похожие проекты
Другие- 6х4
- Размеры
- 24 м²
- Площадь помещений
Заполните форму и получите бесплатно: