
Баня Берлин 4
Современный проект с акцентом на натуральные материалы
и гармонию с окружающим ландшафтом.
Размеры
5х11Площадь помещений
33 м²Пятно застройки
55 м²Этажность
1Технология
Клееный брусСтиль
ФахверкСтоимость
от 4 509 000 руб.Размеры
5х11Площадь помещений
33 м²Пятно застройки
55 м²Этажность
1Технология
Клееный брусСтиль
ФахверкПо вашему запросу мы бесплатно доработаем планировку, чтобы вы получили максимальное удовольствие от загородного отдыха
Предложим планировку, в которой каждый квадратный метр будет использован с максимальной эффективностью
Увеличим или уменьшим площадь здания. Изменим расположение окон и дверей. Добавим санузел, ещё одну спальню для гостей, террасу и так далее
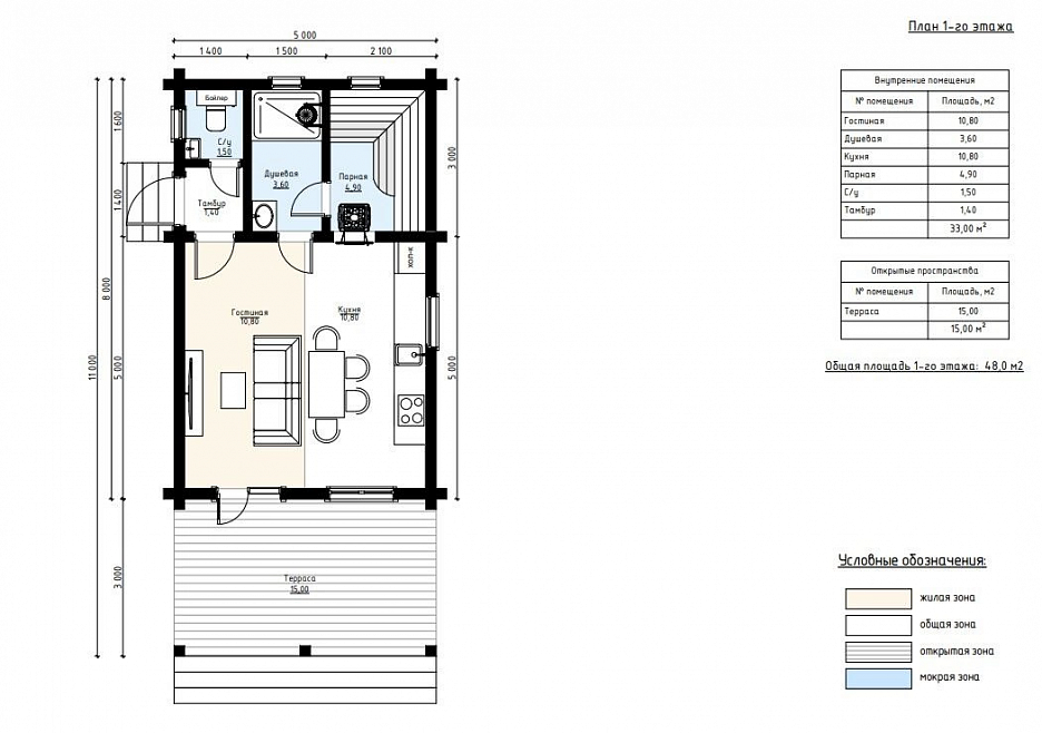
Изменить проектБерлин 4: Баня из клееного бруса – 5х11
Баня из клееного бруса «Берлин 4» общей площадью 48 м² воплощает в себе современный стиль с использованием экологичных материалов.
Построена из экологичного клееного бруса, баня отличается высокой энергоэффективностью, устойчивостью к влаге и долговечностью. Натуральный цвет древесины и строгие формы подчеркивают актуальный дизайн.
Площадь бани составляет 48 м², включая открытую террасу 15 м², идеально подходящую для отдыха на свежем воздухе. Внутреннее пространство рационально распределено: гостиная и кухня-столовая по 11 м² каждая создают комфортную зону для приёма гостей и совместного времяпрепровождения. В мокрой зоне размещены душ (3,6 м²), санузел (1,5 м²) и просторная парная (4,9 м²) с оптимальной площадью для полноценного расслабления. Тамбур 1,4 м² защищает от прямого попадания холода внутрь.
Проект подходит для частных клиентов, ищущих компактное, но при этом функциональное решение для круглогодичной бани. Идеален как для дачных участков, так и для загородных домов.
| Описание | |
|---|---|
| 1. Фундамент |
|
| 2. Стеновой комплект |
|
| 3. Кровля |
|
| 4. Окна и двери |
|
| 5. Сопровождение строительства |
|
-
Заказать бесплатные изменения в проекте
или планировке
-
Получить фото и планировку этого проекта в WhatsApp или Telegram
Отправим
в течение
5 минут -
Получить расчет
стоимости в 3 вариантах комплектации
Остались вопросы?
Свяжитесь с нами или оставьте заявку — мы проконсультируем вас по всем вопросам.
Артем Ефремов
Эксперт по строительству
Похожие проекты
Другие- 5х11
- Размеры
- 33 м²
- Площадь помещений
Заполните форму и получите бесплатно: