

Эссен
Компактная баня с панорамными окнами
и террасой для уютного загородного отдыха.
Размеры
6х4Площадь помещений
19 м²Пятно застройки
24 м²Этажность
1Технология
КаркаснаяСтиль
ШалеСтоимость
от 1 751 000 руб.Размеры
6х4Площадь помещений
19 м²Пятно застройки
24 м²Этажность
1Технология
КаркаснаяСтиль
ШалеПо вашему запросу мы бесплатно доработаем планировку, чтобы вы получили максимальное удовольствие от загородного отдыха
Предложим планировку, в которой каждый квадратный метр будет использован с максимальной эффективностью
Увеличим или уменьшим площадь здания. Изменим расположение окон и дверей. Добавим санузел, ещё одну спальню для гостей, террасу и так далее
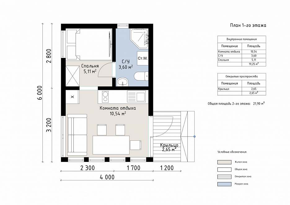
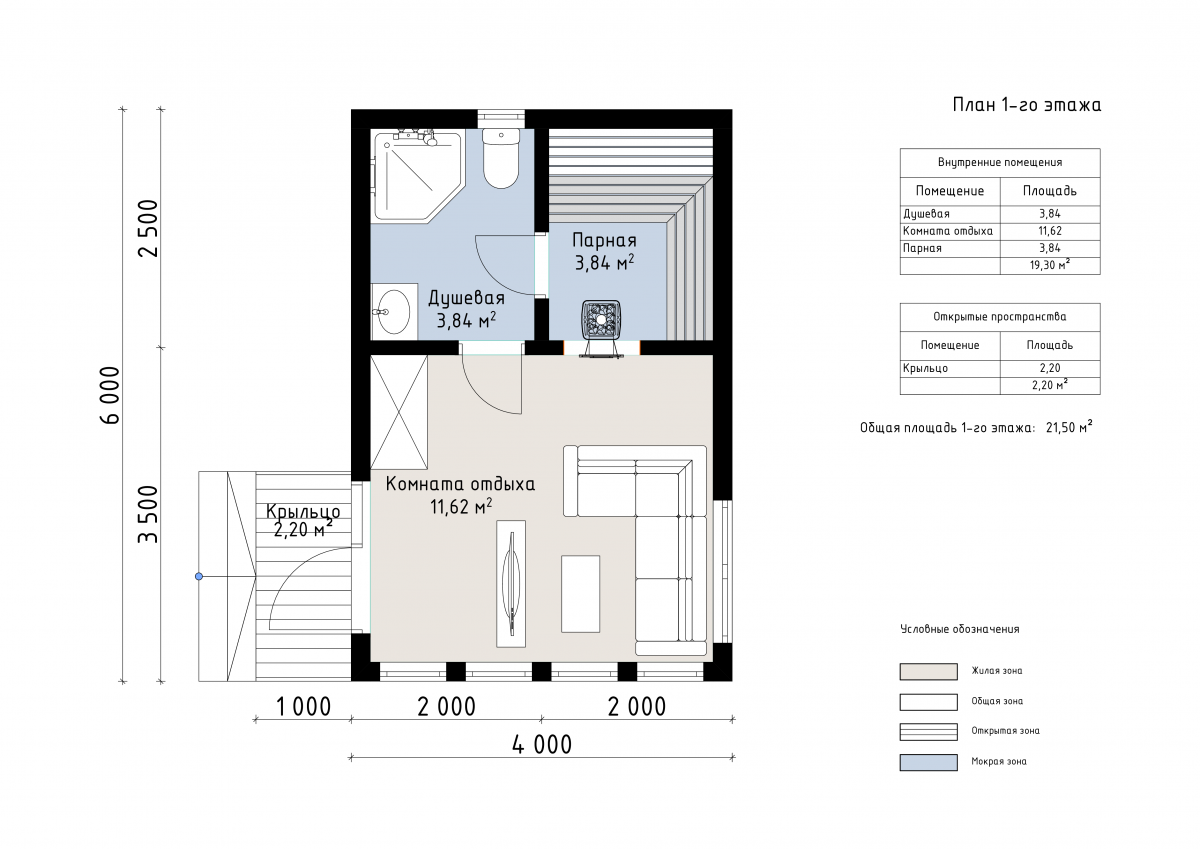
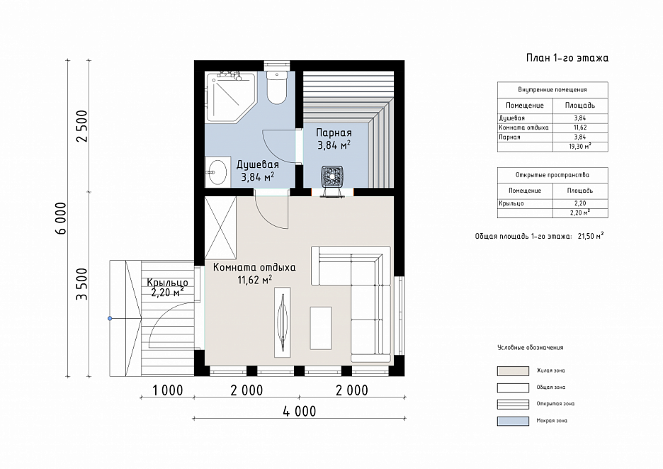
Изменить проектЭссен: Каркасная баня – 6х4
Каркасная баня размером 6х4 м «Эссен» общей площадью 21 м² выполнена по современной каркасной технологии.
Этот проект привлекает своим стильным дизайном с панорамным остеклением, обеспечивающим естественное освещение и комфортный вид на окружающую природу.
Внутренние помещения занимают 19 м² и включают просторную комнату отдыха площадью 10 м², душевую и парную по 5 м². Открытая терраса площадью 2 м² создает уютное пространство для отдыха на свежем воздухе. Компактный и функциональный планировка делает проект идеальным выбором для небольшой семьи или компании.
Проект «Эссен» создан для тех, кто ценит уют, стиль и современные технологии в строительстве.
| Описание | |
|---|---|
| 1. Фундамент |
|
| 2. Стеновой комплект |
|
| 3. Кровля |
|
| 4. Окна и двери |
|
| 5. Сопровождение строительства |
|
-
Заказать бесплатные изменения в проекте
или планировке
-
Получить фото и планировку этого проекта в WhatsApp или Telegram
Отправим
в течение
5 минут -
Получить расчет
стоимости в 3 вариантах комплектации
Остались вопросы?
Свяжитесь с нами или оставьте заявку — мы проконсультируем вас по всем вопросам.
Артем Ефремов
Эксперт по строительству
Похожие проекты
Другие- 6х4
- Размеры
- 19 м²
- Площадь помещений
Заполните форму и получите бесплатно: