

Криф
Баня с отдельной спальней,
идеальной для комфортного загородного отдыха.
Размеры
11х6Площадь помещений
42 м²Пятно застройки
66 м²Этажность
1Технология
КаркаснаяСтиль
БарнхаусСтоимость
от 3 340 000 руб.Размеры
11х6Площадь помещений
42 м²Пятно застройки
66 м²Этажность
1Технология
КаркаснаяСтиль
БарнхаусПо вашему запросу мы бесплатно доработаем планировку, чтобы вы получили максимальное удовольствие от загородного отдыха
Предложим планировку, в которой каждый квадратный метр будет использован с максимальной эффективностью
Увеличим или уменьшим площадь здания. Изменим расположение окон и дверей. Добавим санузел, ещё одну спальню для гостей, террасу и так далее
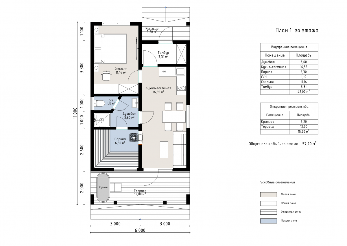
Изменить проектКриф: Баня Барнхаус – 11х6
Стильная каркасная баня "Криф" выполнена в формате барнхаус, сочетающем современный дизайн и функциональность.
Просторная терраса с купелью создает уютное место для отдыха, а продуманная планировка позволяет комфортно разместиться даже небольшой компанией. Внутри предусмотрена кухня-гостиная, парная, душевая, санузел, спальня и тамбур, что делает проект удобным для сезонного или круглогодичного использования.
Общая площадь постройки – 57 м², из которых 42 м² занимает внутренняя часть, а 15 м² приходится на открытую террасу и крыльцо. В отделке использованы натуральные материалы, подчеркивающие гармонию с природой. Большие окна визуально расширяют пространство и наполняют его естественным светом.
| Описание | |
|---|---|
| 1. Фундамент |
|
| 2. Стеновой комплект |
|
| 3. Кровля |
|
| 4. Окна и двери |
|
| 5. Сопровождение строительства |
|
-
Заказать бесплатные изменения в проекте
или планировке
-
Получить фото и планировку этого проекта в WhatsApp или Telegram
Отправим
в течение
5 минут -
Получить расчет
стоимости в 3 вариантах комплектации
Остались вопросы?
Свяжитесь с нами или оставьте заявку — мы проконсультируем вас по всем вопросам.
Артем Ефремов
Эксперт по строительству
Похожие проекты
Другие- 11х6
- Размеры
- 42 м²
- Площадь помещений
Заполните форму и получите бесплатно: