

Бонн
Баня в минималистичном стиле, объединяющая
эстетику фахверка и комфорт для отдыха.
Размеры
4х4Площадь помещений
12 м²Пятно застройки
16 м²Этажность
1Технология
КаркаснаяСтиль
ФахверкСтоимость
от 1 406 000 руб.Размеры
4х4Площадь помещений
12 м²Пятно застройки
16 м²Этажность
1Технология
КаркаснаяСтиль
ФахверкПо вашему запросу мы бесплатно доработаем планировку, чтобы вы получили максимальное удовольствие от загородного отдыха
Предложим планировку, в которой каждый квадратный метр будет использован с максимальной эффективностью
Увеличим или уменьшим площадь здания. Изменим расположение окон и дверей. Добавим санузел, ещё одну спальню для гостей, террасу и так далее
Изменить проектБонн: Фахверковая баня – 4х4
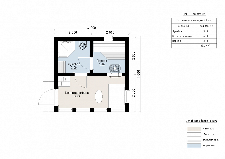
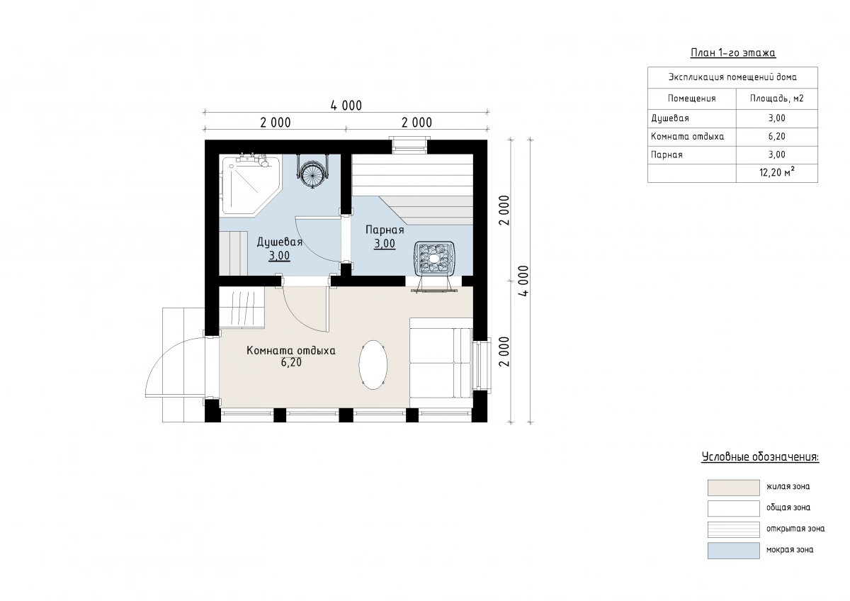
Фахверковая баня 4×4 м «Бонн» общей площадью 12 м² выполнена по каркасной технологии с элементами фахверка.
Высокие панорамные окна усиливают естественное освещение и создают эффект простора. Компактная планировка подходит для небольших участков, сохраняя уют и функциональность.
Общая площадь внутренних помещений составляет 12 м², включая комнату отдыха 6 м², парную и душевую. Панорамное остекление добавляет эстетики и уюта.
Проект «Бонн» — стильное решение для любителей минимализма и комфорта. Идеален для семейного отдыха или уединения, сочетая современный дизайн и продуманное зонирование.
- Бани под ключ
- Бани с комнатой отдыха в стиле Лофт
- Бани с панорамными окнами в стиле Хай-тек
- Готовые бани в стиле Модерн
- Готовые бани с отделкой
- Готовые бани с панорамными окнами
- Готовые финские бани
- Дачные
- Деревянные
- Дизайнерские бани в стиле Хай-тек
- Дизайнерские одноэтажные бани
- Каркасные бани
- Каркасные бани 4х4
- Классические одноэтажные бани
- Красивые бани с панорамными окнами
- Мини бани в стиле Лофт
- Недорогие бани с душем
- Недорогие бани с печкой
- Одноэтажные бани в стиле Лофт
- Одноэтажные бани в стиле Минимализм
- Одноэтажные бани в стиле Модерн
- Одноэтажные бани в стиле Хай-тек
- Оригинальные одноэтажные бани
- Скандинавские бани с комнатой отдыха
- Скандинавские одноэтажные бани
- Современные бани в стиле Минимализм
- Современные бани в стиле Модерн
- Современные бани с панорамными окнами
- Типовые проекты бань
- Финские бани на дачу
- Финские бани с панорамными окнами
- Финские бани с печкой
| Описание | |
|---|---|
| 1. Фундамент |
|
| 2. Стеновой комплект |
|
| 3. Кровля |
|
| 4. Окна и двери |
|
| 5. Сопровождение строительства |
|
-
Заказать бесплатные изменения в проекте
или планировке
-
Получить фото и планировку этого проекта в WhatsApp или Telegram
Отправим
в течение
5 минут -
Получить расчет
стоимости в 3 вариантах комплектации
Остались вопросы?
Свяжитесь с нами или оставьте заявку — мы проконсультируем вас по всем вопросам.
Артем Ефремов
Эксперт по строительству
Похожие проекты
Другие- 4х4
- Размеры
- 12 м²
- Площадь помещений
Заполните форму и получите бесплатно: