

Бордо
Функциональная планировка,
включает кухню-гостиную, парную и спальню.
Размеры
6х9Площадь помещений
37 м²Пятно застройки
54 м²Этажность
1Технология
КаркаснаяСтиль
ФахверкСтоимость
от 3 008 000 руб.Размеры
6х9Площадь помещений
37 м²Пятно застройки
54 м²Этажность
1Технология
КаркаснаяСтиль
ФахверкПо вашему запросу мы бесплатно доработаем планировку, чтобы вы получили максимальное удовольствие от загородного отдыха
Предложим планировку, в которой каждый квадратный метр будет использован с максимальной эффективностью
Увеличим или уменьшим площадь здания. Изменим расположение окон и дверей. Добавим санузел, ещё одну спальню для гостей, террасу и так далее
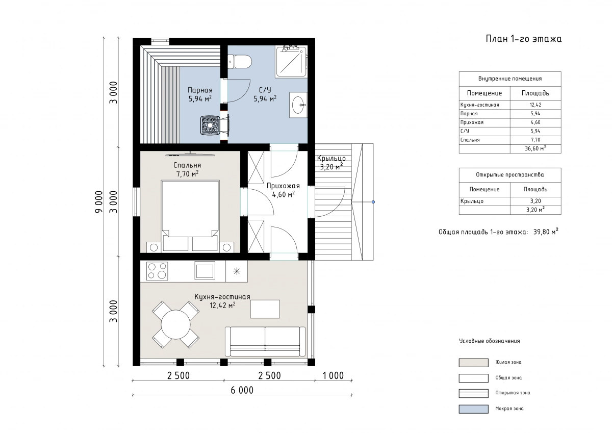
Изменить проектБордо: Фахверковая баня – 6х9
Фахверковая баня 9×6 м «Бордо» общей площадью 43 м² выполнена в стиле фахверк с панорамным остеклением, наполняющим дом светом и уютом.
Преимущество проекта — просторное внутреннее пространство и стильный внешний вид. Терраса с барбекю-зоной идеально подходит для отдыха на свежем воздухе.
Общая площадь помещений — 37 м²: кухня-гостиная 12 м², спальня 7 м², парная 6 м², санузел и прихожая. Терраса 6 м² дополняет функциональность.
«Бордо» — стильный и практичный выбор для тех, кто ценит комфорт, современный подход к строительству и гармонию с природой.
- Бани 5х9 под ключ
- Бани под ключ
- Бани с комнатой отдыха в стиле Лофт
- Бани с панорамными окнами в стиле Хай-тек
- Готовые бани в стиле Модерн
- Готовые бани с отделкой
- Готовые бани с панорамными окнами
- Готовые финские бани
- Дачные
- Деревянные
- Дизайнерские бани в стиле Хай-тек
- Дизайнерские одноэтажные бани
- Каркасные бани
- Классические одноэтажные бани
- Красивые бани с панорамными окнами
- Мини бани в стиле Лофт
- Недорогие бани с душем
- Недорогие бани с печкой
- Одноэтажные бани в стиле Лофт
- Одноэтажные бани в стиле Минимализм
- Одноэтажные бани в стиле Модерн
- Одноэтажные бани в стиле Хай-тек
- Оригинальные одноэтажные бани
- Скандинавские бани с комнатой отдыха
- Скандинавские одноэтажные бани
- Современные бани в стиле Минимализм
- Современные бани в стиле Модерн
- Современные бани с панорамными окнами
- Типовые проекты бань
- Финские бани на дачу
- Финские бани с панорамными окнами
- Финские бани с печкой
| Описание | |
|---|---|
| 1. Фундамент |
|
| 2. Стеновой комплект |
|
| 3. Кровля |
|
| 4. Окна и двери |
|
| 5. Сопровождение строительства |
|
-
Заказать бесплатные изменения в проекте
или планировке
-
Получить фото и планировку этого проекта в WhatsApp или Telegram
Отправим
в течение
5 минут -
Получить расчет
стоимости в 3 вариантах комплектации
Остались вопросы?
Свяжитесь с нами или оставьте заявку — мы проконсультируем вас по всем вопросам.
Артем Ефремов
Эксперт по строительству
Похожие проекты
Другие- 6х9
- Размеры
- 37 м²
- Площадь помещений
Заполните форму и получите бесплатно: